88 - 1919 Trafalgar Street, London East, Ontario N5V 1A1

Listed for:
$363,000
3 beds
2 baths
Listed 47 days ago
Row / Townhouse for rent: 88 - 1919 Trafalgar Street, London East, Ontario N5V 1A1

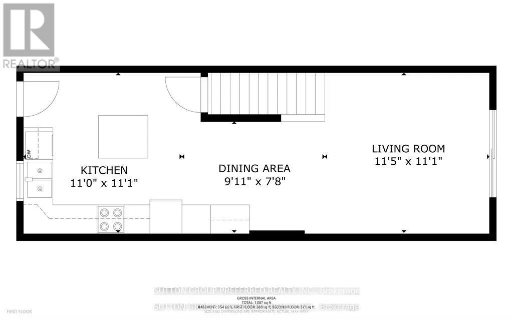
View all 21 photos

About

Cross Streets: Clarke. ** Directions: Trafalgar east of Clarke. Welcome to 88-1919 Trafalgar Street, a fully updated townhouse condo offering affordable living in East London! This home has been completely renovated from top to bottomeverything is new, including the kitchen, bathrooms, flooring, paint, and even an electric fireplace for cozy nights in. The condo corporation has recently replaced the windows as well, giving you peace of mind for years to come. Inside, youll find two spacious bedrooms upstairs along with a full 4-piece bath. The finished basement adds extra living space with a third bedroom and a 3-piece bath, perfect for guests, a home office, or a teenagers retreat as well as a large laundry room with plenty of storage. Step outside to your private fenced backyard, complete with a handy shed for storage. With low condo fees of only $240/month (including water), this is one of the most affordable and move-in-ready options in East London. Whether you're a first-time buyer, downsizing, or looking for a smart investment, this home checks all the boxes. (id:27476)

Property Highlights

MLS® Number
X12936690
Type
Single Family
Community Name
East I
Maintenance Fee
240.00
Ownership Type
Condominium/Strata
Parking Space Total
1

Building

Building Type
Row / Townhouse
Storeys
2.00
Square Footage
800 - 899 sqft
Bathrooms Total
2
Bedrooms Above Ground
2
Bedrooms Total
3
Amenities
Fireplace(s) Park, Place of Worship, Schools
Exterior Finish
Brick, Aluminum siding
Fireplace Present
Yes
Basement Type
Full (Finished)
Basement Features
Building Heating Type
Baseboard heaters
Heating Fuel
Electric
Building Cooling Type
Window air conditioner

Location

Learn more about this property
Listing provided by:
SUTTON GROUP PREFERRED REALTY INC.
MLS® number:
X12936690
Agent:
Brian Maceachern
*Indicates required field
Name is required
Email is required
Please enter a valid phone number (e.g., 416-111-1111).

Street Spotlight - For sale