55 Arbour Glen Crescent, London East, Ontario N5Y 1Z9

Listed for:
$349,000
3 beds
3 baths
Listed 9 days ago
Row / Townhouse for rent: 55 Arbour Glen Crescent, London East, Ontario N5Y 1Z9

View all 25 photos

About

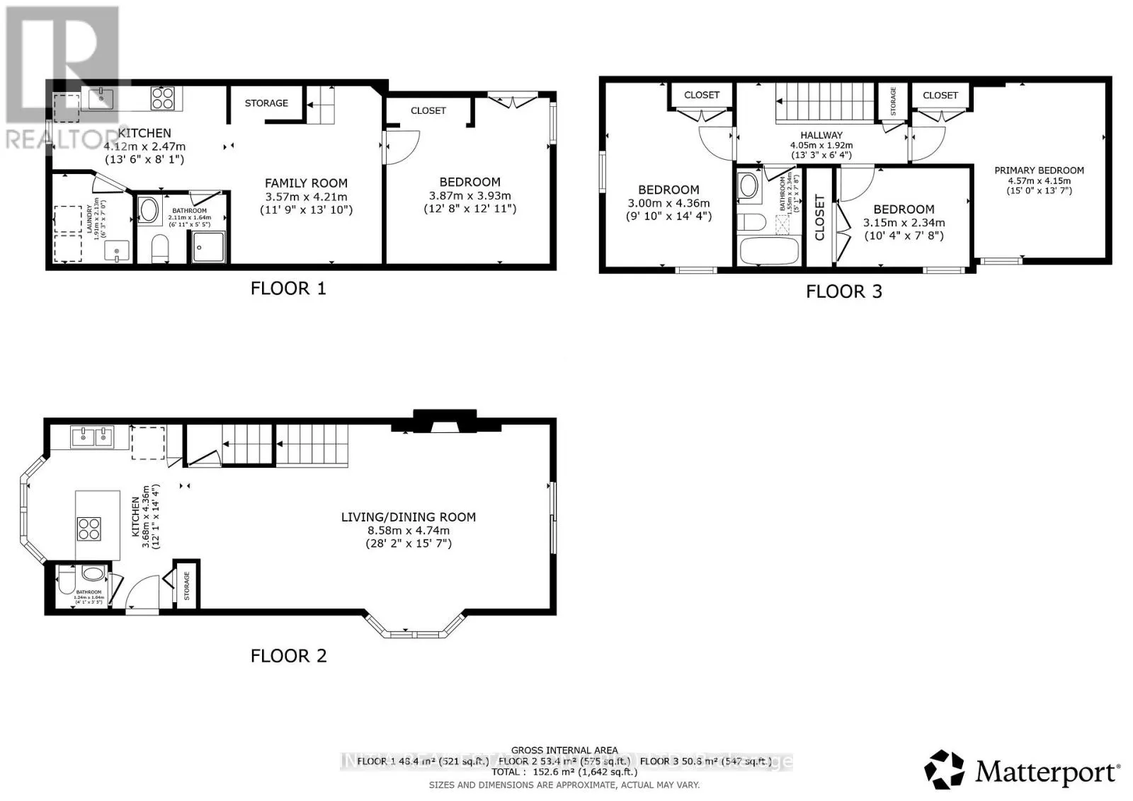
Cross Streets: Kipps lane. ** Directions: Heading East on kipps Ln, turn left onto Arbour glen Crs. It will be a right turn into the 3rd entrance before turning the bend. Welcome to 55 Arbour Glen Crescent, a quiet end-unit townhouse offering privacy, space, and comfort in a peaceful, low-traffic setting. This 3-bedroom, 2.5-bathroom home features an open-concept main floor, an updated kitchen, and a cozy fireplace, creating a bright and inviting living space ideal for both relaxing and entertaining.The home boasts massive bedrooms, providing exceptional comfort and flexibility for families, guests, or home office setups. Being an end unit, it benefits from extra natural light and a greater sense of separation from neighbours.Tucked away from traffic yet conveniently located near everyday amenities, this property offers a rare balance of tranquility, space, and modern updates - perfect for buyers seeking both comfort and convenience. (Some photos have been virtually staged.) (id:27476)

Property Highlights

MLS® Number
X12975818
Type
Single Family
Community Name
East A
Maintenance Fee
351.00
Ownership Type
Condominium/Strata
Parking Space Total
1

Building

Building Type
Row / Townhouse
Storeys
2.00
Square Footage
1200 - 1399 sqft
Bathrooms Total
3
Bedrooms Above Ground
3
Bedrooms Total
3
Amenities
Fireplace(s)
Exterior Finish
Brick
Fireplace Present
Yes
Basement Type
N/A (Finished)
Basement Features
Building Heating Type
Baseboard heaters
Heating Fuel
Electric
Building Cooling Type
Wall unit

Location

Learn more about this property
Listing provided by:
INITIA REAL ESTATE (ONTARIO) LTD
MLS® number:
X12975818
Agent:
Sebastian Pedreros-roussy
*Indicates required field
Name is required
Email is required
Please enter a valid phone number (e.g., 416-111-1111).

Community Spotlight: Homes For sale in Your Neighborhood