784 Banyan Lane, London North, Ontario N6G 0A6

Listed for:
$589,900
3 beds
3 baths
Listed 124 days ago
Row / Townhouse for rent: 784 Banyan Lane, London North, Ontario N6G 0A6

View all 40 photos

Learn more about this property
Listing provided by:
ROYAL LEPAGE TRILAND REALTY
MLS® number:
X12181799
Agent:
Devin Nadeau
*Indicates required field
Name is required
Email is required
Please enter a valid phone number (e.g., 416-111-1111).

About

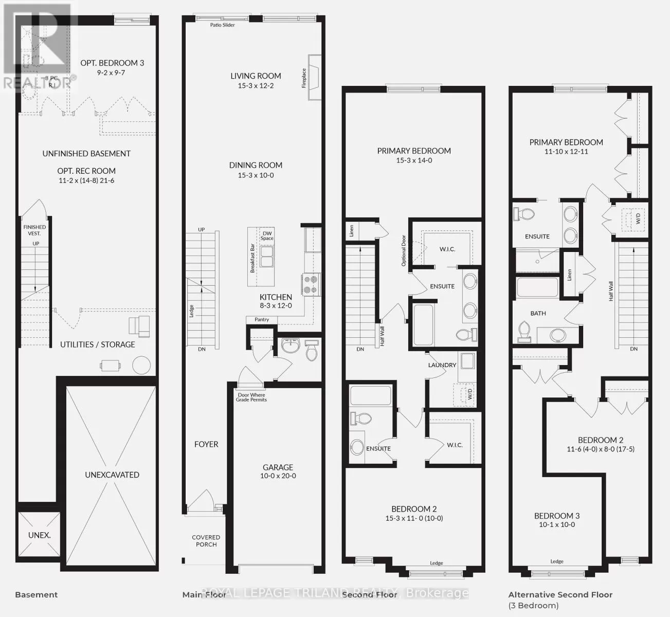
Cross Streets: Caltalpa Square. ** Directions: Caltalpa Sq & Banyan Lane. Unit is at drywall stage, ready to pick your interior selections! Werrington Homes is excited to announce the launch of their newest project The North Woods in the desirable Hyde Park community of Northwest London - NOW 35% SOLD OUT!! The project consists of 45 two-storey contemporary townhomes priced from $589,900. With the modern family & purchaser in mind, the builder has created 3 thoughtfully designed floorplans. The end units known as "The White Oak", priced from $599,900 offer 1686 sq ft above grade, 3 bedrooms, 2.5 bathrooms & a single car garage. The interior units known as "The Black Cedar" offers 1628 sq ft above grade with 2 bed ($589,900) or 3 bed ($589,900) configurations, 2.5 bathrooms & a single car garage. The basements have the option of being finished by the builder to include an additional BEDROOM, REC ROOM & FULL BATH! As standard, each home will be built with brick, hardboard and vinyl exteriors, 9 ft ceilings on the main, luxury vinyl plank flooring, quartz counters, second floor laundry, paver stone drive and walkways, ample pot lights, tremendous storage space & a 4-piece master ensuite complete with tile & glass shower & double sinks! The North Woods location is second to none with so many amenities all within walking distance! Great restaurants, smart centres, walking trails, mins from Western University & directly on transit routes! Low monthly fee ($100 approx.) to cover common elements of the development (green space, snow removal on the private road, etc). This listing represents an interior unit 3 bedroom plan "The Black Cedar". *some images may show optional upgrades* The model home is complete available for viewings! BONUS!! 6 piece Whirlpool appliance package included with each purchase!! (id:27476)

Property Highlights

MLS® Number
X12181799
Type
Single Family
Community Name
North E
Maintenance Fee
100.00
Ownership Type
Condominium/Strata
Parking Space Total
2

Building

Building Type
Row / Townhouse
Storeys
2.00
Square Footage
1600 - 1799 sqft
Bathrooms Total
3
Bedrooms Above Ground
3
Bedrooms Total
3
Amenities
Fireplace(s) Park, Place of Worship, Public Transit, Schools
Exterior Finish
Brick, Vinyl siding
Fireplace Present
Yes
Basement Type
Full (Unfinished)
Basement Features
Building Heating Type
Forced air
Heating Fuel
Natural gas
Building Cooling Type
Central air conditioning, Air exchanger

Location

Street Spotlight - For sale