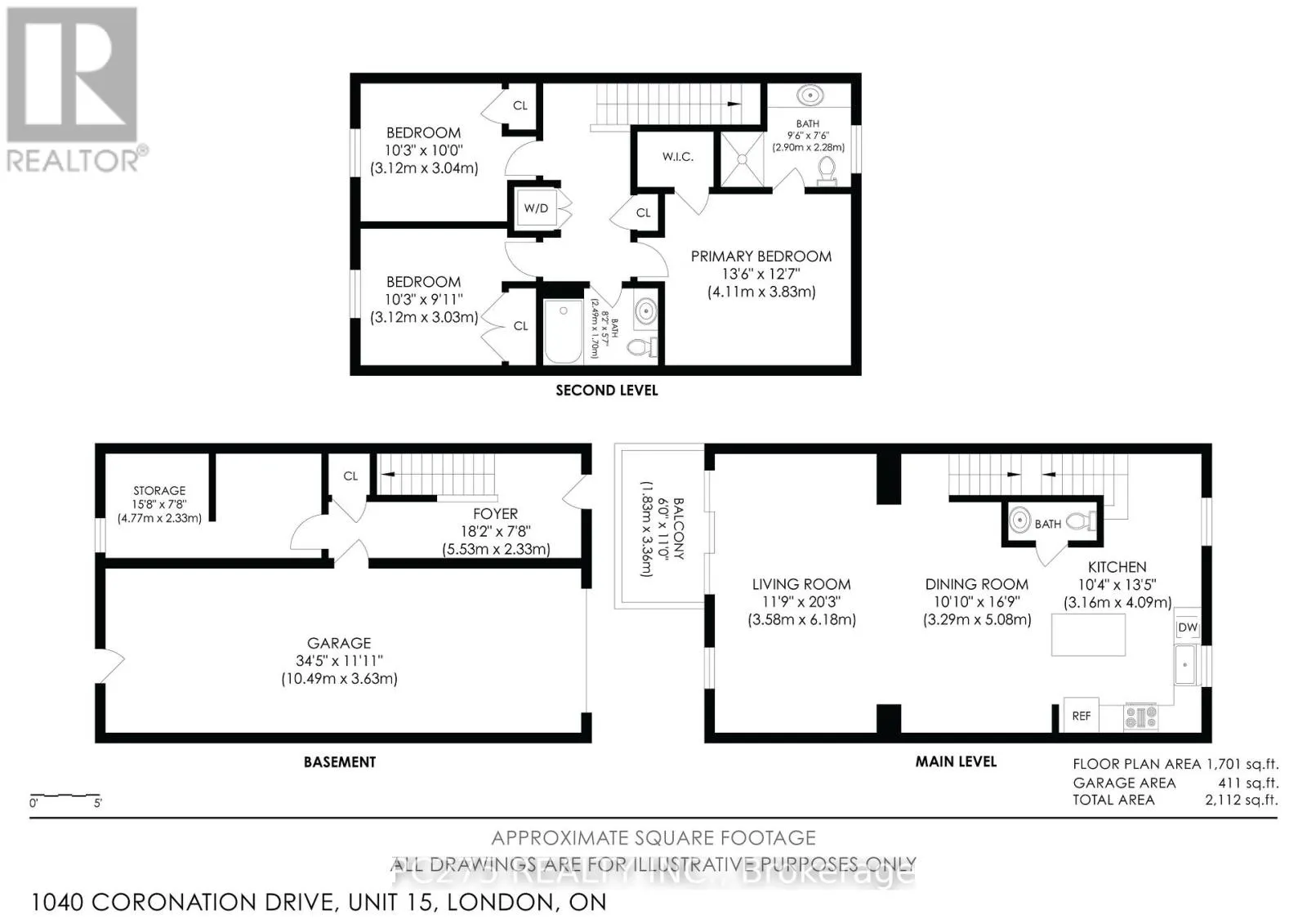
15 - 1040 Coronation Drive, London North, Ontario N6G 0R8

Listed for:
$519,900
3 beds
3 baths
Listed 13 days ago
Row / Townhouse for rent: 15 - 1040 Coronation Drive, London North, Ontario N6G 0R8

View all 50 photos

Learn more about this property
Listing provided by:
PC275 REALTY INC.
MLS® number:
X12370699
Agent:
Caley Lunan
*Indicates required field
Name is required
Email is required
Please enter a valid phone number (e.g., 416-111-1111).

About

Cross Streets: South Carriage & Coronation. ** Directions: North on Hyde Park, east on South Carriage, north on Coronation. Fall in love with this stylish townhouse in popular North West London/Hyde Park Village in MINT CONDITION AND IMMACULATELY CARED FOR! This home has 3 bedrooms upstairs with fresh paint throughout the whole townhouse and a master ensuite with glass shower and walk-in closet. Don't forget about the convenient upstairs laundry! The kitchen has a large sit-up island perfect for your gourmet meals and breakfast. The living room has a walk-out balcony with custom electric blinds. The kitchen has quartz countertops throughout with stainless steel appliances and large dining room area. The kitchen has a built-in office area (builder upgrade), perfect for your working from home needs! 2 car tandem garage with access to front and backyard with another sitting area & covered patio. Main floor has a foyer/mudroom. You will love all of the amenities in Hyde Park Village including top shopping spots, restaurants, gyms, Superstore, Walmart and Remark Market. (id:27476)

Property Highlights

MLS® Number
X12370699
Type
Single Family
Community Name
North I
Maintenance Fee
326.00
Ownership Type
Condominium/Strata
Parking Space Total
3

Building

Building Type
Row / Townhouse
Storeys
3.00
Square Footage
1600 - 1799 sqft
Bathrooms Total
3
Bedrooms Above Ground
3
Bedrooms Total
3
Amenities
Visitor Parking Golf Nearby, Hospital, Park
Exterior Finish
Brick, Vinyl siding
Fireplace Present
No
Basement Type
None, N/A
Basement Features
Walk out
Building Heating Type
Forced air
Heating Fuel
Natural gas
Building Cooling Type
Central air conditioning

Location

Street Spotlight - For sale