665 Valleystream Walk, London North, Ontario N6G 3Z7

Listed for:
$1,700,000
4 beds
5 baths
Listed 78 days ago
House for rent: 665 Valleystream Walk, London North, Ontario N6G 3Z7

View all 8 photos

Learn more about this property
Listing provided by:
SUTTON GROUP - SELECT REALTY
MLS® number:
X12372166
Agent:
Kim Mullan
*Indicates required field
Name is required
Email is required
Please enter a valid phone number (e.g., 416-111-1111).

About

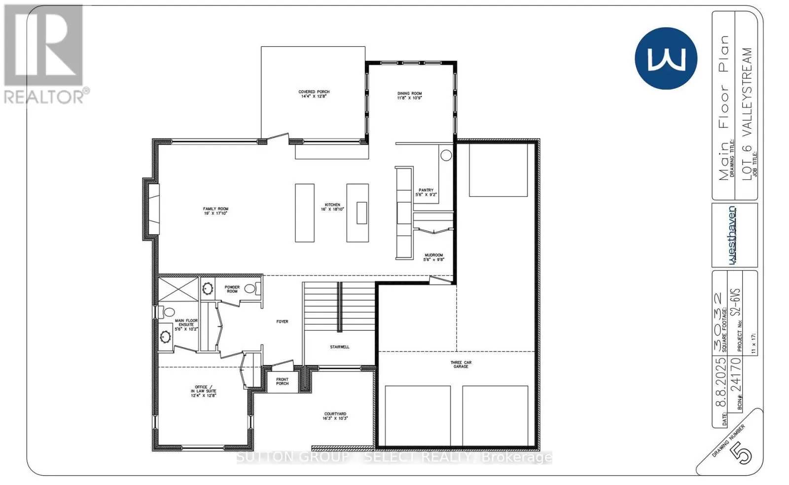
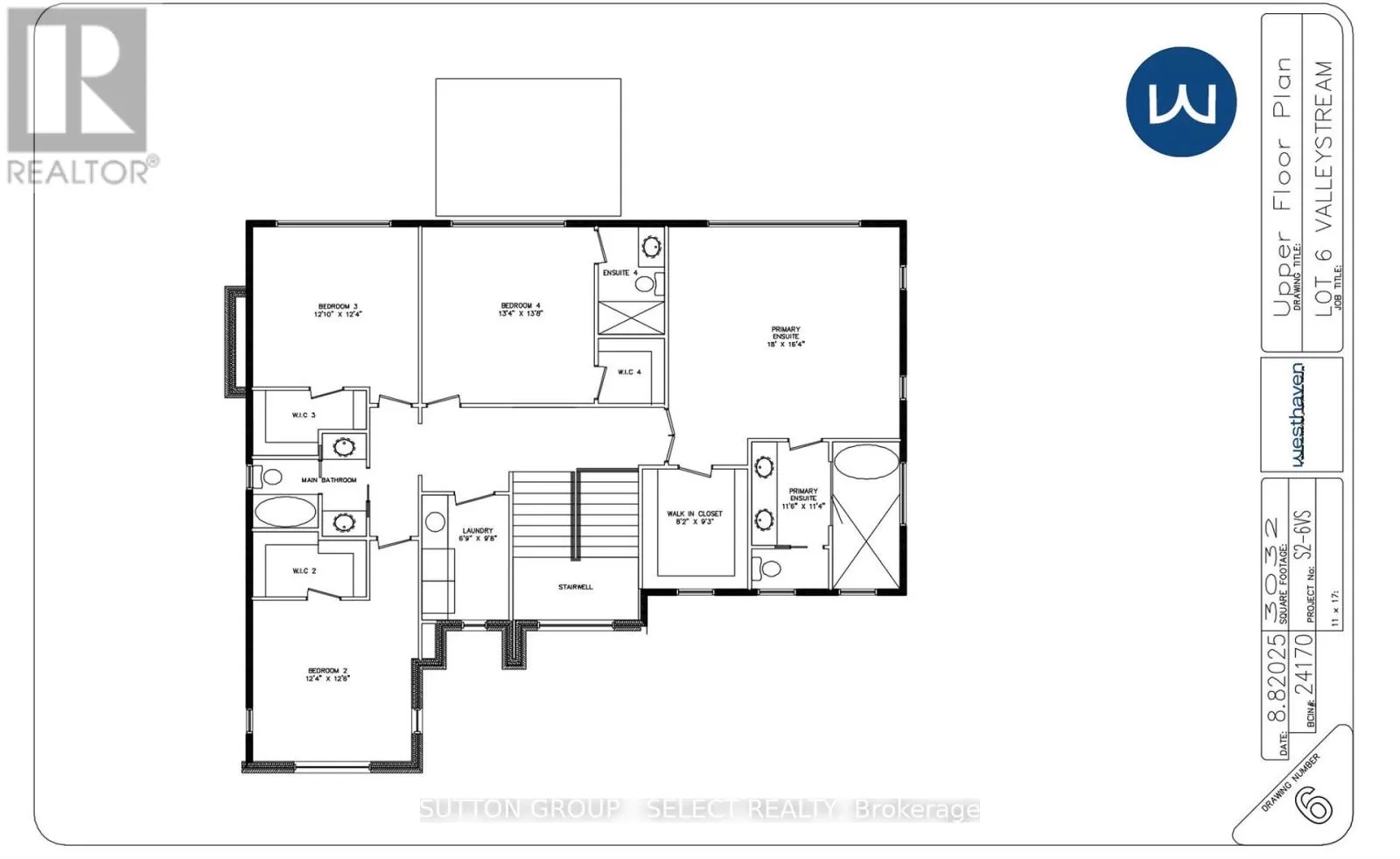
Cross Streets: ROBBIES WAY. ** Directions: ROBBIES WAY & VALLEYSTREAM WALK. Perched within North London's most prestigious new community, Sunningdale Court, this Westhaven Homes residence delivers over 3,000 sq. ft. of above-grade living with premium finishes and thoughtful design throughout. Known in London for quality, integrity, and craftsmanship, Westhaven has created a home designed for both modern family living and the ability to age-in-place. The main floor offers 10-ft ceilings, hardwood flooring, oversized 36" doorways, and a rare fifth bedroom with private 3-piece ensuite with heated floors & a curb-less shower, ideal for an in-law suite or second primary. The gourmet kitchen impresses with a double-island design one with seating for eight, quartz counters, open pantry, and seamless connection to the great room and dining area, with a fireplace and walk-out to the covered composite deck (14.5' x 12.5'). Upstairs, four bedrooms - each featuring walk-in closets. The primary suite enjoys a spa-worthy 5-piece ensuite with heated floors, curb-less shower, soaker tub, and double vanity. Bedrooms two and three share a Jack-and-Jill ensuite with double vanities and a private wet room/water closet, while bedroom four has its own ensuite. The upper hall & Primary suite are also finished in hardwood. The lower level offers 9-ft ceilings and five egress windows, maximizing natural light and future bedroom potential. Outdoor living is enhanced with a private front courtyard perfect for morning coffee. 3-car garage (2 bays plus tandem). Exclusive landscaping privacy package available, other available plans or custom build options. Priced for interior lot. Forest lots available at a premium. Ideally located steps to Sunningdale Golf Club, minutes to Uptown Plaza shops and dining, Western University, University Hospital, Ivey Business School, Masonville Mall, and the Medway Valley Heritage Forest trail system. Priced for Interior lot. Ravine lots available. (id:27476)

Property Highlights

MLS® Number
X12372166
Type
Single Family
Community Name
North R
Ownership Type
Freehold
Land Size
61 x 125 FT
Parking Space Total
5

Building

Building Type
House
Storeys
2.00
Square Footage
3000 - 3500 sqft
Bathrooms Total
5
Bedrooms Above Ground
4
Bedrooms Total
4
Amenities
Fireplace(s)
Exterior Finish
Stone, Stucco
Fireplace Present
Yes
Basement Type
N/A (Unfinished)
Basement Features
Building Heating Type
Forced air
Heating Fuel
Natural gas
Building Cooling Type
Central air conditioning, Air exchanger

Utilities

Water
Municipal water
Utility Sewer
Sanitary sewer

Room Layout

Primary Bedroom
Second level
5.48 m x 4.99 m
Bedroom
Second level
3.68 m x 3.77 m
Bedroom 2
Second level
4.08 m x 4.2 m
Bedroom 3
Second level
3.77 m x 3.84 m
Laundry room
Second level
2.07 m x 2.99 m
Office
Main level
3.77 m x 3.9 m
Family room
Main level
5.79 m x 5.18 m
Kitchen
Main level
4.87 m x 5.51 m
Pantry
Main level
1.7 m x 2.8 m
Mud room
Main level
1.7 m x 2.96 m
Dining room
Main level
3.59 m x 3.32 m

Location

Street Spotlight - For sale