Lot 7 Plum Blossom Court, London North, Ontario N6G 3X9

Listed for:
$1,484,900
4 beds
4 baths
Listed 59 days ago
House for rent: Lot 7 Plum Blossom Court, London North, Ontario N6G 3X9

View all 16 photos

Learn more about this property
Listing provided by:
CENTURY 21 FIRST CANADIAN CORP
MLS® number:
X12382705
Agent:
Jenny Drygas
*Indicates required field
Name is required
Email is required
Please enter a valid phone number (e.g., 416-111-1111).

About

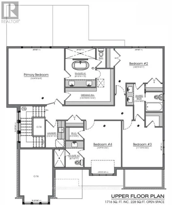
Cross Streets: Wonderland Road North and Eagletrace Drive. ** Directions: Take Wonderland Road North towards Sunningdale Rd, make a left onto Eagletrace Drive, make a right onto Plum Blossom Court. Royal Oak Homes proudly presents the Auburn II, one of our newest and most striking models, as a TO BE BUILT home in the prestigious Sunningdale Crossings community in North London. This thoughtfully designed 4-bedroom, 3.5-bath residence with a 2-car garage combines style, functionality, and comfort. The main floor features an open-concept family room, dining area, and kitchen, complete with a large butlers pantry perfect for entertaining and everyday living. Upstairs, hosts three additional bedrooms, each with access to its own bathroom, a spacious primary suite with dressing room and luxurious 5-piece ensuite, plus the convenience of an upstairs laundry. Set on a large pie-shaped lot backing onto greenspace, this home offers the utmost privacy and endless possibilities to design the backyard of your dreams. Enjoy quick access to parks, scenic trails, top-rated schools, shopping, and major highways. More plans and lots are available. Photos are from previous models for illustrative purposes; each model differs in design and client selections. (id:27476)

Property Highlights

MLS® Number
X12382705
Type
Single Family
Community Name
North S
Ownership Type
Freehold
Land Size
50 x 125 FT
Parking Space Total
4

Building

Building Type
House
Storeys
2.00
Square Footage
3000 - 3500 sqft
Bathrooms Total
4
Bedrooms Above Ground
4
Bedrooms Total
4
Amenities
Fireplace(s) Park, Public Transit, Golf Nearby
Exterior Finish
Hardboard, Brick
Fireplace Present
Yes
Basement Type
N/A (Unfinished)
Basement Features
Building Heating Type
Forced air
Heating Fuel
Natural gas
Building Cooling Type
Central air conditioning

Utilities

Water
Municipal water
Utility Sewer
Sanitary sewer

Room Layout

Office
Main level
2.92 m x 4.14 m
Living room
Main level
7.01 m x 4.87 m
Dining room
Main level
2.86 m x 3.74 m
Kitchen
Main level
3.87 m x 6.09 m
Pantry
Main level
2.56 m x 2.31 m
Mud room
Main level
2.56 m x 2.43 m
Bathroom
Main level
0.91 m x 2.31 m
Bedroom 4
Upper Level
3.32 m x 4.14 m
Bathroom
Upper Level
1.85 m x 3.35 m
Bathroom
Upper Level
3.23 m x 2.43 m
Bathroom
Upper Level
2.65 m x 2.34 m
Laundry room
Upper Level
1.7 m x 2.16 m
Primary Bedroom
Upper Level
4.99 m x 4.99 m
Bedroom 2
Upper Level
4.26 m x 3.04 m
Bedroom 3
Upper Level
3.35 m x 4.14 m

Location