1001 - 460 Callaway Road, London North, Ontario N6G 0Z2

Listed for:
$919,000
2 beds
2 baths
Listed 80 days ago
Apartment for rent: 1001 - 460 Callaway Road, London North, Ontario N6G 0Z2

View all 40 photos

Learn more about this property
Listing provided by:
SUTTON GROUP - SELECT REALTY
MLS® number:
X12475319
Agent:
Shawn Nagy
*Indicates required field
Name is required
Email is required
Please enter a valid phone number (e.g., 416-111-1111).

About

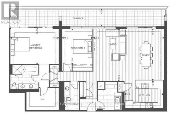
Cross Streets: Sunningdale/Richmond. ** Directions: North on Richmond Road, left onto Sunningdale Road, right onto Callaway and left into 460/480 Callaway. Welcome to the pinnacle of luxury living in NorthLink's premier Penthouse Residence. This stunning, fully exposed west-facing suite showcases breathtaking panoramic sunset views that stretch over the exclusive Sunningdale Golf Course and the endless countryside beyond. The custom-designed floor plan spans nearly 1,700 square feet of living space that has every room framed by floor-to-ceiling windows that flood each with natural light. Step out onto your expansive 350-square-foot terrace, offering uninterrupted front-row views of the most picturesque sunsets in the city. The open-concept kitchen features high-end cabinetry that are dressed in quartz countertops, a cabinet-faced pantry, a 4-seat peninsula, a complete KitchenAid appliance package with dual built-in wall ovens, and a large wine fridge-perfect for enjoying chilled drinks as the sun sets. The primary suite continues the theme of westward views through full-height windows, complemented by a spacious walk-in closet and a luxurious 5-piece ensuite showing-off heated tile floors, a double quartz vanity, and a full-height tiled shower. Rich engineered hardwood flooring flows seamlessly through the main living spaces. Enjoy in-suite laundry with ample storage, offering plenty of space for golf clubs and personal items. Two premium side-by-side parking spots located next to the elevator add effortless convenience, alongside a large private storage locker (all with separate PINs). NorthLink's exceptional amenities include pickle-ball courts, a state-of-the-art fitness centre, a golf simulator, bike paths, and of course, direct access to the Sunningdale Golf & Country Club. Perfectly situated on London's desirable Northern edge, just moments from all Masonville area conveniences, this penthouse offers an unparalleled lifestyle of elegance, comfort, and breathtaking views. (id:27476)

Property Highlights

MLS® Number
X12475319
Type
Single Family
Community Name
North R
Maintenance Fee
679.00
Ownership Type
Condominium/Strata
Parking Space Total
2

Building

Building Type
Apartment
Square Footage
1600 - 1799 sqft
Bathrooms Total
2
Bedrooms Above Ground
2
Bedrooms Total
2
Amenities
Exercise Centre, Visitor Parking, Fireplace(s), Storage - Locker Golf Nearby, Hospital, Park, Place of Worship
Exterior Finish
Brick
Fireplace Present
Yes
Basement Type
None
Basement Features
Building Heating Type
Forced air
Heating Fuel
Natural gas
Building Cooling Type
Central air conditioning

Location

Street Spotlight - For sale