50 - 620 Thistlewood Drive, London North, Ontario N5X 0A9

Listed for:
$624,900
3 beds
3 baths
Listed 36 days ago
Row / Townhouse for rent: 50 - 620 Thistlewood Drive, London North, Ontario N5X 0A9

View all 47 photos

Learn more about this property
Listing provided by:
CENTURY 21 FIRST CANADIAN CORP
MLS® number:
X12578152
Agent:
Adam Salt
*Indicates required field
Name is required
Email is required
Please enter a valid phone number (e.g., 416-111-1111).

About

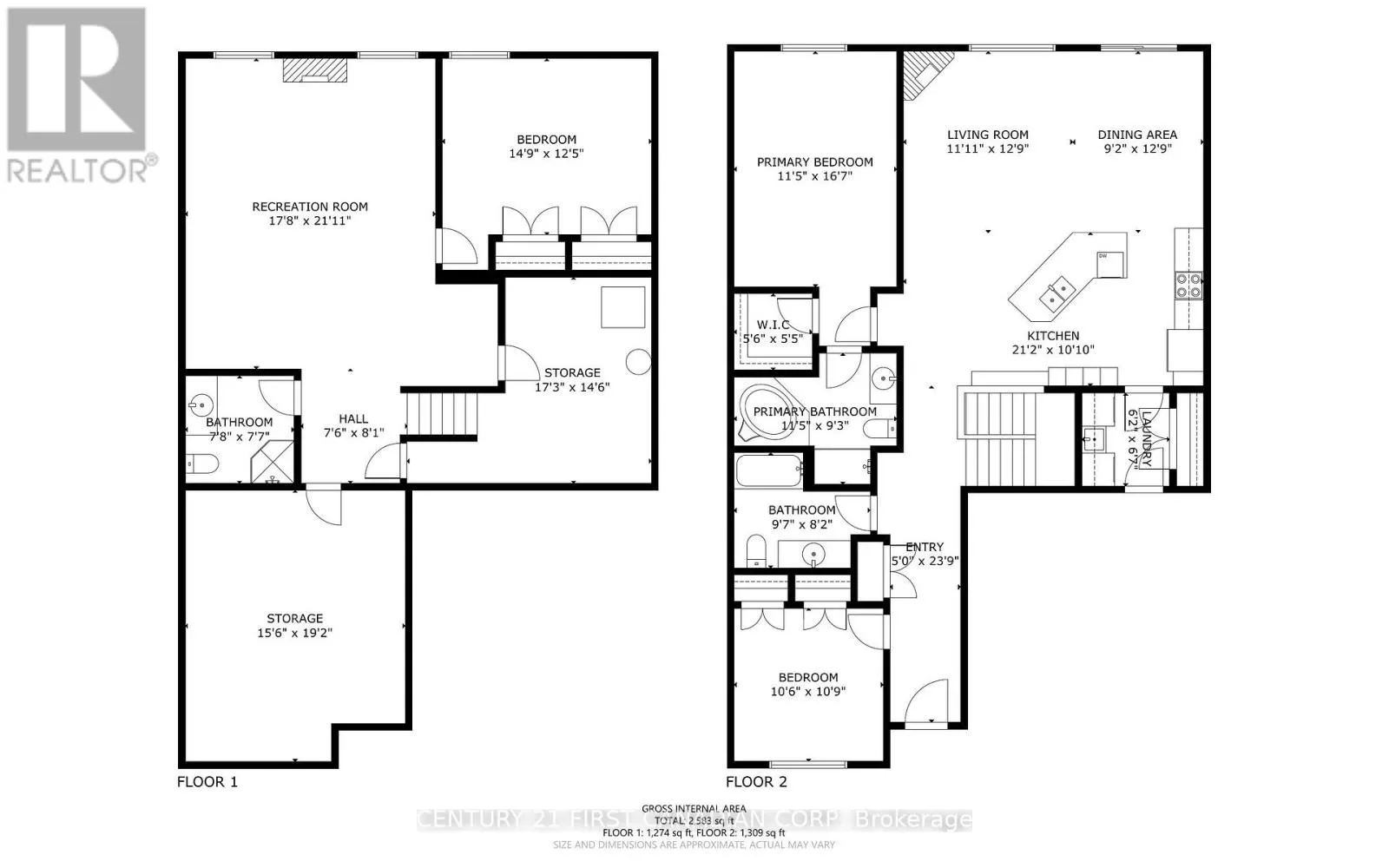
Cross Streets: ADELAIDE AND SUNNINGDALE. ** Directions: EAST ON BLACKWATER NORTH ON THISTLEWOOD. PROPERTY ON LEFT. Welcome to this fabulous home centrally located in the Stoney Creek Grove community. This very desirable Auburn Sheffield model offers an open concept design perfect for entertaining and a modern lifestyle. Gorgeous gourmet kitchen perfect for hosting friends and family with a spacious eat-in area and cozy family room with fireplace all bathed in natural light. Step out to your private deck. The primary bedroom is extremely large with its luxury ensuite and walk in closet. The lower level features a family room complete with a cozy fireplace, a third bedroom, a 3 piece bath and lots of storage space in a a very large unfinished area which could easily be finished for even more space! This home shows like a model with attention to detail and is definitely move-in ready. Dont miss out on this one. Its clean as a whip! (id:27476)

Property Highlights

MLS® Number
X12578152
Type
Single Family
Community Name
North C
Maintenance Fee
360.00
Ownership Type
Condominium/Strata
Parking Space Total
4

Building

Building Type
Row / Townhouse
Storeys
1.00
Square Footage
1200 - 1399 sqft
Bathrooms Total
3
Bedrooms Above Ground
2
Bedrooms Total
3
Exterior Finish
Brick Veneer
Fireplace Present
Yes
Basement Type
N/A (Finished)
Basement Features
Building Heating Type
Forced air
Heating Fuel
Natural gas
Building Cooling Type
Central air conditioning

Location

Community Spotlight: Homes For sale in Your Neighborhood