1604 Vandusen Court, London North, Ontario N5X 0G2

Listed for:
$1,080,000
4 beds
4 baths
Listed 52 days ago
House for rent: 1604 Vandusen Court, London North, Ontario N5X 0G2

View all 18 photos

About

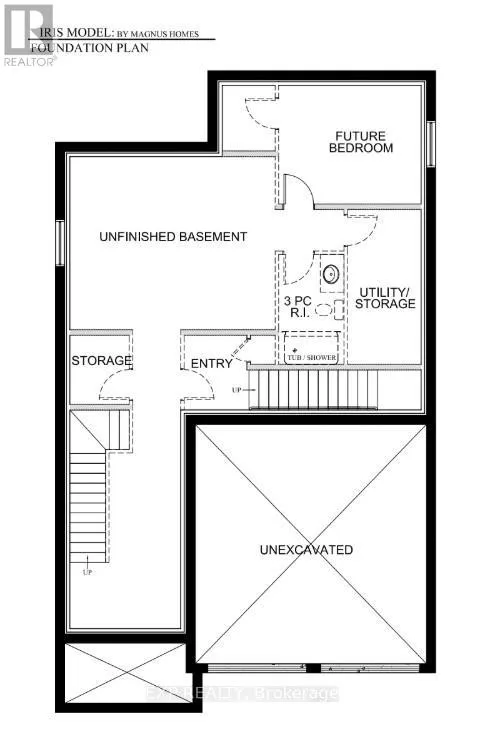
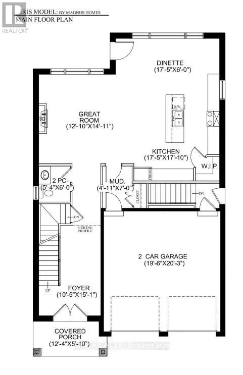
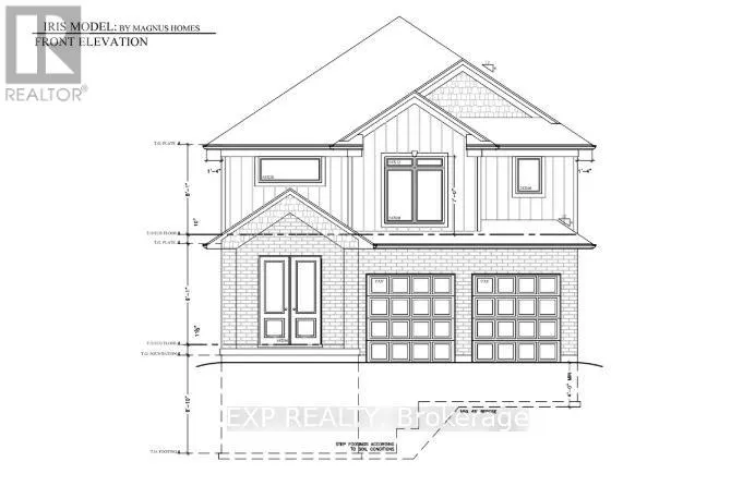
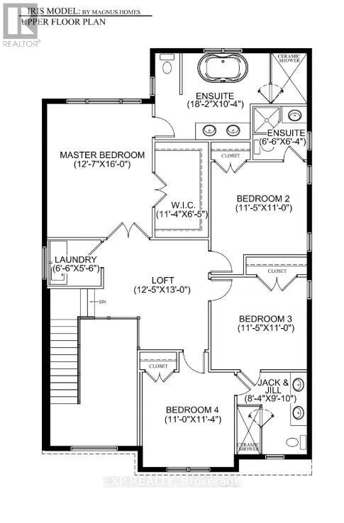
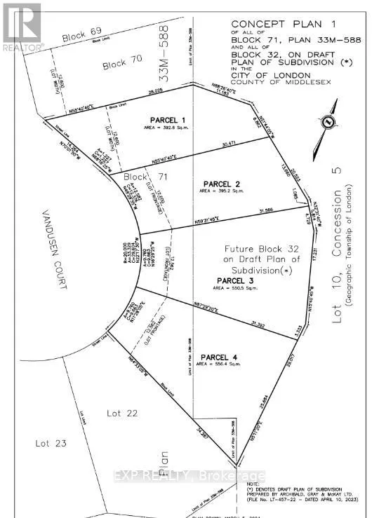
Cross Streets: Stackhouse/Fanshawe. ** Directions: from stackhouse tunr onto devos, then right onto Vandusen Crt. Lots are at the back left. Prime pond-backing premium building lots on a desirable Stoney Creek dead end Cul de Sac! TO BE BUILT by Magnus Homes, offering a variety of thoughtfully designed floor plans ranging from 3-bedroom models (1,800 sq ft) to 4-bedroom homes (up to 2,400 sq ft) or custom designs allowing you to build your forever home in an exceptional setting.The featured IRIS Model offers a functional 2-storey layout with 4 bedrooms, each with ensuite privileges, convenient second-floor laundry, and a separate side/garage entrance with private staircase to the basement-ideal for potential IN-LAW setup. The bright open-concept main floor includes a spacious great room, island kitchen, and dining area with oversized windows and patio doors overlooking the backyard and ponds. Four premium lots are available. Build new in one of Stoney Creek's most sought-after locations with pond views and quality craftsmanship by Magnus Homes. *Pictures are from various different model homes (id:27476)

Property Highlights

MLS® Number
X12813080
Type
Single Family
Community Name
North C
Ownership Type
Freehold
Land Size
41 x 103 FT|under 1/2 acre
Parking Space Total
6

Building

Building Type
House
Storeys
2.00
Square Footage
2000 - 2500 sqft
Bathrooms Total
4
Bedrooms Above Ground
4
Bedrooms Total
4
Amenities
Fireplace(s) Park
Exterior Finish
Brick, Vinyl siding
Fireplace Present
Yes
Basement Type
Full, N/A, N/A
Basement Features
Walk out, Walk-up
Building Heating Type
Forced air
Heating Fuel
Natural gas
Building Cooling Type
Central air conditioning

Utilities

Water
Municipal water
Utility Sewer
Sanitary sewer

Location

Learn more about this property
Listing provided by:
EXP REALTY
MLS® number:
X12813080
Agent:
Mike Ashby
*Indicates required field
Name is required
Email is required
Please enter a valid phone number (e.g., 416-111-1111).

Community Spotlight: Homes For sale in Your Neighborhood