881 Lunar Drive, London North, Ontario N6G 3X9

Listed for:
$1,619,900
3 beds
3 baths
Listed 79 days ago
House for rent: 881 Lunar Drive, London North, Ontario N6G 3X9

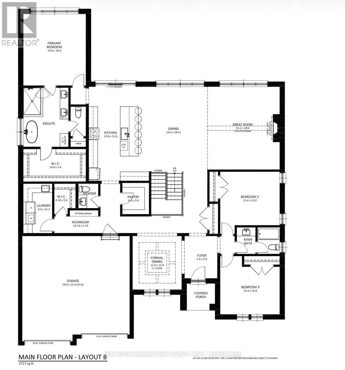
View all 4 photos

About

Buroak Welcome to Sunningdale Crossing! Discover exceptional one-floor living in this beautifully designed custom 1 floor model, perfectly positioned on a rare corner lot with impressive wide frontage that enhances both curb appeal and privacy. The Rathburn model by Legacy Homes is thoughtfully crafted for comfort and style. This expansive 2,717 sf home offers an open, airy layout highlighted by a soaring vaulted ceiling in the great room creating a bright and welcoming atmosphere. This home offers 3 generous bedrooms and 2.5 bathrooms, including a serene primary ensuite designed for relaxation. A versatile den proves the perfect space for a home office, reading room, or flex area to suit your lifestyle. At the centre of the home, is a spacious living and dining area ideal for entertaining, while emphasizing functionality and comfort. Set on a distinctive corner lot with wide frontage, this home offers a sense of space rarely found, with endless protentional for beautiful landscaping and outdoor enjoyment. (id:27476)

Property Highlights

MLS® Number
X12840092
Type
Single Family
Community Name
North S
Ownership Type
Freehold
Land Size
85 x 124 FT|under 1/2 acre
Parking Space Total
6

Building

Building Type
House
Storeys
1.00
Square Footage
2500 - 3000 sqft
Bathrooms Total
3
Bedrooms Above Ground
3
Bedrooms Total
3
Amenities
Fireplace(s)
Exterior Finish
Brick Veneer
Fireplace Present
Yes
Basement Type
Full
Basement Features
Building Heating Type
Forced air
Heating Fuel
Natural gas
Building Cooling Type
Central air conditioning, Air exchanger

Utilities

Water
Municipal water
Utility Sewer
Sanitary sewer

Room Layout

Foyer
Main level
2.9 m x 0.73 m
Dining room
Main level
3.66 m x 3.35 m
Great room
Main level
5.67 m x 4.91 m
Kitchen
Main level
6.4 m x 3.66 m
Pantry
Main level
2.17 m x 1.52 m
Primary Bedroom
Main level
4.57 m x 4.27 m
Bedroom
Main level
4.08 m x 3.66 m
Bedroom
Main level
4.08 m x 3.29 m
Laundry room
Main level
3.38 m x 1.98 m
Mud room
Main level
4.3 m x 0.94 m

Location

Learn more about this property
Listing provided by:
NU-VISTA PRIMELINE REALTY INC.
MLS® number:
X12840092
Agent:
Anthony Roach
*Indicates required field
Name is required
Email is required
Please enter a valid phone number (e.g., 416-111-1111).