827 Kleinburg Drive E, London North, Ontario N5X 0N6

Listed for:
$2,550
3 beds
2 baths
Listed 29 days ago
Row / Townhouse for rent: 827 Kleinburg Drive E, London North, Ontario N5X 0N6

View all 37 photos

About

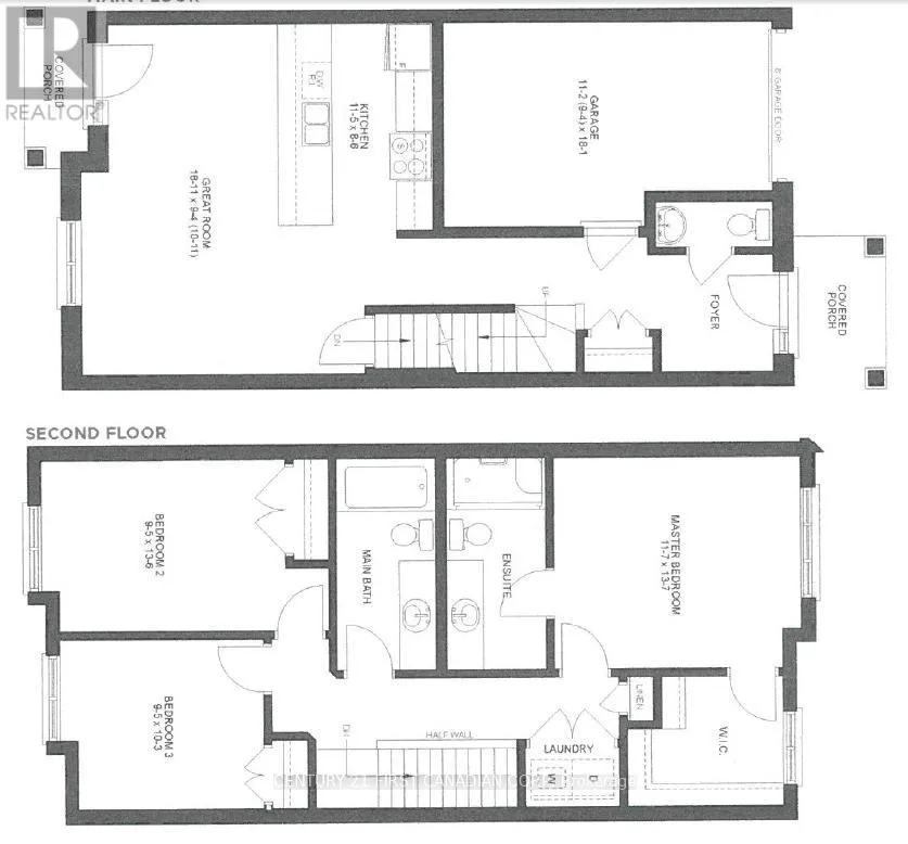
Richmond north to Sunningdale West, Canvas way North to Kleinberg East Only 3 Year old townhouse in North London's premium location off Sunningdale Road. 2-story, 3 bed, 2.5 bath, Open concept with breakfast bar. Quartz counters in kitchen and bathrooms, Laminate hardwood in all living areas and ceramics in bathrooms. Available NOW! (id:27476)

Property Highlights

MLS® Number
X12842012
Type
Single Family
Community Name
North B
Ownership Type
Condominium/Strata
Parking Space Total
2

Building

Building Type
Row / Townhouse
Storeys
2.00
Square Footage
1400 - 1599 sqft
Bathrooms Total
2
Bedrooms Above Ground
3
Bedrooms Total
3
Amenities
Visitor Parking Hospital
Exterior Finish
Brick, Vinyl siding
Fireplace Present
No
Basement Type
Full (Unfinished)
Basement Features
Building Heating Type
Forced air
Heating Fuel
Natural gas
Building Cooling Type
Central air conditioning

Location

Learn more about this property
Listing provided by:
CENTURY 21 FIRST CANADIAN CORP
MLS® number:
X12842012
Agent:
Sonia Patpatia
*Indicates required field
Name is required
Email is required
Please enter a valid phone number (e.g., 416-111-1111).