41 - 55 Fiddlers Green Road, London North, Ontario N6H 4T8

Listed for:
$529,000
2 beds
3 baths
Listed 67 days ago
Row / Townhouse for rent: 41 - 55 Fiddlers Green Road, London North, Ontario N6H 4T8

View all 33 photos

About

Cross Streets: Hyde Park and Oxford. ** Directions: From Oxford, head south on Fiddlers Green Rd. Welcome to this beautifully maintained end-unit bungalow condo offering the perfect blend of comfort and convenience. This bright and spacious home features 2 bedrooms plus a versatile den, ideal for a home office or guest space. With 2.5 bathrooms and hardwood floors throughout, the layout is both stylish and functional.The attached garage adds everyday convenience with entry to the home, while the low-maintenance condo lifestyle allows you to enjoy more of your time. (id:27476)

Property Highlights

MLS® Number
X12870324
Type
Single Family
Community Name
North P
Maintenance Fee
405.00
Ownership Type
Condominium/Strata
Parking Space Total
4

Building

Building Type
Row / Townhouse
Storeys
1.00
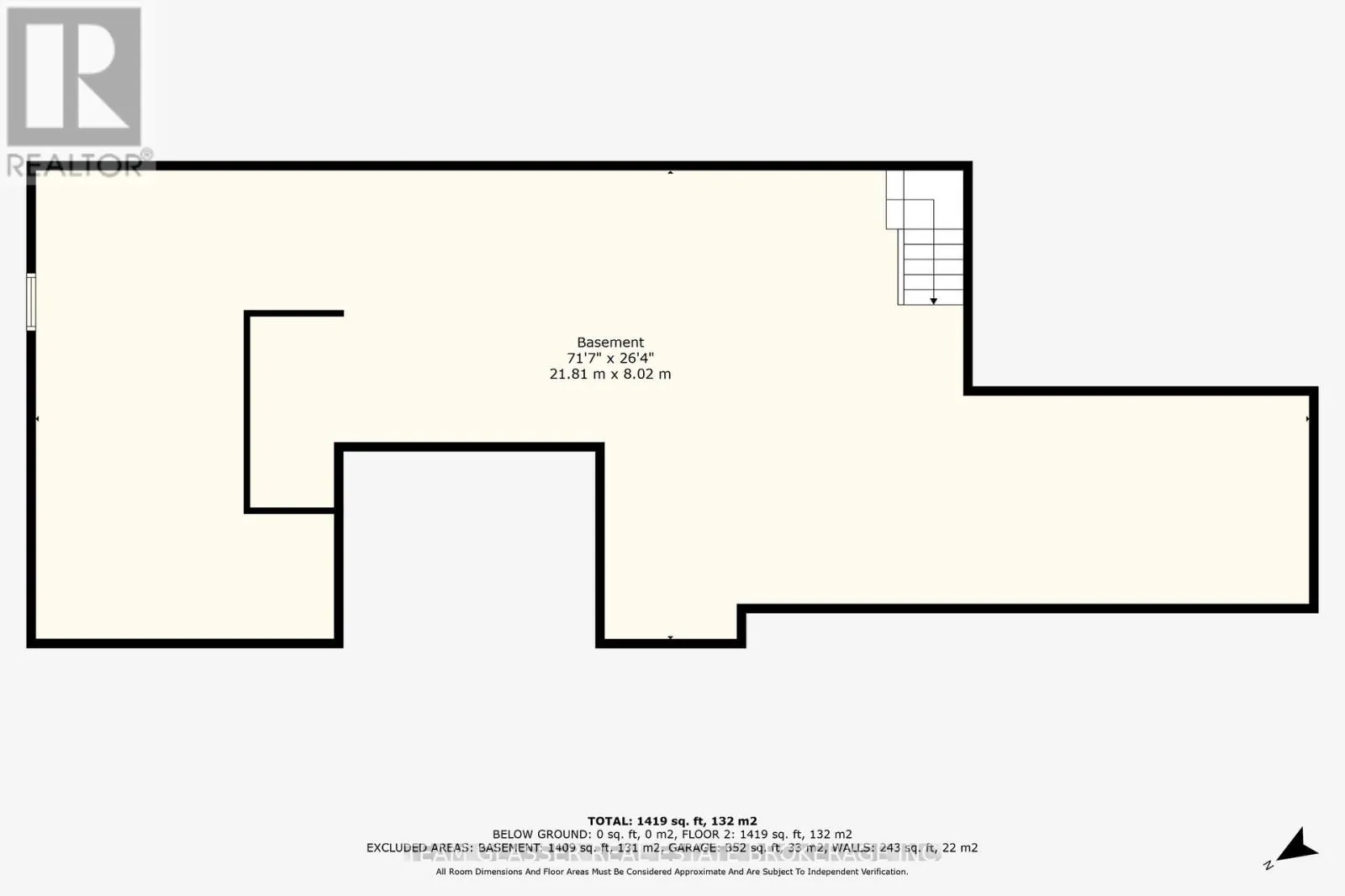
Square Footage
1400 - 1599 sqft
Bathrooms Total
3
Bedrooms Above Ground
2
Bedrooms Total
2
Exterior Finish
Brick
Fireplace Present
Yes
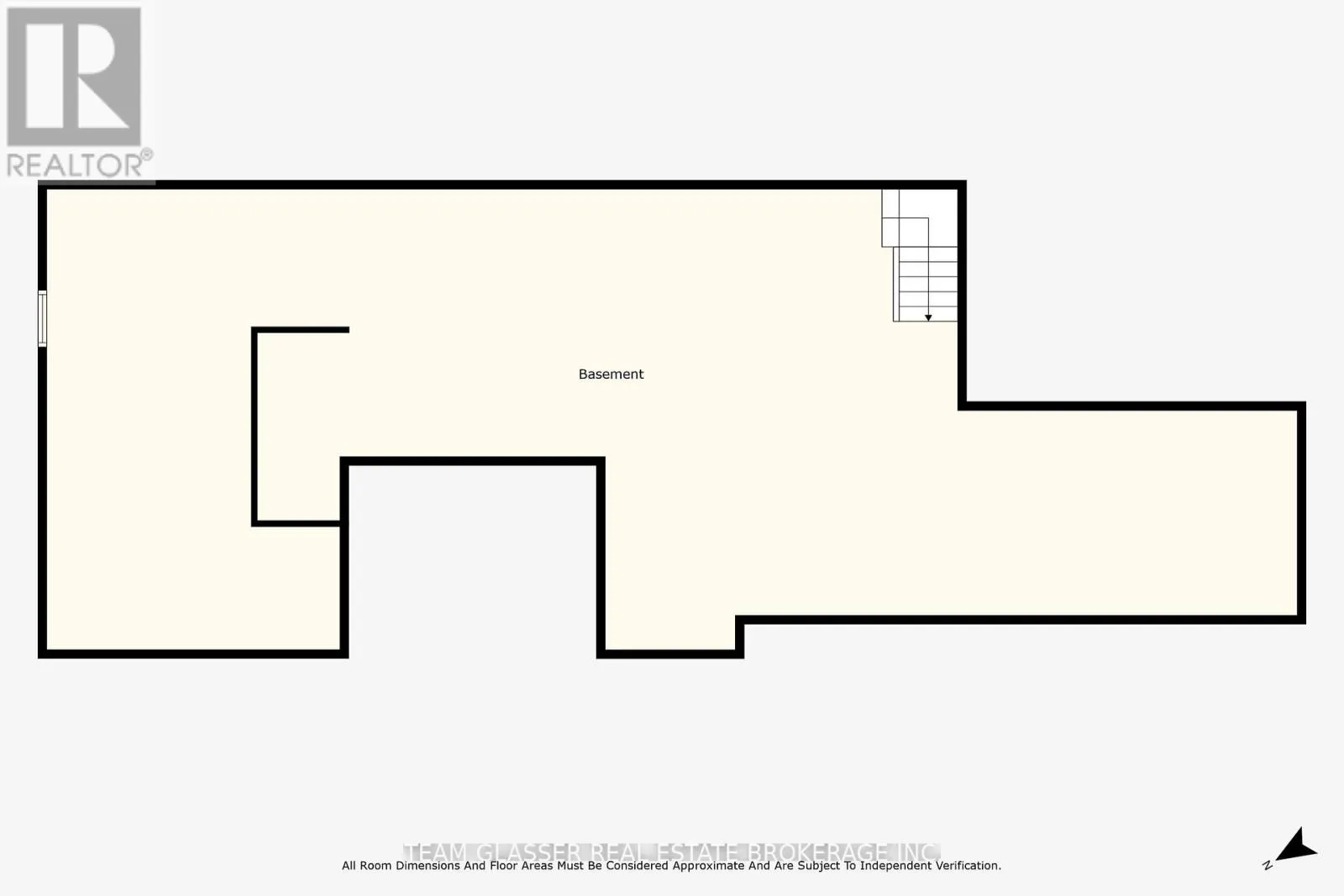
Basement Type
N/A (Unfinished)
Basement Features
Building Heating Type
Forced air
Heating Fuel
Natural gas
Building Cooling Type
Central air conditioning

Location

Learn more about this property
Listing provided by:
TEAM GLASSER REAL ESTATE BROKERAGE INC.
MLS® number:
X12870324
Agent:
Nick Spitters
*Indicates required field
Name is required
Email is required
Please enter a valid phone number (e.g., 416-111-1111).

Street Spotlight - For sale