Lot 42 Robbie's Way, London North, Ontario N6G 3X8

Listed for:
$1,349,900
3 beds
3 baths
Listed 65 days ago
House for rent: Lot 42 Robbie's Way, London North, Ontario N6G 3X8

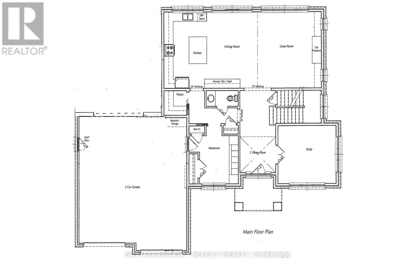
View all 4 photos

About

Cross Streets: Sunningdale Road. ** Directions: From Sunningdale Road, between Richmond St and Wonderland Rd, turn south on Robbie's Way. Build your family's next home in North London's premiere new community, Sunningdale Court, nestled between Sunningdale Golf & Country Club and Medway Valley Heritage Forest. Marquis Developments Hassan plan has a family friendly layout with open and spacious main floor living area across the back of the home that includes kitchen with huge island and walk-in pantry, dining area and great room with gas fireplace. Private main floor study has vaulted ceiling and large window. Oversized mudroom with bench and plenty of storage. The primary suite includes a huge walk-in closet and luxury 5-piece ensuite bathroom with double vanity, glass shower and free-standing tub. Bedrooms 2 and 3 each have walk-in closets and their own bathroom vanity and share a unique Jack & Jill 2-piece with shower. Fourth bedroom option and/or customization available. Front elevation images are for illustration purpose only. Other plans available or bring your ideas and Marquis will design your custom home. Now selling in phase 2 and 3. Contact listing agent for more details. (id:27476)

Property Highlights

MLS® Number
X12888246
Type
Single Family
Community Name
North R
Ownership Type
Freehold
Land Size
61 x 125 FT ; 26.52ftx43.87ftx125.15ftx61.61ftx106.38
Parking Space Total
4

Building

Building Type
House
Storeys
2.00
Square Footage
2500 - 3000 sqft
Bathrooms Total
3
Bedrooms Above Ground
3
Bedrooms Total
3
Amenities
Fireplace(s)
Exterior Finish
Brick, Stucco
Fireplace Present
Yes
Basement Type
N/A (Unfinished)
Basement Features
Building Heating Type
Forced air
Heating Fuel
Natural gas
Building Cooling Type
Central air conditioning

Utilities

Water
Municipal water
Utility Sewer
Sanitary sewer

Location

Learn more about this property
Listing provided by:
SUTTON GROUP - SELECT REALTY
MLS® number:
X12888246
Agent:
Todd Jackson
*Indicates required field
Name is required
Email is required
Please enter a valid phone number (e.g., 416-111-1111).