397 Grangeover Court, London North, Ontario N6G 4K8

Listed for:
$1,649,900
6 beds
4 baths
Listed 1 day ago
House for rent: 397 Grangeover Court, London North, Ontario N6G 4K8

View all 50 photos

About

Cross Streets: Windermere Rd and Corley Dr. ** Directions: From Windermere - North on Corley, west on Grangeover Ave, left onto Grangeover Court. Prestige, scale, and opportunity converge in this stately all-brick Harasym residence, privately tucked on a quiet cul-de-sac in sought-after Windermere Heights, North London, London. Offering approximately 7,400 square feet of finished living space, this grand estate is ideal for large or multi-generational families seeking exceptional space to live and entertain. A welcoming enclosed entry opens to a dramatic two-storey foyer with cathedral ceilings, hardwood floors, and a sweeping oak staircase with Juliette balcony. The main floor blends elegance and function, featuring a private office with built-ins, formal dining with butler access, oversized eat-in kitchen, sun-filled family room with fireplace, spacious living room, bright sunroom with California shutters, and mudroom with main-floor laundry. Upstairs offers five generous bedrooms. The primary retreat includes a walk-in closet, private ensuite, and sunlit sitting area ideal for reading or office use. The finished walk-up lower level, with direct access from the triple-car garage, adds exceptional versatility with a massive recreation area, additional living space, den, full bath, second laundry rough-in, extensive storage, and a large sixth bedroom with in-law potential. The fully fenced backyard is a private oasis featuring mature landscaping, deck, interlock patio, two sheds, and a heated saltwater in-ground pool with new heater, pump, and equipment (2024).Additional features include EV charger (2024), central vacuum, skylights, and quality craftsmanship throughout. Minutes to Western University, University Hospital, Masonville shopping, top schools, trails, and parks. A rare opportunity to secure estate-scale living in one of North London's most prestigious neighbourhoods. (id:27476)

Property Highlights

MLS® Number
X12945158
Type
Single Family
Community Name
North A
Ownership Type
Freehold
Land Size
83.5 x 140.6 FT|under 1/2 acre
Parking Space Total
9

Building

Building Type
House
Storeys
2.00
Square Footage
5000 - 100000 sqft
Bathrooms Total
4
Bedrooms Above Ground
5
Bedrooms Total
6
Amenities
Fireplace(s) Hospital
Exterior Finish
Brick
Fireplace Present
Yes
Basement Type
N/A, N/A (Finished)
Basement Features
Walk-up
Building Heating Type
Forced air
Heating Fuel
Natural gas
Building Cooling Type
Central air conditioning

Utilities

Water
Municipal water
Utility Sewer
Sanitary sewer

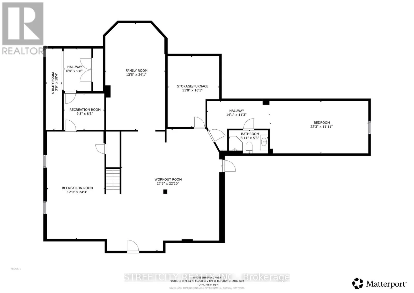
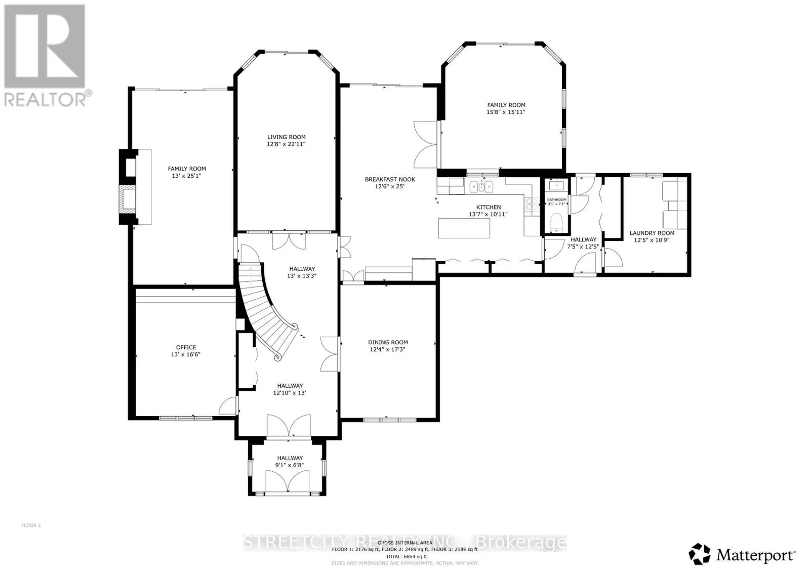
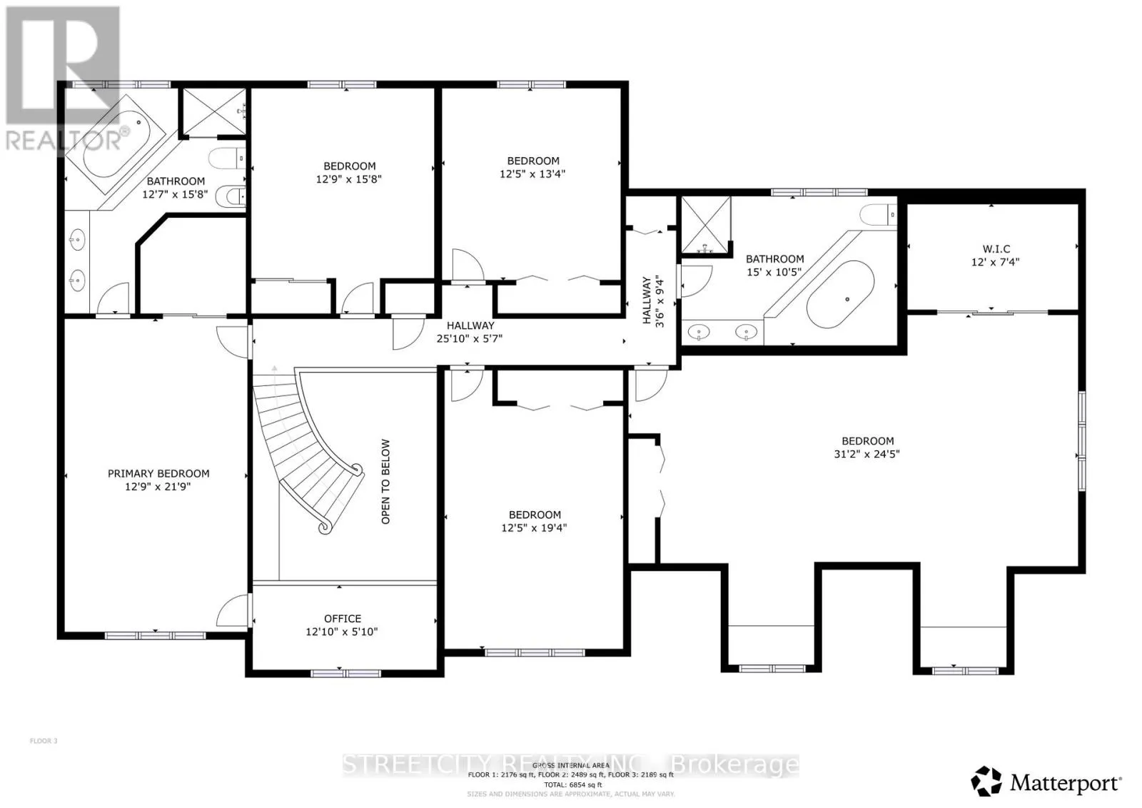
Room Layout

Primary Bedroom
Second level
6.71 m x 3.99 m
Other
Second level
3.99 m x 4.7 m
Bedroom
Second level
3.94 m x 4.7 m
Bedroom
Second level
3.81 m x 3.99 m
Bedroom
Second level
3.78 m x 5.61 m
Bedroom
Second level
9.6 m x 7.32 m
Bathroom
Second level
4.72 m x 3.2 m
Recreational, Games room
Basement
11.73 m x 8.1 m
Family room
Basement
6.91 m x 3.96 m
Den
Basement
10.72 m x 3.51 m
Den
Basement
2.74 m x 2.46 m
Other
Basement
1.83 m x 2.87 m
Utility room
Basement
1.07 m x 5.41 m
Bathroom
Basement
2.67 m x 2.79 m
Bathroom
Main level
Measurements not available
Foyer
Main level
6.25 m x 3.89 m
Office
Main level
3.96 m x 5.05 m
Dining room
Main level
3.76 m x 5.16 m
Living room
Main level
3.96 m x 7.04 m
Other
Main level
7.85 m x 3.91 m
Other
Main level
3.78 m x 3.51 m
Sunroom
Main level
4.65 m x 4.72 m
Laundry room
Main level
3.2 m x 3.63 m
Mud room
Main level
2.24 m x 3.66 m

Location

Learn more about this property
Listing provided by:
STREETCITY REALTY INC.
MLS® number:
X12945158
Agent:
Tony Tang
*Indicates required field
Name is required
Email is required
Please enter a valid phone number (e.g., 416-111-1111).