Lot 30 White Pine Street, London North, Ontario N6G 3X9

Listed for:
$1,094,900
3 beds
3 baths
Listed Today
House for rent: Lot 30 White Pine Street, London North, Ontario N6G 3X9

View all 13 photos

About

Cross Streets: Wonderland Road North and Eagletrace Drive. ** Directions: Take Wonderland Road North towards Sunningdale Rd, make a left onto Eagletrace Drive, make a right onto Burloak Drive, right onto White Pine Street. Royal Oak Homes proudly presents the "Kleinburg I", a stunning 2-storey home with 3 bedrooms, 2.5 baths, and a spacious 2-car garage, offered as a TO BE BUILT home in the prestigious Sunningdale Crossings community in North London. Thoughtfully designed, this residence perfectly combines style, functionality, and comfort. The main floor features an open-concept layout with a welcoming family room, dining area, and kitchen, designed for seamless living and entertaining plus a private office and a convenient main-floor laundry for everyday ease. The upper-level hosts three generous bedrooms, including a spacious primary suite with a walk-in closet and luxurious 5-piece ensuite. Enjoy quick access to parks, scenic trails, top-rated schools, shopping, and major highways. More plans and lots are available. Photos are from previous models for illustrative purposes; each model differs in design and client selections. (id:27476)

Property Highlights

MLS® Number
X12946852
Type
Single Family
Community Name
North S
Ownership Type
Freehold
Land Size
60 x 124 FT
Parking Space Total
4

Building

Building Type
House
Storeys
2.00
Square Footage
2000 - 2500 sqft
Bathrooms Total
3
Bedrooms Above Ground
3
Bedrooms Total
3
Amenities
Fireplace(s) Park, Public Transit, Golf Nearby
Exterior Finish
Stone, Stucco
Fireplace Present
Yes
Basement Type
N/A (Unfinished)
Basement Features
Building Heating Type
Forced air
Heating Fuel
Natural gas
Building Cooling Type
Central air conditioning

Utilities

Water
Municipal water
Utility Sewer
Sanitary sewer

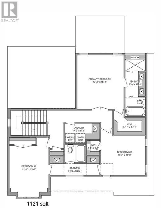
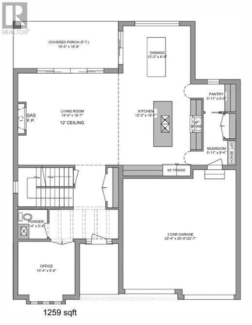
Room Layout

Office
Main level
3.35 m x 2.74 m
Living room
Main level
4.87 m x 4.26 m
Dining room
Main level
2.74 m x 4.26 m
Kitchen
Main level
3.41 m x 4.26 m
Laundry room
Main level
3.53 m x 2.43 m
Bathroom
Main level
1.85 m x 0.95 m
Bathroom
Upper Level
1.76 m x 2.46 m
Primary Bedroom
Upper Level
3.96 m x 4.51 m
Bedroom 2
Upper Level
3.47 m x 3.23 m
Bedroom 3
Upper Level
3.04 m x 3.35 m
Bathroom
Upper Level
2.98 m x 2.83 m

Location

Learn more about this property
Listing provided by:
CENTURY 21 FIRST CANADIAN CORP
MLS® number:
X12946852
Agent:
Jenny Drygas
*Indicates required field
Name is required
Email is required
Please enter a valid phone number (e.g., 416-111-1111).

Street Spotlight - For sale