1103 - 260 Villagewalk Boulevard, London North, Ontario N6G 0W6

Listed for:
$4,850
2 beds
2 baths
Listed 9 days ago
Apartment for rent: 1103 - 260 Villagewalk Boulevard, London North, Ontario N6G 0W6

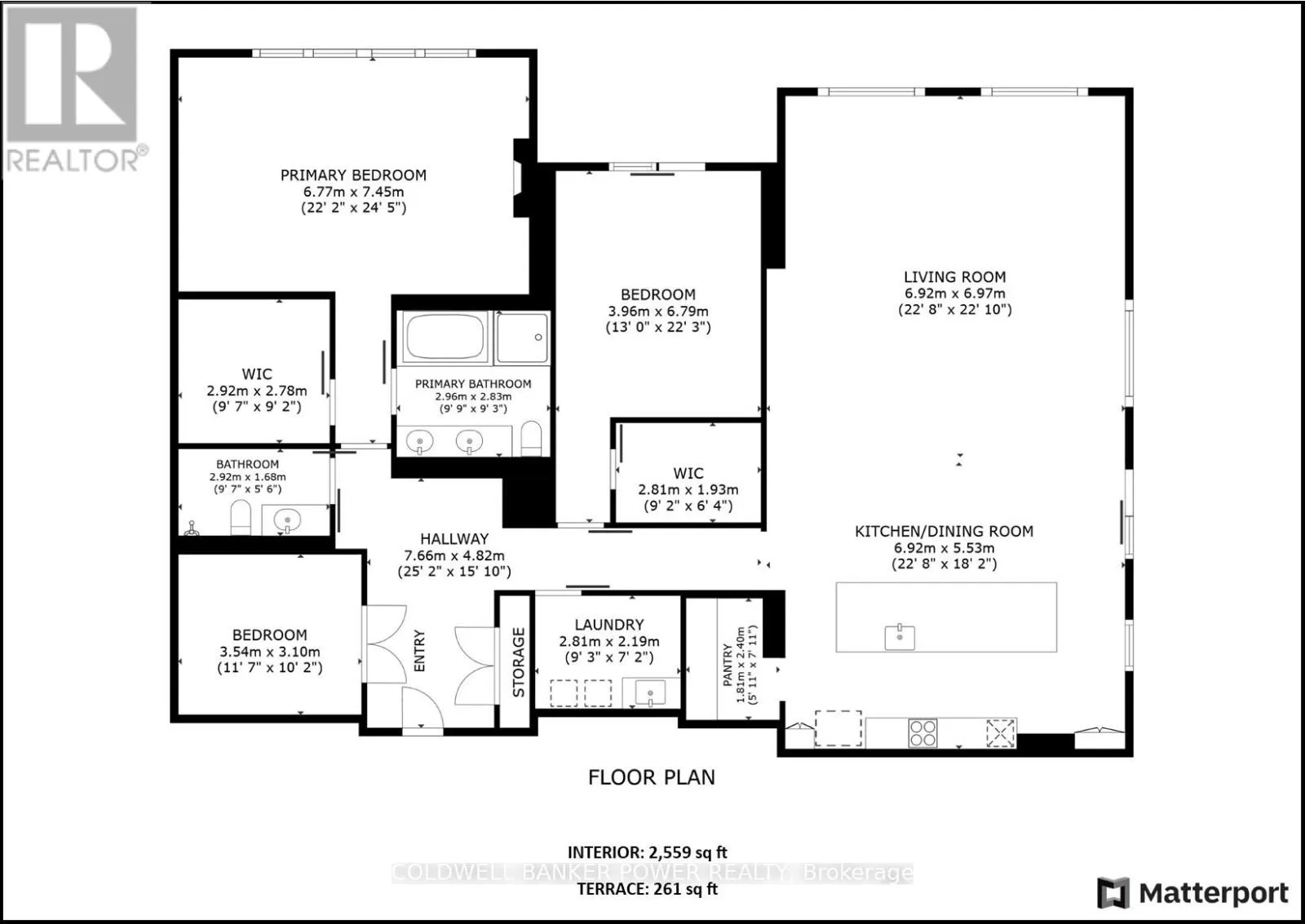
View all 50 photos

About

Cross Streets: Sunningdale to Meadowlands to Callingham Dr. ** Directions: Richmond to Sunningdale to Villagewalk. Stunning Executive Penthouse in Northwest London. Welcome to this fully renovated, luxurious penthouse condo offering over 3,200 sq. ft. of exquisite living space in Northwest London. This spacious 2-bedroom, 2-bathroom residence includes a versatile office/den, making it perfect for modern living and working. Boasting panoramic views from every angle, this home is designed for those who appreciate the finer things in life. The open-concept kitchen and living area span an impressive 41 x 21 feet, ideal for entertaining. The chefs kitchen features a striking 14' x 4'waterfall island, custom cabinetry, ample storage and a spacious pantry with built-in shelving, creating a sophisticated space for cooking and hosting. Enjoy the comfort and luxury of your primary bedroom with a fireplace, 5-piece ensuite, large walk-in closets and custom window coverings throughout the condo. With two premium side-by-side parking spaces equipped with EV charging, convenience is key. The building offers first-class amenities, including an indoor pool, gym, golf simulator, theatre room, and a party/meeting room all designed to enhance your lifestyle. Experience executive living at its finest in this truly unique penthouse, where luxury, style, and convenience come together in perfect harmony. Please book your private showing today. (id:27476)

Property Highlights

MLS® Number
X12967192
Type
Single Family
Community Name
North R
Ownership Type
Condominium/Strata
Parking Space Total
2

Building

Building Type
Apartment
Square Footage
2500 - 2749 sqft
Bathrooms Total
2
Bedrooms Above Ground
2
Bedrooms Total
2
Amenities
Exercise Centre, Party Room, Recreation Centre, Storage - Locker Schools, Place of Worship, Park, Golf Nearby, Public Transit
Exterior Finish
Concrete
Fireplace Present
Yes
Basement Type
None
Basement Features
Building Heating Type
Forced air
Heating Fuel
Natural gas
Building Cooling Type
Central air conditioning

Location

Learn more about this property
Listing provided by:
COLDWELL BANKER POWER REALTY
MLS® number:
X12967192
Agent:
Kristen Hanke
*Indicates required field
Name is required
Email is required
Please enter a valid phone number (e.g., 416-111-1111).