1168 Hobbs Drive, London South, Ontario N6M 1C1

Listed for:
$749,900
2 beds
2 baths
Listed 115 days ago
House for rent: 1168 Hobbs Drive, London South, Ontario N6M 1C1

View all 3 photos

Learn more about this property
Listing provided by:
INITIA REAL ESTATE (ONTARIO) LTD
MLS® number:
X12162256
Agent:
Lawangeen Khan
*Indicates required field
Name is required
Email is required
Please enter a valid phone number (e.g., 416-111-1111).

About

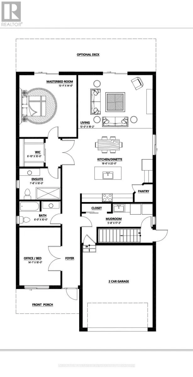
JACKSON RD & GATESTONE RD Welcome to easy, elegant living in Jackson Meadows, Southeast London's vibrant new community! This beautifully crafted 1600 square feet one-floor bungalow by Dominion Homes offers a thoughtfully designed layout featuring 2 spacious bedrooms and 2 full bathrooms, ideal for downsizers, professionals, or small families seeking comfort and convenience. The primary bedroom serves as a private retreat, complete with a luxurious ensuite bathroom and walk-in closet. The open-concept kitchen, dining, and living area is perfect for entertaining or relaxing, all finished with high-quality materials and modern touches throughout. An attached double garage and ample storage add to the homes functionality, while Dominion Homes offers optional upgrades and floorplans to suit your lifestyle. Located close to schools, parks, shopping, and with easy access to Highways 401 and 402, this home combines exceptional craftsmanship with unbeatable location. Don't miss your opportunity to build your dream bungalow in the sought-after Jackson Meadows community. Builder will finish the basement with 2 bedrooms, kitchen and 4 pcs bathroom and all appliances on both floors for 800K. We have no model home at the moment to show. (id:27476)

Property Highlights

MLS® Number
X12162256
Type
Single Family
Community Name
South U
Ownership Type
Freehold
Land Size
34.3 x 108.6 FT|under 1/2 acre
Parking Space Total
2

Building

Building Type
House
Storeys
1.00
Square Footage
1500 - 2000 sqft
Bathrooms Total
2
Bedrooms Above Ground
2
Bedrooms Total
2
Exterior Finish
Vinyl siding, Brick Facing
Fireplace Present
No
Basement Type
N/A (Unfinished)
Basement Features
Building Heating Type
Forced air
Heating Fuel
Natural gas
Building Cooling Type
Central air conditioning

Utilities

Water
Municipal water
Utility Sewer
Sanitary sewer

Room Layout

Kitchen
Main level
3.04 m x 6.7 m
Dining room
Main level
2.44 m x 6.7 m
Living room
Main level
3.96 m x 5.55 m
Primary Bedroom
Main level
4.69 m x 4.27 m
Bedroom 2
Main level
4.26 m x 3.04 m
Bathroom
Main level
Measurements not available
Bathroom
Main level
Measurements not available

Location

Street Spotlight - For sale