5 - 414 Old Wonderland Road, London South, Ontario N6K 3R2

Listed for:
$766,800
3 beds
3 baths
Listed 137 days ago
5 - 414 Old Wonderland Road, London South, Ontario N6K 3R2

View all 38 photos

Learn more about this property
Listing provided by:
SUTTON GROUP PAWLOWSKI & COMPANY REAL ESTATE BROKERAGE INC.
MLS® number:
X12263132
Agent:
Linda Wilson
*Indicates required field
Name is required
Email is required
Please enter a valid phone number (e.g., 416-111-1111).

About

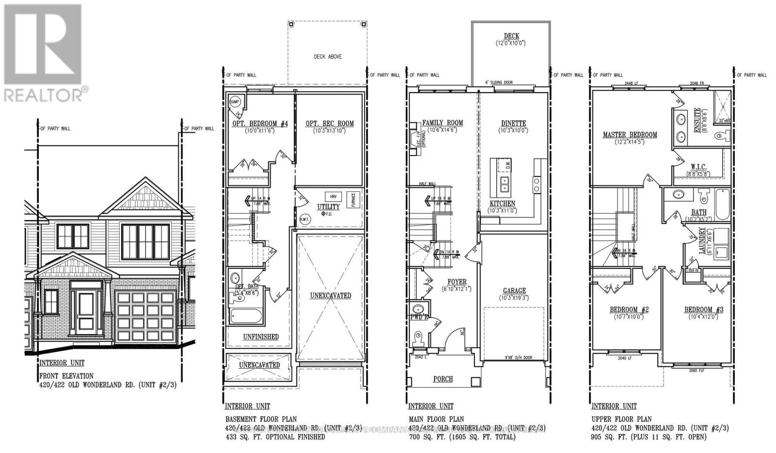
Cross Streets: Teeple Terrace. ** Directions: WONDERLAND RD, EAST ON TEEPLE TERR. & NORTH ON OLD WONDERLAND RD. TO BE BUILT - Quality-Built Vacant Land Condo with the finest features & modern luxury living. This meticulously crafted residence is the epitome of comfort, style, & convenience. Nestled in a quiet peaceful cul-de-sac within the highly sought-after Southwest London neighbourhood. Approx. 1635 sqft interior unit with walkout lower level backing onto green space with finished suite options. You'll immediately notice the exceptional attention to detail, engineered hardwood & 9 ft ceilings throughout main floor. A kitchen with custom-crafted cabinets, quartz counters, tile backsplash & island make a great gathering place. An appliance package is included ensuring that your cooking and laundry needs are met. Dinette area with patio door to back deck. Spacious family room with large windows. Three generously-sized bedrooms. Primary bedroom with large walk-in closet & ensuite with porcelain & ceramic tile shower & quartz counters. Convenient 2nd floor laundry room. Step outside onto your wooden 10' x 12' deck, a tranquil retreat with privacy screen ensures your moments of serenity. This exceptional property is more than just a house; it's a lifestyle. With its thoughtful design, this home offers you comfort & elegance. You'll enjoy the tranquility of suburban life with the convenience of city amenities just moments away. Don't miss out on the opportunity to make this dream property your own. NOTE: PHOTOS ARE FROM A PREVIOUS MODEL HOME & MAY SHOW UPGRADES & ELEVATIONS NOT INCLUDED IN THIS PRICE. (id:27476)

Property Highlights

MLS® Number
X12263132
Type
Vacant Land
Community Name
South N
Maintenance Fee
175.00
Ownership Type
Condominium/Strata
Land Size
.
Parking Space Total
2

Building

Storeys
2.00
Square Footage
1600 - 1799 sqft
Bathrooms Total
3
Bedrooms Above Ground
3
Bedrooms Total
3
Amenities
Visitor Parking Park, Place of Worship, Public Transit
Exterior Finish
Brick, Vinyl siding
Fireplace Present
No
Basement Type
N/A, N/A (Unfinished)
Basement Features
Walk out
Building Heating Type
Forced air
Heating Fuel
Natural gas
Building Cooling Type
Central air conditioning

Location

Street Spotlight - For sale