3841 Big Leaf Trail, London South, Ontario N6P 0A3

Listed for:
$799,900
3 beds
3 baths
Listed 188 days ago
House for rent: 3841 Big Leaf Trail, London South, Ontario N6P 0A3

View all 4 photos

About

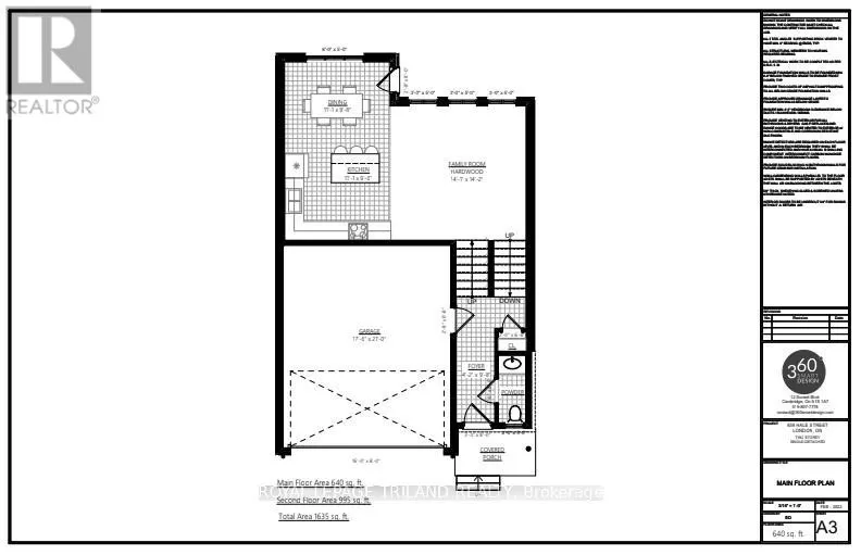
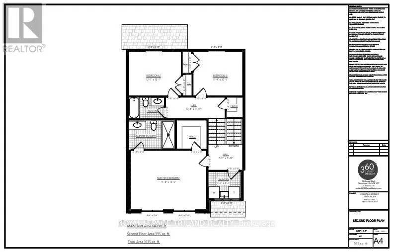
Cross Streets: PETALPATH WAY. ** Directions: NEAR PETALPATH WAY. TO BE BUILT - Welcome to the stunning Chateau model, a beautifully designed 2 storey, open-concept home featuring 3 bedrooms and 3 bathrooms Built by Grand Oak Homes, this modern farm house design combines style, function, and comfort with clean lines, 9 foot ceilings, and large windows that flood the home with natural light. The heart of the home is the spacious living area, highlighted by an airy open concept floor plan. The kitchen boasts quality finishes and seamlessly connects to the dining and living spaces, creating the perfect environment for both everyday living and entertaining. Both bathrooms feature luxurious tiled showers, while the master suite offers a tranquil retreat. A double car garage provides plenty of storage and convenience, while the option to add a side entrance for a future basement apartment adds additional potential. Located in the highly sought-after Lambeth Magnolia Fields subdivision, this home is ideally positioned just minutes from Highway 401, Highway 402, schools, shopping, gyms, golf courses, and nature trails. With Grand Oak Homes Renowned attention to detail and customizable plans, you can tailor the home to suit your needs. (id:27476)

Property Highlights

MLS® Number
X12336473
Type
Single Family
Community Name
South V
Ownership Type
Freehold
Land Size
40 x 115 FT|under 1/2 acre
Parking Space Total
4

Building

Building Type
House
Storeys
2.00
Square Footage
1500 - 2000 sqft
Bathrooms Total
3
Bedrooms Above Ground
3
Bedrooms Total
3
Exterior Finish
Brick, Vinyl siding
Fireplace Present
Yes
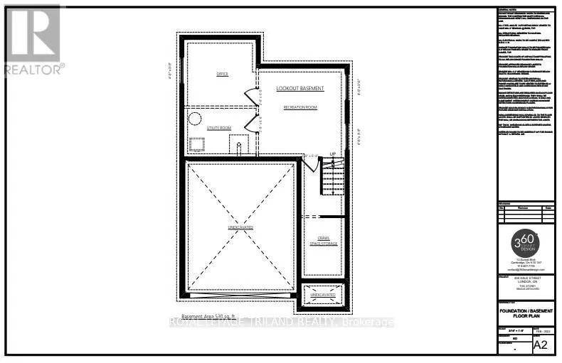
Basement Type
Full (Unfinished)
Basement Features
Building Heating Type
Forced air
Heating Fuel
Natural gas
Building Cooling Type
Central air conditioning

Utilities

Water
Municipal water
Utility Sewer
Sanitary sewer

Room Layout

Primary Bedroom
Second level
5.38 m x 4.11 m
Bedroom 2
Second level
3.67 m x 3.08 m
Bedroom 3
Second level
3.47 m x 3.08 m
Laundry room
Second level
2.35 m x 1.86 m
Kitchen
Main level
3.38 m x 2.74 m
Dining room
Main level
3.38 m x 2.99 m
Great room
Main level
4.29 m x 4.29 m

Location

Learn more about this property
Listing provided by:
ROYAL LEPAGE TRILAND REALTY
MLS® number:
X12336473
Agent:
Danny Gole
*Indicates required field
Name is required
Email is required
Please enter a valid phone number (e.g., 416-111-1111).

Street Spotlight - For sale