584 Commissioners Road W, London South, Ontario N6K 1B7

Listed for:
$2,250,000
0 beds
0 baths
Listed 212 days ago
584 Commissioners Road W, London South, Ontario N6K 1B7

View all 5 photos

About

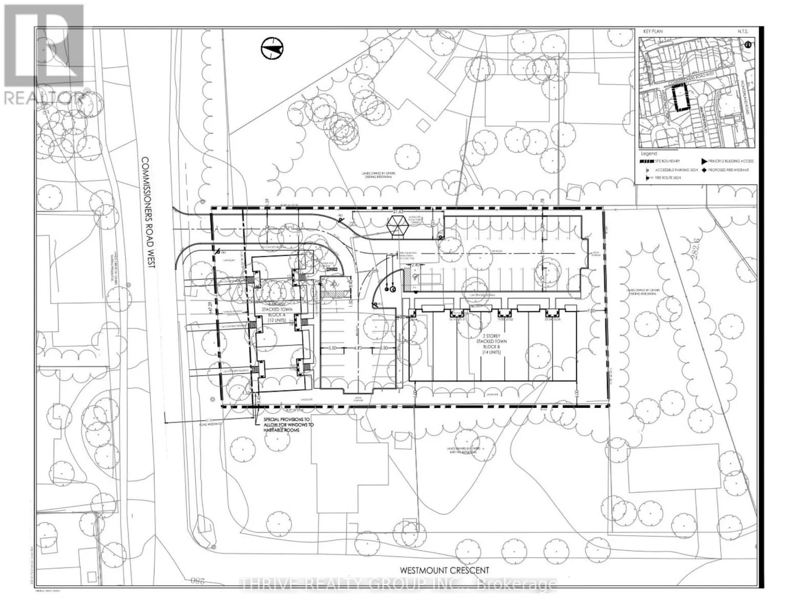
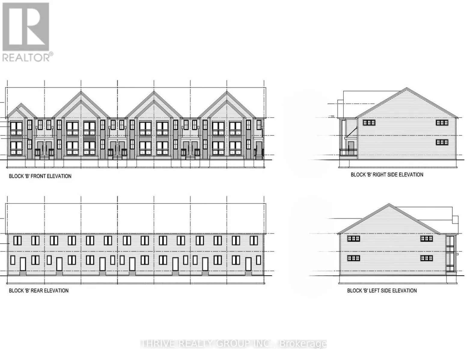
Cross Streets: Westmount Cres. ** Directions: South side of Commissioners Rd. W., near Westmount Cres. Prime Development Opportunity in Sought-After West London! Unlock the potential of this exceptional nearly 1-acre development site, perfectly positioned just steps from the vibrant intersection of Commissioners Rd West and Wonderland Road. This near shovel-ready property comes with an approved plan for a modern stacked townhome community, featuring 26 stylish units across two architecturally designed buildings. Whether you're a seasoned builder or a savvy investor, this is your chance to break ground in one of London's most desirable neighbourhoods. Surrounded by top-tier amenities, shopping, dining, and convenient transit options, this A+ location promises strong market appeal and future growth. Don't miss this rare opportunity to bring a visionary residential project to life in a high-demand area. (id:27476)

Property Highlights

MLS® Number
X12409616
Type
Vacant Land
Community Name
South M
Land Size
155 x 275 FT ; 155.43 x 275.54 x 155.36 x 280.21 ft|1/2 - 1.99 acres

Building

Square Footage
0 - 699 sqft
Amenities
Public Transit, Park, Schools
Fireplace Present
No
Basement Type
Basement Features
Building Heating Type
Heating Fuel
Building Cooling Type

Utilities

Water
Municipal water
Utility Sewer
Sanitary sewer

Location

Learn more about this property
Listing provided by:
THRIVE REALTY GROUP INC.
MLS® number:
X12409616
Agent:
Kevin Miller
*Indicates required field
Name is required
Email is required
Please enter a valid phone number (e.g., 416-111-1111).