4001 Campbell Street N, London South, Ontario N6P 0H5

Listed for:
$1,249,900
4 beds
4 baths
Listed 108 days ago
House for rent: 4001 Campbell Street N, London South, Ontario N6P 0H5

View all 3 photos

Learn more about this property
Listing provided by:
ROYAL LEPAGE TRILAND PREMIER BROKERAGE
MLS® number:
X12425245
Agent:
Richard Cane
*Indicates required field
Name is required
Email is required
Please enter a valid phone number (e.g., 416-111-1111).

About

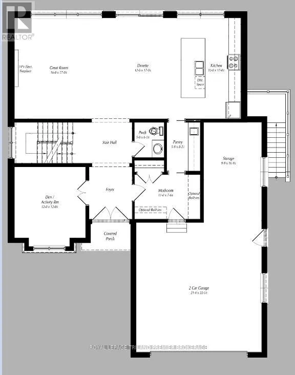
NEAR WINTERBERRY To be built: Hazzard Homes presents The Saddlerock, featuring 2811 sq ft of expertly designed, premium living space in desirable Heathwoods. Enter into the front door into the spacious foyer through to the bright and open concept main floor featuring Hardwood flooring throughout the main level; staircase with black metal spindles; generous mudroom, kitchen with custom cabinetry, quartz/granite countertops, island with breakfast bar, and butlers pantry with cabinetry and granite/quartz counters; expansive bright great room with 7' windows/patio slider across the back; and bright main floor den/office. The upper level boasts 4 generous bedrooms and three full bathrooms, including two bedrooms sharing a "jack and Jill" bathroom, primary suite with 5- piece ensuite (tiled shower with glass enclosure, stand alone tub, quartz countertops, double sinks) and walk in closet; and bonus second primary suite with its own ensuite and walk in closet. Convenient upper level laundry room and 3 car garage. Other standard features include: stainless steel chimney style range hood, pot lights, lighting allowance and more. Separate basement entry shown on plan is an upgrade for an additional cost. (id:27476)

Property Highlights

MLS® Number
X12425245
Type
Single Family
Community Name
South V
Ownership Type
Freehold
Land Size
59.9 x 114.4 FT ; 115.32fx61.14ftx112.98ftx18.33ftx41.47ft
Parking Space Total
5

Building

Building Type
House
Storeys
2.00
Square Footage
2500 - 3000 sqft
Bathrooms Total
4
Bedrooms Above Ground
4
Bedrooms Total
4
Exterior Finish
Brick, Vinyl siding
Fireplace Present
No
Basement Type
Full (Unfinished)
Basement Features
Building Heating Type
Forced air
Heating Fuel
Natural gas
Building Cooling Type
Central air conditioning

Utilities

Water
Municipal water
Utility Sewer
Sanitary sewer

Location

Street Spotlight - For sale