87 - 198 Springbank Drive, London South, Ontario N6J 1G1

Listed for:
$199,900
2 beds
1 baths
Listed 32 days ago
House for rent: 87 - 198 Springbank Drive, London South, Ontario N6J 1G1

View all 24 photos

Learn more about this property
Listing provided by:
RE/MAX CENTRE CITY REALTY INC.
MLS® number:
X12467947
Agent:
Courtney De Block
*Indicates required field
Name is required
Email is required
Please enter a valid phone number (e.g., 416-111-1111).

About

Cross Streets: Springbank Dr. ** Directions: The Cove Mobile Home Park. Welcome to a 50+ Retirement Community at The Cove Mobile Home Park! This well-maintained modular home is situated on a spacious double-wide corner lot, offering privacy and a peaceful retreat-like setting with views of open green space. Inside, the inviting layout features a large living room and dining area, two generous bedrooms, a walk-in storage room, and a bonus den that could easily be converted into a third bedroom. The kitchen provides ample cupboard and counter space. Recent upgrades include a furnace and central air, ensuring year-round comfort. With the feel of a country retreat in the city, this home is the perfect balance of convenience and tranquility. Park fee includes property taxes and water. (id:27476)

Property Highlights

MLS® Number
X12467947
Type
Single Family
Community Name
South D
Ownership Type
Leasehold/Leased Land
Land Size
55 x 125 FT
Parking Space Total
3

Building

Building Type
House
Storeys
1.00
Square Footage
700 - 1100 sqft
Bathrooms Total
1
Bedrooms Above Ground
2
Bedrooms Total
2
Amenities
Public Transit
Exterior Finish
Vinyl siding
Fireplace Present
No
Basement Type
None
Basement Features
Building Heating Type
Forced air
Heating Fuel
Natural gas
Building Cooling Type
Central air conditioning

Utilities

Water
Municipal water
Utility Sewer
Sanitary sewer

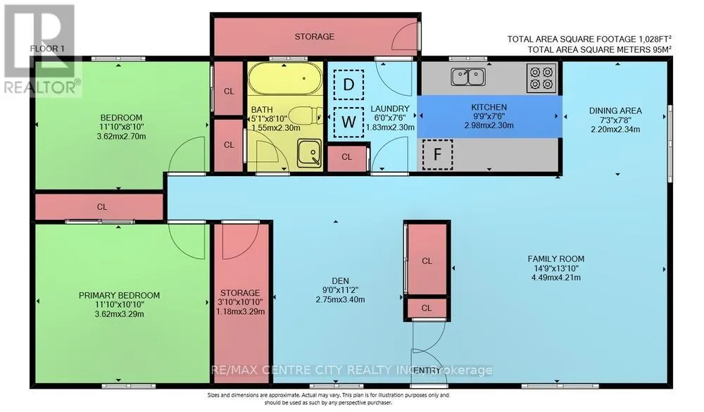
Room Layout

Living room
Main level
4.49 m x 4.21 m
Dining room
Main level
2.2 m x 2.34 m
Kitchen
Main level
2.98 m x 2.3 m
Primary Bedroom
Main level
3.62 m x 3.29 m
Bedroom
Main level
3.62 m x 2.7 m
Other
Main level
3.29 m x 1.18 m
Den
Main level
2.75 m x 3.4 m
Other
Main level
3.29 m x 2.3 m
Bathroom
Main level
1.55 m x 2.3 m

Location