4274 Liberty Crossing, London South, Ontario N6P 1J9

Listed for:
$850,000
3 beds
3 baths
Listed 18 days ago
House for rent: 4274 Liberty Crossing, London South, Ontario N6P 1J9

View all 6 photos

Learn more about this property
Listing provided by:
NU-VISTA PREMIERE REALTY INC.
MLS® number:
X12492178
Agent:
Omar Hassouneh
*Indicates required field
Name is required
Email is required
Please enter a valid phone number (e.g., 416-111-1111).

About

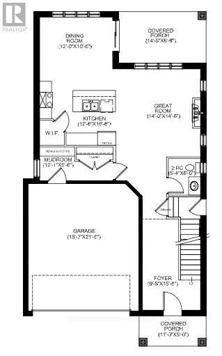
Cross Streets: Hamlyn/Wonderland. ** Directions: Drive down Hamlyn St. Turn onto Liberty crossing. Welcome to Liberty Crossing - a limited-release community perfectly situated just minutes from Highways 401 and 402. Skyline Homes proudly presents this thoughtfully designed 1,800 sq. ft. model, ideal for small families. Featuring 3 spacious bedrooms, 2.5 bathrooms, and a double-car garage, this home combines functionality with the exceptional quality and craftsmanship that Skyline Homes is known for. First-time home buyers may qualify for exclusive incentives, making a new-build home an ideal choice for maximizing affordability and long-term value. More lots, models and price points available. Please contact listing agents for more information! Model home at 4282 Liberty crossing! (id:27476)

Property Highlights

MLS® Number
X12492178
Type
Single Family
Community Name
South V
Ownership Type
Freehold
Land Size
38 x 111 FT
Parking Space Total
4

Building

Building Type
House
Storeys
2.00
Square Footage
1500 - 2000 sqft
Bathrooms Total
3
Bedrooms Above Ground
3
Bedrooms Total
3
Exterior Finish
Brick
Fireplace Present
Yes
Basement Type
N/A (Unfinished)
Basement Features
Building Heating Type
Forced air, Not known
Heating Fuel
Electric, Natural gas
Building Cooling Type
Central air conditioning

Utilities

Water
Municipal water
Utility Sewer
Sanitary sewer

Location

Street Spotlight - For sale