Lot 38 Fallingbrook Crescent, London South, Ontario N6P 1H5

Listed for:
$1,490,950
4 beds
4 baths
Listed 58 days ago
House for rent: Lot 38 Fallingbrook Crescent, London South, Ontario N6P 1H5

View all 24 photos

Learn more about this property
Listing provided by:
PRIME REAL ESTATE BROKERAGE
MLS® number:
X12505410
Agent:
Justin Konikow
*Indicates required field
Name is required
Email is required
Please enter a valid phone number (e.g., 416-111-1111).

About

North on Colonel Talbot Rd, right on Heathwoods ave, right on Fallingbrook rd in London You're not just buying a home - you're designing the one you'll love coming home to every day. In Heath Woods, Lambeth (London South, ON), this to-be-built 4-bed, 3.5-bath residence by Halcyon Homes begins with an inspired model and then becomes unmistakably yours, from the flow of the main floor to the mood of the lighting and the finishes underfoot. Wake to golden light in a quiet primary retreat, brew coffee in a chef-ready kitchen that opens to a sun-washed great room, and let evenings spill onto an oversized backyard where 4232 Fallingbrook Rd's extra-deep 50' x 152' lot backs onto mature trees for rare privacy. At Halcyon, you're never boxed into a blueprint or upsold into confusion - their transparent design-build process puts your ideas first and delivers quality, clarity, and calm at every step. Stroll to Lambeth Village cafés and trails, zip to Hwy 401/402 when needed, and enjoy the suburban ease that has made London South one of the region's most desirable places to live. Pricing reflects the Arvada model in the Essential collection, with the Myra model shown featuring Lifestyle selections. Only a few opportunities remain in Heath Woods - explore plans, finishes, and timelines, and secure your custom new construction in Lambeth, Ontario, while it's still available. (id:27476)

Property Highlights

MLS® Number
X12505410
Type
Single Family
Community Name
South V
Ownership Type
Freehold
Land Size
50 x 152 FT
Parking Space Total
4

Building

Building Type
House
Storeys
2.00
Square Footage
2500 - 3000 sqft
Bathrooms Total
4
Bedrooms Above Ground
4
Bedrooms Total
4
Amenities
Fireplace(s) Schools
Exterior Finish
Brick, Aluminum siding
Fireplace Present
Yes
Basement Type
N/A (Unfinished)
Basement Features
Building Heating Type
Forced air
Heating Fuel
Electric
Building Cooling Type
Central air conditioning, Air exchanger

Utilities

Water
Municipal water
Utility Sewer
Sanitary sewer

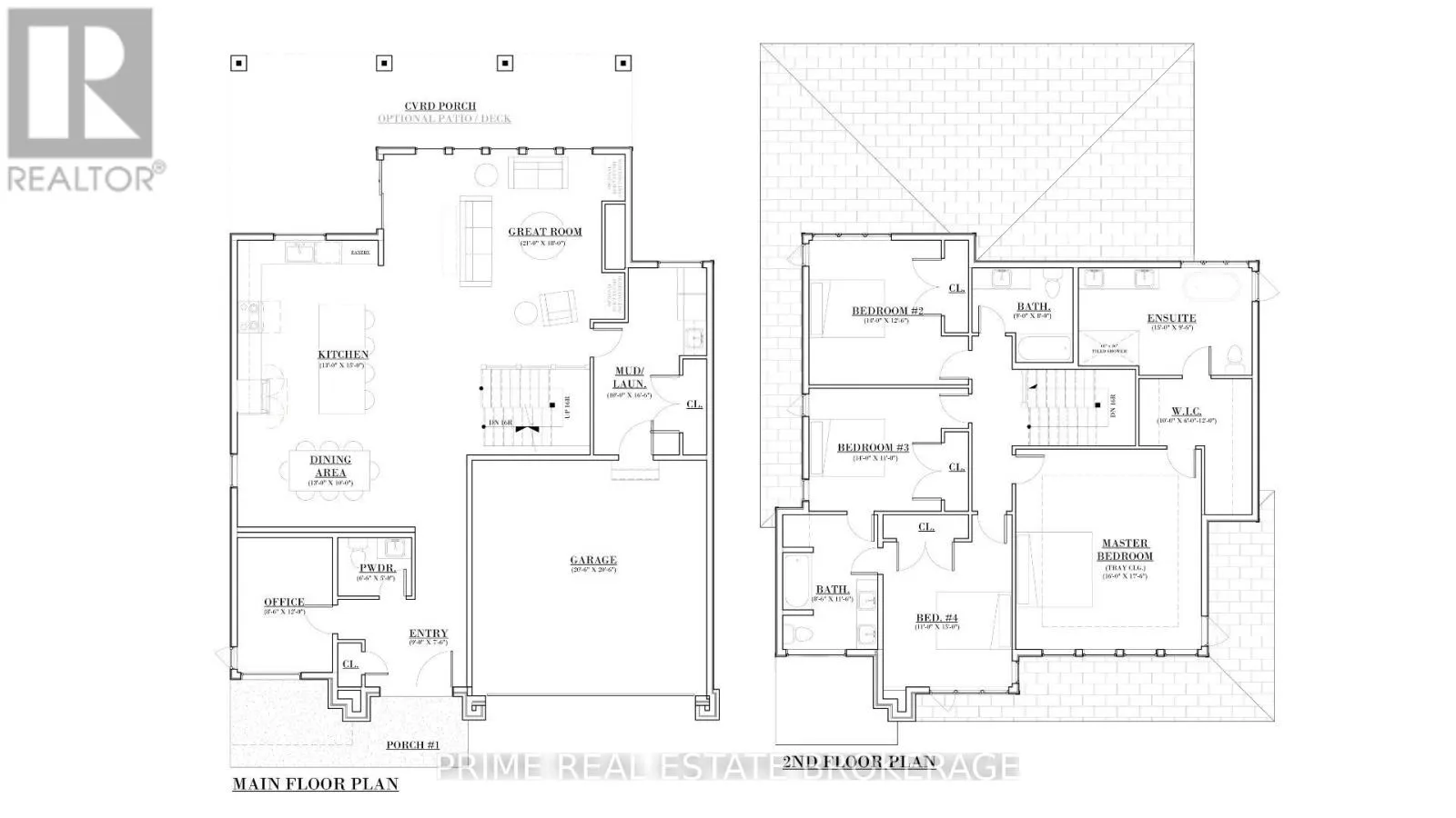
Room Layout

Bathroom
Second level
4.57 m x 2.9 m
Bathroom
Second level
3.05 m x 1.83 m
Bathroom
Second level
2.74 m x 2.44 m
Primary Bedroom
Second level
4.88 m x 5.33 m
Bedroom 2
Second level
4.27 m x 3.81 m
Bedroom 3
Second level
2.74 m x 2.44 m
Bedroom 4
Second level
4.27 m x 3.35 m
Office
Main level
2.59 m x 3.66 m
Dining room
Main level
3.96 m x 4.57 m
Kitchen
Main level
3.96 m x 3.05 m
Great room
Main level
3.35 m x 4.57 m
Laundry room
Main level
1.98 m x 1.52 m

Location

Street Spotlight - For sale