1201 - 744 Wonderland Road S, London South, Ontario N6K 4K3

Listed for:
$384,900
2 beds
2 baths
Listed 7 days ago
Apartment for rent: 1201 - 744 Wonderland Road S, London South, Ontario N6K 4K3

View all 36 photos

Learn more about this property
Listing provided by:
SUTTON GROUP PREFERRED REALTY INC.
MLS® number:
X12508404
Agent:
Brian Maceachern
*Indicates required field
Name is required
Email is required
Please enter a valid phone number (e.g., 416-111-1111).

About

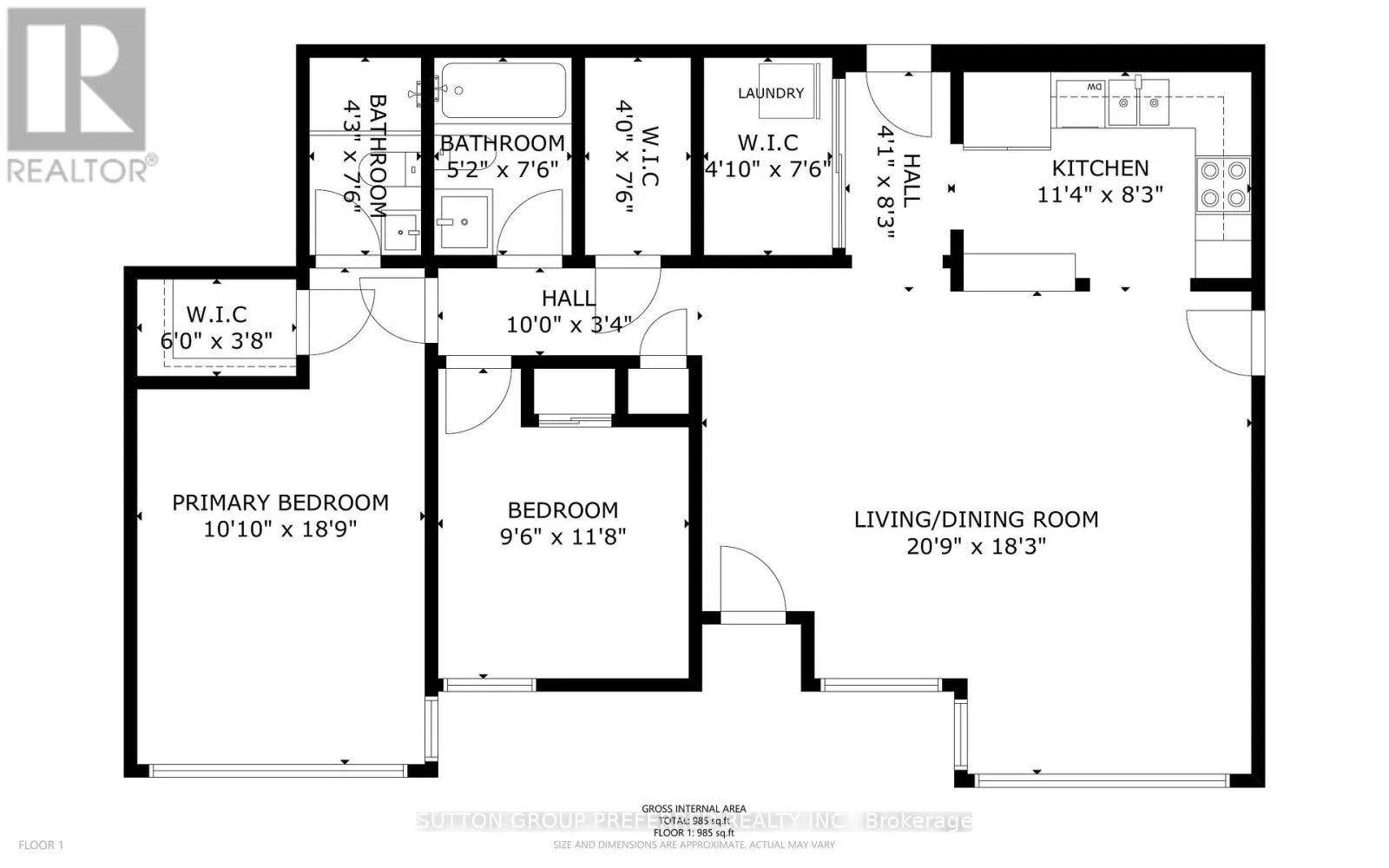
Cross Streets: Village Green Ave. ** Directions: Commissioners, South on Wonderland at Village Green, on East side. Penthouse Living in the Heart of Westmount! Welcome to 1201-744 Wonderland Rd, a stunning 2 bedroom, 2 bathroom penthouse condo in the sought after Westford building. This top floor suite offers an open concept design with beautiful westerly views, the perfect spot to enjoy London's sunsets from your private space high above the city. Inside, you'll find fresh paint, new carpet, and a bright, functional layout that's move in ready. The spacious primary bedroom features a large walk-in closet and a private ensuite, while the second bedroom provides flexibility for guests or a home office. Enjoy the comfort of in unit laundry, gas heating, and central air conditioning, a rare find in condo living.The Westford offers an impressive array of amenities including a rooftop patio with BBQ, a party room with pool table, lounge, and kitchen, and a fitness center, with hot tub, and sauna. Your exclusive covered parking space is in a prime location, there is also ample visitor parking available for guests. Situated in desirable Westmount, you're just minutes to shopping, restaurants, parks, and quick access to Highway 401. With low condo fees that include water and a pet free environment, this is the perfect blend of comfort, convenience, and carefree living. Don't miss this opportunity to own a premium unit in one of London's most respected buildings - the Westford! (id:27476)

Property Highlights

MLS® Number
X12508404
Type
Single Family
Community Name
South N
Maintenance Fee
398.38
Ownership Type
Condominium/Strata
Parking Space Total
1

Building

Building Type
Apartment
Square Footage
1000 - 1199 sqft
Bathrooms Total
2
Bedrooms Above Ground
2
Bedrooms Total
2
Amenities
Exercise Centre, Recreation Centre, Visitor Parking, Separate Heating Controls
Exterior Finish
Concrete
Fireplace Present
No
Basement Type
None
Basement Features
Building Heating Type
Forced air
Heating Fuel
Natural gas
Building Cooling Type
Central air conditioning

Location

Street Spotlight - For sale