422 Old Wonderland Road, London South, Ontario N6K 3R2

Listed for:
$639,000
3 beds
3 baths
Listed 142 days ago
422 Old Wonderland Road, London South, Ontario N6K 3R2

View all 36 photos

About

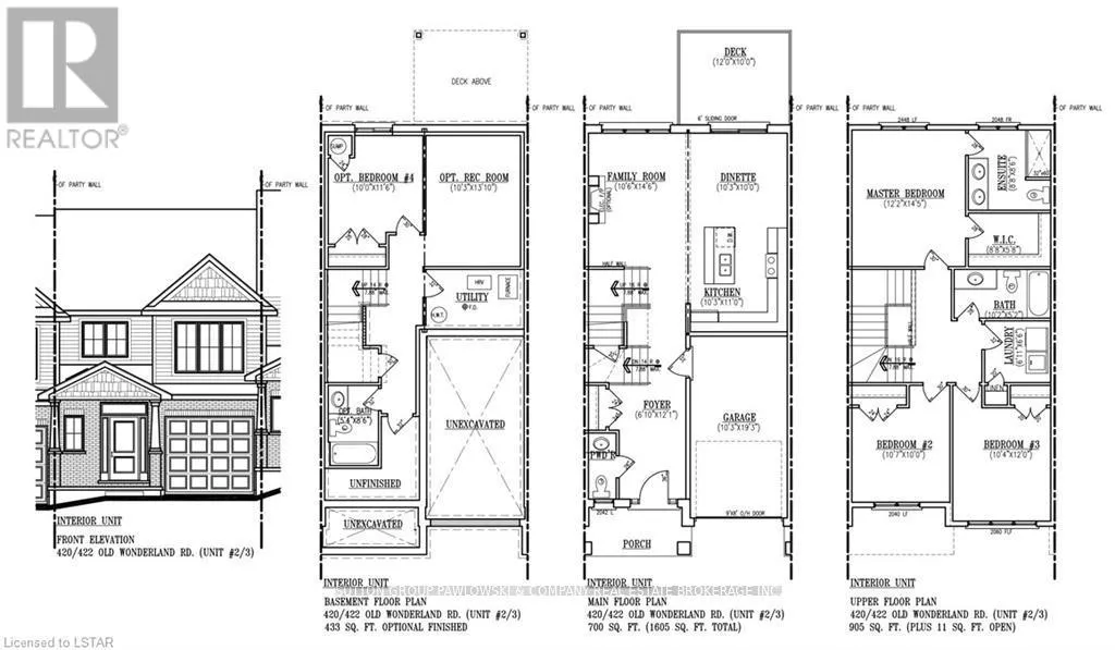
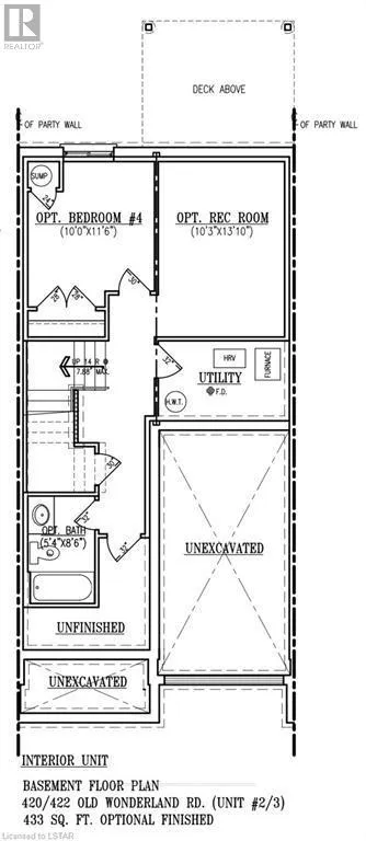
Cross Streets: Teeple Terrace. ** Directions: Wonderland Rd, east on Teeple Terrace, north on Old Wonderland Rd. ACT NOW!! NEW Government HST Rebate + EXTRA $10,000 BUILDER BONUS FOR QUALIFYING BUYERS UNIT JUNE 1, 2026 ON FIRM DEAL. Exceptional limited-time savings on a brand-new home in one of Southwest London's most desirable communities. IMMEDIATE POSSESSION AVAILABLE. Experience modern luxury and low-maintenance living in this quality-built vacant land condo tucked in a quiet cul-de-sac in Southwest London. Offering approx. 1585 sq ft, this thoughtfully designed interior unit blends comfort, style, and everyday convenience.The main floor features engineered hardwood, 9 ft ceilings, and an open concept layout ideal for both relaxing and entertaining. The modern vintage kitchen showcases custom cabinetry, quartz countertops, a tile backsplash, and a large island, with all appliances included. A bright dinette with patio doors leads to the back deck, while the spacious family room offers generous natural light.Upstairs, three well-sized bedrooms include a primary suite with a large walk-in closet and a sleek ensuite with a porcelain and ceramic tile shower and quartz vanity. A convenient second-floor laundry room completes this level. Step outside to a 10' x 12' deck with a privacy screen-an inviting retreat for morning coffee or evening downtime. With its thoughtful finishes, open layout, and peaceful setting, this home delivers a lifestyle of ease and elegance just minutes from shopping, parks, schools, and city amenities. A rare chance to move into a brand new home without the wait. (id:27476)

Property Highlights

MLS® Number
X12575278
Type
Vacant Land
Community Name
South N
Maintenance Fee
175.00
Ownership Type
Condominium/Strata
Land Size
.
Parking Space Total
2

Building

Storeys
2.00
Square Footage
1400 - 1599 sqft
Bathrooms Total
3
Bedrooms Above Ground
3
Bedrooms Total
3
Amenities
Visitor Parking Park, Place of Worship, Public Transit
Exterior Finish
Brick, Vinyl siding
Fireplace Present
No
Basement Type
Full (Unfinished)
Basement Features
Building Heating Type
Forced air
Heating Fuel
Natural gas
Building Cooling Type
Central air conditioning

Location

Learn more about this property
Listing provided by:
SUTTON GROUP PAWLOWSKI & COMPANY REAL ESTATE BROKERAGE INC.
MLS® number:
X12575278
Agent:
Linda Wilson
*Indicates required field
Name is required
Email is required
Please enter a valid phone number (e.g., 416-111-1111).