6768 Heathwoods Avenue, London South, Ontario N6P 0M2

Listed for:
$999,900
4 beds
3 baths
Listed 6 days ago
House for rent: 6768 Heathwoods Avenue, London South, Ontario N6P 0M2

View all 9 photos

About

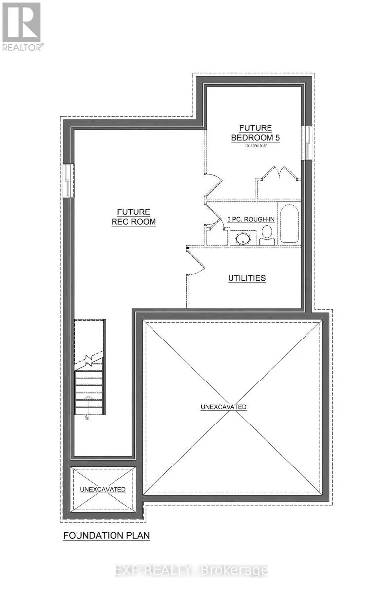
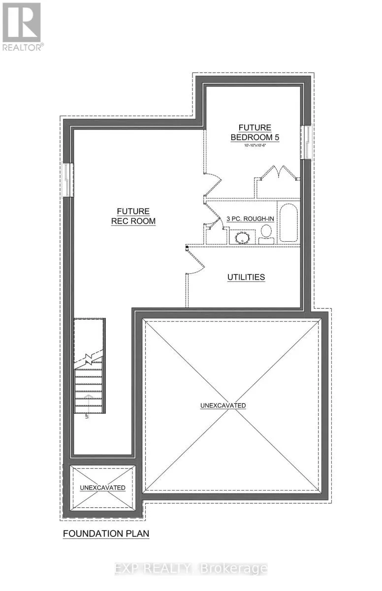
Colonel Talbot Rd/Heathwoods Ave Built by Johnstone Homes, a trusted local builder serving London and area for over 35 years, this to-be-built 4-bedroom, 3-bath detached residence offers approximately 1,979 sq. ft. of finished space on a 48-ft lot with mature trees in southwest London's desirable Heathwoods community. Blending Lambeth's small-town character with commuter convenience, residents enjoy easy access to everyday amenities along Colonel Talbot Road, community programs at the Lambeth Community Centre, and swift connections to Highways 401 and 402. Inside, thoughtful design and quality finishes define the home's layout. Nine-foot ceilings, engineered hardwood flooring in main living areas, and generous allowances for cabinetry, counters, and flooring create a modern and adaptable interior. A vaulted ceiling over the dining area enhances the open-concept feel-ideal for family gatherings and entertaining. Upstairs, four spacious bedrooms provide comfort and functionality. The primary suite features a double sink vanity and glass-tiled shower, while a full main bath serves the secondary bedrooms. The unfinished basement, complete with a three-piece rough-in, offers potential for a future recreation room, gym, or guest suite. Curb appeal is elevated by a brick facade, paved-stone walkway and driveway, fully sodded yard, and an attached double garage with inside entry. Buyers will also appreciate the inclusion of ten hours with a professional design consultant to personalize their finishes. Flexible deposit options and eligibility for the announced First-Time Home Buyer credit further increase this home's accessibility and value. Secure pre-construction pricing today and make Heathwoods your next address. (id:27476)

Property Highlights

MLS® Number
X12697668
Type
Single Family
Community Name
South V
Ownership Type
Freehold
Land Size
48.3 x 77.6 FT|under 1/2 acre
Parking Space Total
4

Building

Building Type
House
Storeys
2.00
Square Footage
1500 - 2000 sqft
Bathrooms Total
3
Bedrooms Above Ground
4
Bedrooms Total
4
Exterior Finish
Brick, Vinyl siding
Fireplace Present
No
Basement Type
Full (Unfinished)
Basement Features
Building Heating Type
Forced air
Heating Fuel
Natural gas
Building Cooling Type
Central air conditioning

Utilities

Water
Municipal water
Utility Sewer
Sanitary sewer

Room Layout

Primary Bedroom
Second level
5.79 m x 3.94 m
Bedroom
Second level
4.09 m x 3.35 m
Bedroom
Second level
3.43 m x 2.79 m
Bedroom
Second level
2.74 m x 3.2 m
Kitchen
Main level
3.61 m x 3.68 m
Dining room
Main level
3.68 m x 2.79 m
Great room
Main level
6.65 m x 4.65 m

Location

Learn more about this property
Listing provided by:
EXP REALTY
MLS® number:
X12697668
Agent:
Richard Carvell
*Indicates required field
Name is required
Email is required
Please enter a valid phone number (e.g., 416-111-1111).

Street Spotlight - For sale