4334 Lismer Lane, London South, Ontario N6L 0E2

Listed for:
$779,000
3 beds
3 baths
Listed 30 days ago
House for rent: 4334 Lismer Lane, London South, Ontario N6L 0E2

View all 43 photos

About

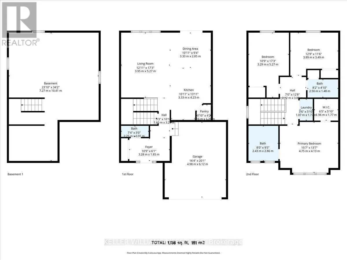
Cross Streets: GEORGEHERIOT LN. ** Directions: From Wharncliffe Rd S turn onto Lengendary Dr. Turn right onto Paulpeel Ave. Then turn left onto Lismer Lane. House is on the right. Welcome to this brand new, never-lived-in home by Banman Developments, ideally located in the desirable Copperfield neighbourhood of southwest London. Situated on an oversized corner lot, this thoughtfully designed new construction offers 1,736 sq ft of stylish and functional living space with 3 bedrooms and 2.5 bathrooms. High-quality finishes are showcased throughout, reflecting the craftsmanship and attention to detail Banman is known for.The main level features an open-concept layout perfect for everyday living and entertaining, while the lookout basement provides excellent natural light and future potential. A poured concrete driveway adds both durability and curb appeal. The home will be completed with a finished deck, offering the perfect place to relax and enjoy the surrounding nature-deer sightings included.Upstairs, the spacious primary suite boasts a walk-in closet and a luxurious oversized ensuite with dual vanity. Two additional bedrooms, a full bath, and convenient second-floor laundry complete the upper level. Ideally located close to shopping, amenities, and quick highway access, this home offers the perfect blend of comfort, quality, and convenience in one of London's most sought-after communities. (id:27476)

Property Highlights

MLS® Number
X12702978
Type
Single Family
Community Name
South W
Ownership Type
Freehold
Land Size
48.6 x 113.2 FT
Parking Space Total
3

Building

Building Type
House
Storeys
2.00
Square Footage
1500 - 2000 sqft
Bathrooms Total
3
Bedrooms Above Ground
3
Bedrooms Total
3
Exterior Finish
Brick, Vinyl siding
Fireplace Present
No
Basement Type
Full
Basement Features
Building Heating Type
Forced air
Heating Fuel
Natural gas
Building Cooling Type
Central air conditioning

Utilities

Water
Municipal water
Utility Sewer
Sanitary sewer

Room Layout

Primary Bedroom
Second level
4.75 m x 4.13 m
Bedroom
Second level
3.89 m x 3.49 m
Bedroom
Second level
3.29 m x 5.27 m
Laundry room
Second level
1.07 m x 1.77 m
Other
Basement
7.27 m x 10.41 m
Foyer
Main level
3.28 m x 1.85 m
Kitchen
Main level
3.33 m x 4.23 m
Living room
Main level
3.95 m x 5.27 m
Dining room
Main level
3.33 m x 2.85 m

Location

Learn more about this property
Listing provided by:
KELLER WILLIAMS LIFESTYLES
MLS® number:
X12702978
Agent:
Colin Van Moorsel
*Indicates required field
Name is required
Email is required
Please enter a valid phone number (e.g., 416-111-1111).