4386 Green Bend Road, London South, Ontario N6P 0K9

Listed for:
$1,089,000
4 beds
3 baths
Listed 68 days ago
House for rent: 4386 Green Bend Road, London South, Ontario N6P 0K9

View all 4 photos

About

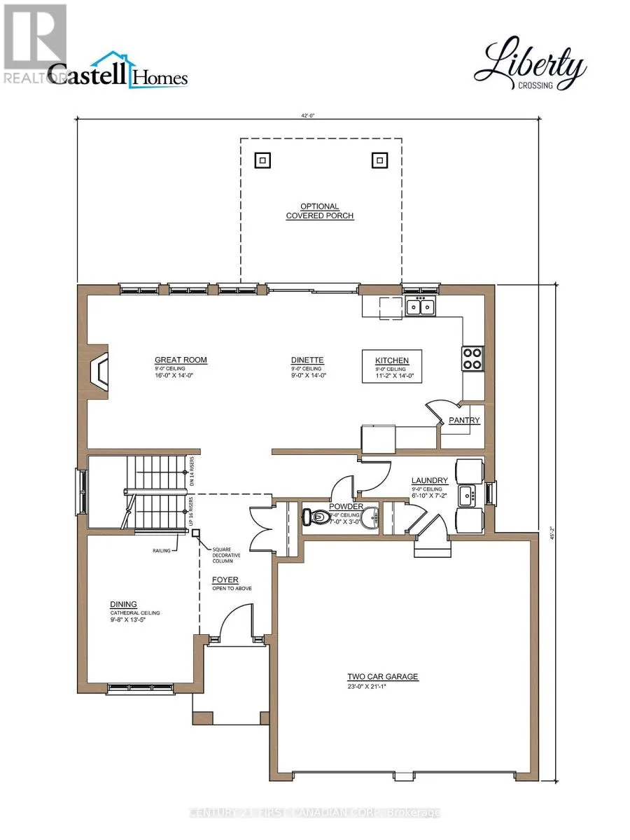
Cross Streets: Hamlyn St. ** Directions: From Wonderland Road South, turn West on Hamlyn St then South on Green Bend Road. Welcome to your dream home in the highly sought-after Liberty Crossing community in London. This To-be-built 2 story home by Castell Homes, The Westpoint, is a thoughtfully designed to include 4 bedrooms, 2.5 bathrooms and is situated on a premium lot, backing on to green space. Known for quality craftsmanship and timeless design, Castell Homes delivers a functional layout ideal for modern family living. The main floor features a bright open-concept kitchen, dining, and great room, perfect for everyday living and entertaining, along with a convenient formal dining room, which could also be used as den or office. A 2pc powder room and a laundry/mud room that gives inside access from the double-car garage are also conveniently located on the main floor. Upstairs, the spacious primary suite includes a walk-in closet and private ensuite, complemented by three additional well sized bedrooms and a full 5pc main bath. Located in a family-friendly neighbourhood, Liberty Crossing offers a quiet suburban setting while remaining close to everyday amenities. Enjoy easy access to shopping, schools, parks, and recreation in Lambeth, with quick connections to Highway 402 and Highway 401, making commuting throughout London and Southwestern Ontario seamless. (id:27476)

Property Highlights

MLS® Number
X12724978
Type
Single Family
Community Name
South V
Ownership Type
Freehold
Land Size
50.7 x 115.1 FT ; 115.13 x 50.66 x 115.13 x 50.66 ft
Parking Space Total
4

Building

Building Type
House
Storeys
2.00
Square Footage
2000 - 2500 sqft
Bathrooms Total
3
Bedrooms Above Ground
4
Bedrooms Total
4
Amenities
Fireplace(s)
Exterior Finish
Brick, Stone
Fireplace Present
Yes
Basement Type
Full
Basement Features
Building Heating Type
Forced air
Heating Fuel
Natural gas
Building Cooling Type
Central air conditioning, Air exchanger

Utilities

Water
Municipal water
Utility Sewer
Sanitary sewer

Room Layout

Primary Bedroom
Second level
4.29 m x 4.62 m
Bedroom
Second level
3.83 m x 3.91 m
Bedroom
Second level
3.38 m x 4.06 m
Bedroom
Second level
2.97 m x 4.55 m
Dining room
Main level
2.95 m x 4.1 m
Kitchen
Main level
3.4 m x 4.27 m
Dining room
Main level
2.74 m x 4.27 m
Great room
Main level
4.88 m x 4.27 m
Mud room
Main level
2.08 m x 2.18 m

Location

Learn more about this property
Listing provided by:
CENTURY 21 FIRST CANADIAN CORP
MLS® number:
X12724978
Agent:
Sara Da Silva
*Indicates required field
Name is required
Email is required
Please enter a valid phone number (e.g., 416-111-1111).

Street Spotlight - For sale