310 - 735 Deveron Crescent, London South, Ontario N5Z 4X8

Listed for:
$374,900
3 beds
2 baths
Listed 6 days ago
Apartment for rent: 310 - 735 Deveron Crescent, London South, Ontario N5Z 4X8

View all 31 photos

About

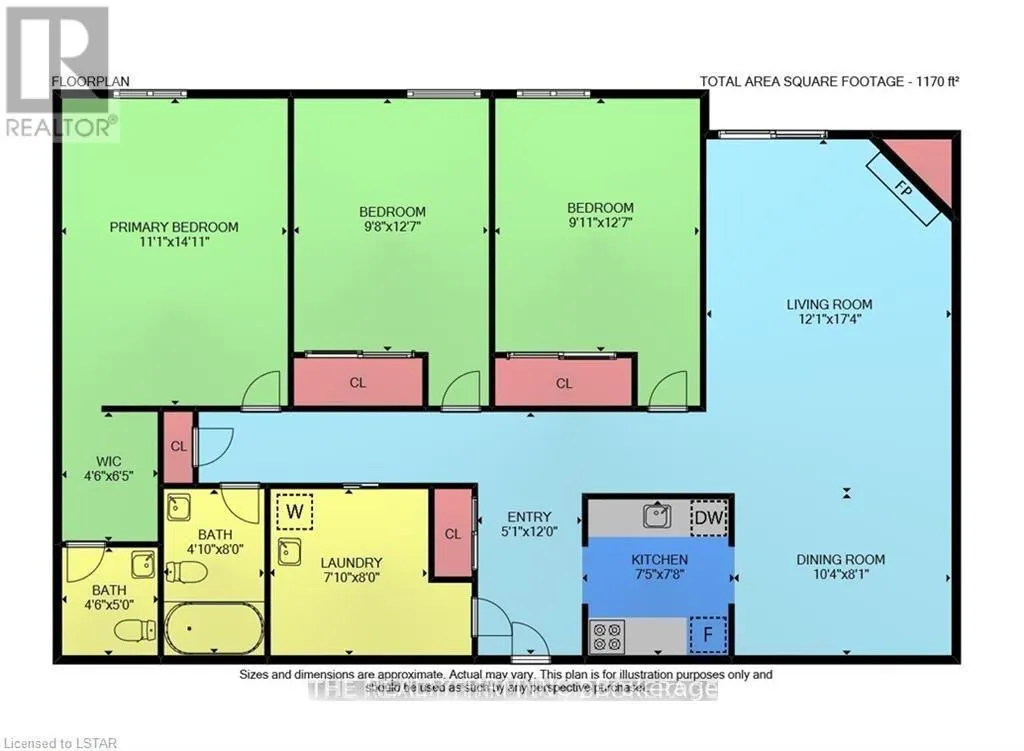
Cross Streets: Deveron and Commissioners. ** Directions: Heading south on Commissioners from Pond Mills road then turn right onto Deveron. Welcome to this beautifully maintained 3-bedroom, 1.5-bathroom end-unit condo perched on the top floor-offering privacy, natural light, and stylish upgrades throughout.Step inside to a spacious foyer complete with a large hall closet, perfect for everyday organization. The upgraded white kitchen features a modern tile backsplash, under-cabinet lighting, and ample cabinetry, seamlessly flowing into the open-concept dining and living area-ideal for entertaining or relaxing at home.The living room showcases a stunning gas fireplace feature wall, pot lights, and durable laminate flooring, with direct access to your east-facing balcony-the perfect spot to enjoy your morning coffee in the sun.All three bedrooms are generously sized and equipped with closet organizers for maximum storage. The bathrooms have been tastefully updated with ceramic tile finishes, while the in-suite laundry and dedicated storage room add everyday convenience.Additional features include ductless central air (2020) and water included in the condo fees.Located in the highly desirable Pond Mills neighbourhood, residents enjoy direct access to the outdoor pool and close proximity to the highway, hospital, shopping, public transit, and schools-making this an ideal location for commuters and families alike.Please note: Photos are from a previous listing; the property shows in the same condition. (id:27476)

Property Highlights

MLS® Number
X12770582
Type
Single Family
Community Name
South T
Maintenance Fee
616.00
Ownership Type
Condominium/Strata
Parking Space Total
1

Building

Building Type
Apartment
Square Footage
1000 - 1199 sqft
Bathrooms Total
2
Bedrooms Above Ground
3
Bedrooms Total
3
Amenities
Visitor Parking, Fireplace(s) Place of Worship, Schools, Public Transit
Exterior Finish
Brick
Fireplace Present
Yes
Basement Type
None
Basement Features
Building Heating Type
Baseboard heaters
Heating Fuel
Electric
Building Cooling Type
Wall unit

Location

Learn more about this property
Listing provided by:
THE REALTY FIRM INC.
MLS® number:
X12770582
Agent:
Sandra Tavares
*Indicates required field
Name is required
Email is required
Please enter a valid phone number (e.g., 416-111-1111).

Street Spotlight - For sale