3108 Gillespie Trail, London South, Ontario N6P 0K6

Listed for:
$835,000
4 beds
3 baths
Listed 11 days ago
House for rent: 3108 Gillespie Trail, London South, Ontario N6P 0K6

View all 8 photos

About

Cross Streets: pack road & regiment. ** Directions: OFF PACK ROAD ONTO REGIMENT ROAD. The Hamilton by Birani Design & Build is a beautifully crafted two-storey home offering 4 spacious bedrooms, 2.5 bathrooms, and a thoughtfully designed layout tailored for modem family living. The main floor features both a dedicated living room and a separate family room, providing the perfect balance of elegant entertaining space and everyday comfort. Upstairs, you'Il find four generously sized bedrooms, two full bathrooms, and the convenience of second floor laundry-ideal for growing families or those who simply appreciate functional design. Built With exceptional craftsmanship and attention to detail, this home is located in Talbot Village - Phase 7, one of London' s most sought-after family friendly communities. Residents enjoy proximity to a brand-new public school opening in 2025, walking distance to Ecole élémentaire La Pommeraie, and access to parks with basketball courts, sorer fields, and scenic pond-side trails. Talbot Village Shopping Plaza is just minutes away, offering No Frills, Dollarama, restaurants, banks, GoodLife Fitness, medical clinics, and more, with an exciting new commercial plaza on the way featuring a veterinarian, dental clinic, Starbucks, and additional conveniences. The brand-new YMCA, only a short walk away, brings state-of-the-an health and wellness amenities to the nelghbourhood. With quick access to Highways 401 and 402, easy routes to St. Thomas and the beaches of Port Stanley, and new bike lanes along Colonel Talbot Road connecting to Lambeth's charming village core, Talbot Village offers the perfect blend of modem convenience, natural beauty, and vibrant community living. Price includes proposed 2026 HST rebates. Final rebate amount is subject to the passing of Provincial and Federal legislation and purchaser eligibility as per government guidelines, including primary residence or qualifying rental. (id:27476)

Property Highlights

MLS® Number
X12774928
Type
Single Family
Community Name
South V
Ownership Type
Freehold
Land Size
41.5 x 109.4 FT|under 1/2 acre
Parking Space Total
4

Building

Building Type
House
Storeys
2.00
Square Footage
1500 - 2000 sqft
Bathrooms Total
3
Bedrooms Above Ground
4
Bedrooms Total
4
Amenities
Fireplace(s) Golf Nearby, Place of Worship, Public Transit, Schools
Exterior Finish
Brick, Vinyl siding
Fireplace Present
No
Basement Type
N/A (Unfinished)
Basement Features
Building Heating Type
Forced air
Heating Fuel
Natural gas
Building Cooling Type
Central air conditioning

Utilities

Water
Municipal water
Utility Sewer
Sanitary sewer

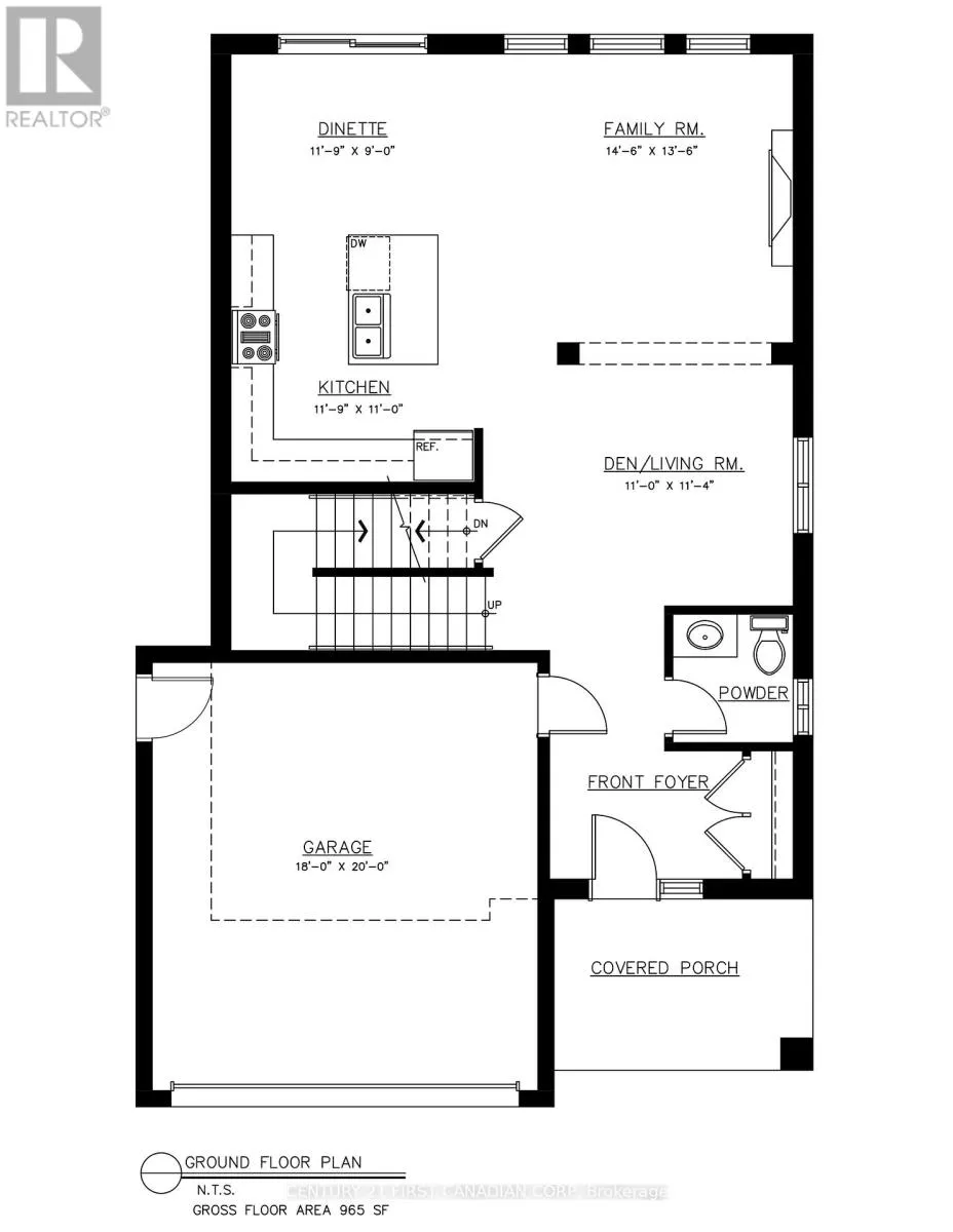
Room Layout

Laundry room
Second level
3.76 m x 1.88 m
Primary Bedroom
Second level
4.57 m x 3.66 m
Bedroom 2
Second level
3.2 m x 2.9 m
Bedroom 3
Second level
3.2 m x 2.9 m
Bedroom 4
Second level
3.4 m x 3.5 m
Bathroom
Second level
3.5 m x 2.44 m
Bathroom
Second level
3.76 m x 1.52 m
Den
Main level
3.35 m x 3.45 m
Family room
Main level
4.42 m x 4.11 m
Dining room
Main level
3.58 m x 2.74 m
Kitchen
Main level
3.58 m x 3.35 m

Location

Learn more about this property
Listing provided by:
CENTURY 21 FIRST CANADIAN CORP
MLS® number:
X12774928
Agent:
Amin Chehadi
*Indicates required field
Name is required
Email is required
Please enter a valid phone number (e.g., 416-111-1111).

Street Spotlight - For sale