6901 Heathwoods Avenue, London South, Ontario N6P 1H3

Listed for:
$594,800
3 beds
3 baths
Listed 80 days ago
Row / Townhouse for rent: 6901 Heathwoods Avenue, London South, Ontario N6P 1H3

View all 30 photos

About

COLONEL TALBOT PRICE INCLUDES HST * INTERIOR WALK-OUT LOT! * To-be-built. 4-bedroom floor plans and pricing also available. LIMITED-TIME PROMOTIONS: Five (5) builder's standard appliances included, PLUS $5,000 in Design Dollars, PLUS only a 5% deposit, PLUS walk-out lots at no additional charge. All prices, promotions, and incentives are subject to change without notice. Experience the freedom of owning a luxury freehold townhome with ZERO CONDO FEES, offering the perfect blend of modern elegance, convenience, and affordability. Built by renowned Ridgeview Homes, this 3-bedroom, 2.5-bathroom townhome offers 1,525 sq. ft. of thoughtfully designed living space, with CUSTOMIZABLE FINISHES available to suit your style. Step inside to an open-concept layout featuring a spacious kitchen and a bright, inviting living area that flows seamlessly to your private outdoor space - ideal for relaxing or entertaining. Located in the sought-after Lambeth neighbourhood, you're just minutes from the 401, with easy access to shopping, dining, schools, and recreational amenities. * (id:27476)

Property Highlights

MLS® Number
X12818142
Type
Single Family
Community Name
South V
Ownership Type
Freehold
Land Size
22 x 125 FT|under 1/2 acre
Parking Space Total
2

Building

Building Type
Row / Townhouse
Storeys
2.00
Square Footage
1500 - 2000 sqft
Bathrooms Total
3
Bedrooms Above Ground
3
Bedrooms Total
3
Amenities
Schools, Park, Hospital
Exterior Finish
Brick, Stucco
Fireplace Present
No
Basement Type
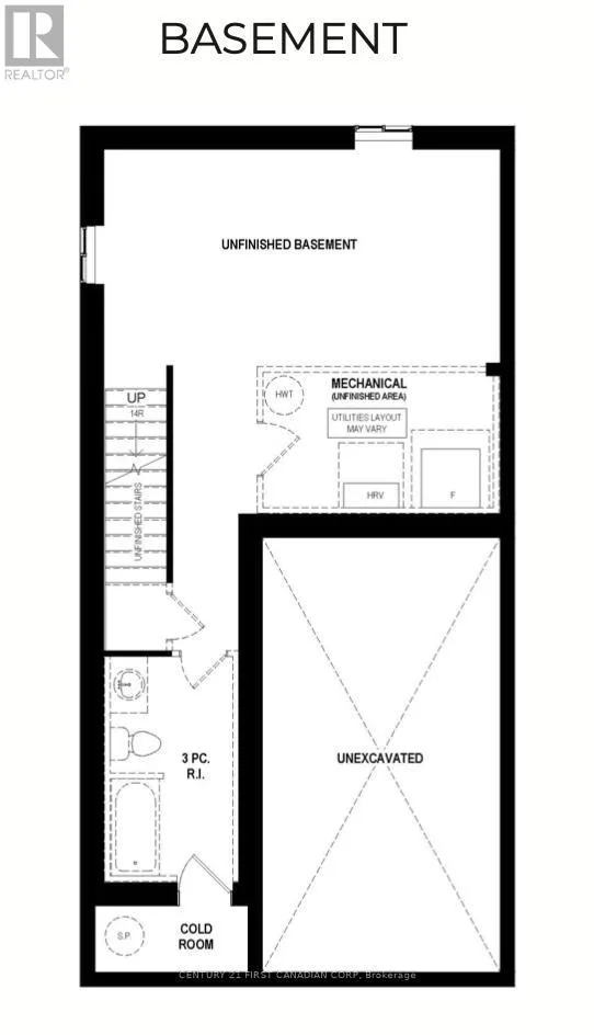
Full, N/A (Unfinished), N/A
Basement Features
Walk out
Building Heating Type
Forced air
Heating Fuel
Natural gas
Building Cooling Type
Central air conditioning

Utilities

Water
Municipal water
Utility Sewer
Sanitary sewer

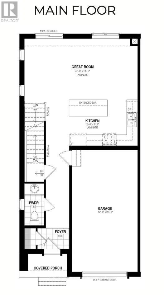
Room Layout

Primary Bedroom
Second level
4.93 m x 3.66 m
Bedroom 2
Second level
4.17 m x 3.05 m
Bedroom 3
Second level
3.07 m x 3.28 m
Kitchen
Main level
2.67 m x 3.81 m
Great room
Main level
3.4 m x 6.4 m
Partial bathroom
Main level
0.99 m x 2.33 m

Location

Learn more about this property
Listing provided by:
CENTURY 21 FIRST CANADIAN CORP
MLS® number:
X12818142
Agent:
Thao Thai
*Indicates required field
Name is required
Email is required
Please enter a valid phone number (e.g., 416-111-1111).

Street Spotlight - For sale