2524 Constance Avenue, London South, Ontario N6M 1E7

Listed for:
$569,000
3 beds
3 baths
Listed 49 days ago
Row / Townhouse for rent: 2524 Constance Avenue, London South, Ontario N6M 1E7

View all 16 photos

About

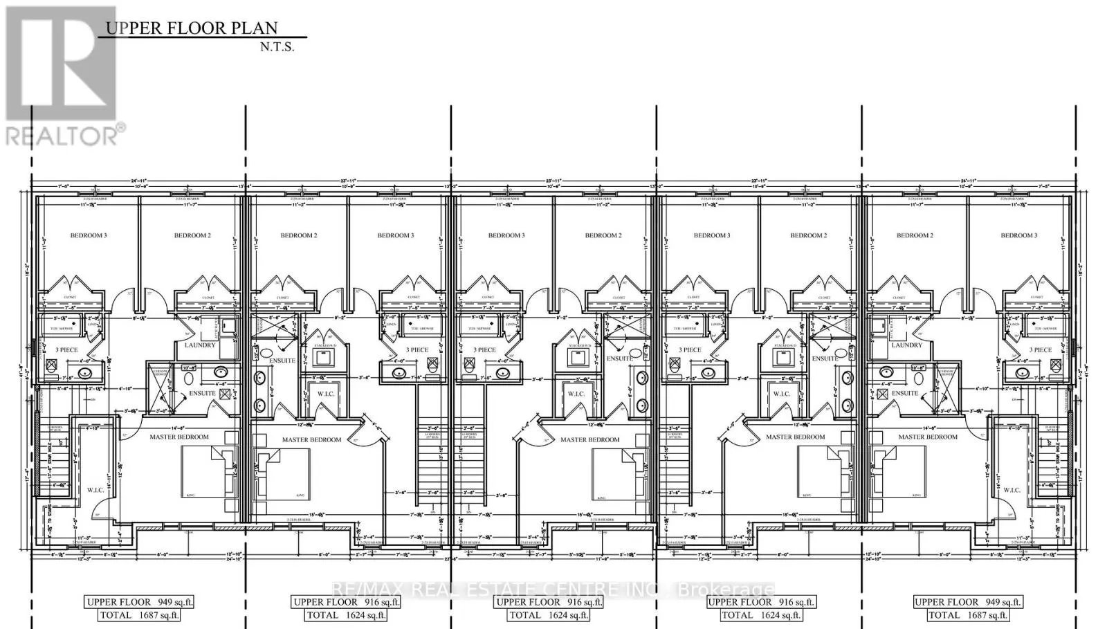
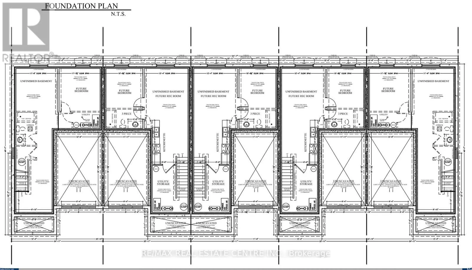
Cross Streets: Commissioners Rd E & Hamilton Rd. ** Directions: From Commissioners Rd E, drive onto Sheffield Blvd., turn right onto Kettering Pl , right on Barn Swallow Place, the TH site on your left. **A RARE FIND PRE-CONSTRUCTION TOWNHOME with SEPARATE ENTRANCE for BASEMENT**The Doulyne Townhomes at Victoria On The River, a prestigious community offering meticulously designed 3-bedroom, 2.5-bath home 1,624 square feet. These homes blend modern functionality with high-end finishes, featuring second-floor laundry, a single garage, and 9-foot ceilings on the main floor. California-style ceilings enhance the living spaces, while luxury vinyl plank flooring flows throughout, complemented by premium tiles in the bathrooms. The exterior showcases quality stone, brick, stucco, and siding as applicable, with an insulated garage door and interlock driveway for added convenience. Inside, enjoy granite or quartz countertops, under-mount sinks, and up to 25 pot lights, creating a sophisticated ambiance. The bathrooms feature acrylic tubs and/or showers with acrylic walls, and an unfinished basement offers excellent potential for future expansion of your living experience. Located in London South, this neighbourhood benefits from serene river side living with easy access to essential amenities, including schools, shopping, gyms, restaurants, and quick access to Highway 401, 15 minute drive to Western University, and 10 minute drive to Fanshawe College. Don't miss your chance to make this exceptional community your home. SEE FLOOR PLAN IN ATTACHMENTS** (id:27476)

Property Highlights

MLS® Number
X12821656
Type
Single Family
Community Name
South U
Ownership Type
Freehold
Land Size
24 x 97 FT|under 1/2 acre
Parking Space Total
2

Building

Building Type
Row / Townhouse
Storeys
2.00
Square Footage
1500 - 2000 sqft
Bathrooms Total
3
Bedrooms Above Ground
3
Bedrooms Total
3
Amenities
Hospital, Park
Exterior Finish
Brick, Vinyl siding
Fireplace Present
No
Basement Type
Full
Basement Features
Separate entrance
Building Heating Type
Forced air
Heating Fuel
Natural gas
Building Cooling Type
Central air conditioning

Utilities

Water
Municipal water
Utility Sewer
Sanitary sewer

Room Layout

Bedroom 3
Second level
3.53 m x 4.06 m
Primary Bedroom
Second level
4.42 m x 3.73 m
Bathroom
Second level
3.25 m x 1.83 m
Laundry room
Second level
2.23 m x 1.67 m
Bathroom
Second level
2.26 m x 2.43 m
Bedroom 2
Second level
3.53 m x 4.06 m
Foyer
Main level
3.2 m x 3.12 m
Kitchen
Main level
3.25 m x 2.59 m
Dining room
Main level
3.25 m x 2.69 m
Great room
Main level
3.78 m x 4.57 m

Location

Learn more about this property
Listing provided by:
RE/MAX REAL ESTATE CENTRE INC.
MLS® number:
X12821656
Agent:
Prabhjot Mahal
*Indicates required field
Name is required
Email is required
Please enter a valid phone number (e.g., 416-111-1111).