80 & 82 Base Line Road W, London South, Ontario N6J 1V2

Listed for:
$1,600,000
0 beds
0 baths
Listed 23 days ago
Other for rent: 80 & 82 Base Line Road W, London South, Ontario N6J 1V2

View all 9 photos

About

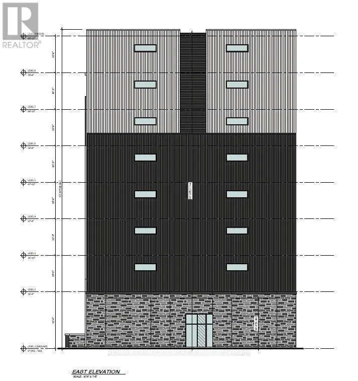
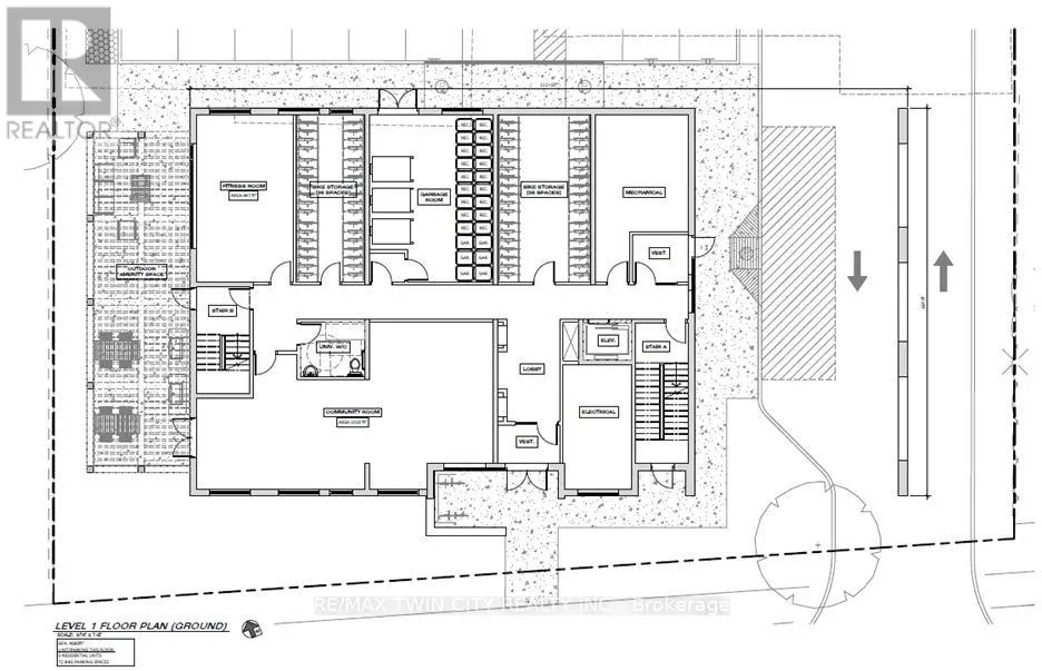
BASELINE ROAD WEST OF WHARNCLIFFE DEVELOPMENT OPPORTUNITY - PRIME MULTI-RESIDENTIAL SITE. An exceptional opportunity to acquire a prime multi-residential development site in one of London's most desirable neighbourhoods. This half-acre property is fully rezoned for an 8-storey, 77-unit apartment building, allowing the next owner to proceed directly to the draft Site Plan Approval (SPA) phase. The site is currently tenanted, generating interim income to help offset holding costs, and is located just steps from Wortley Village with convenient access to transit, shops, restaurants, and green space, making it highly attractive to future renters. Existing zoning permits up to 12 storeys, with potential for additional density through underground parking, presenting a rare near-turnkey development opportunity in a high-demand rental market. (id:27476)

Property Highlights

MLS® Number
X12861680
Type
Single Family
Community Name
South E
Land Size
150 x 143 FT

Building

Building Type
Other
Storeys
2.00
Square Footage
0 - 699 sqft
Exterior Finish
Brick, Aluminum siding
Fireplace Present
No
Basement Type
Basement Features
Building Heating Type
Forced air
Heating Fuel
Natural gas
Building Cooling Type
Central air conditioning

Utilities

Water
Municipal water

Location

Learn more about this property
Listing provided by:
RE/MAX TWIN CITY REALTY INC.
MLS® number:
X12861680
Agent:
Adam Patel
*Indicates required field
Name is required
Email is required
Please enter a valid phone number (e.g., 416-111-1111).

Street Spotlight - For sale