82 Base Line Road W, London South, Ontario N6J 1V2

Listed for:
$800,000
4 beds
4 baths
Listed 23 days ago
Fourplex for rent: 82 Base Line Road W, London South, Ontario N6J 1V2

View all 9 photos

About

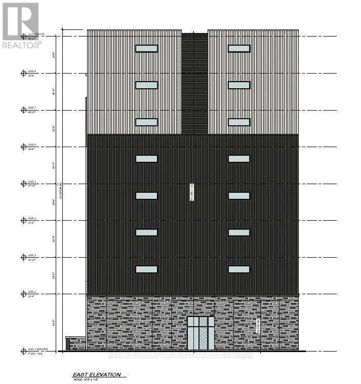
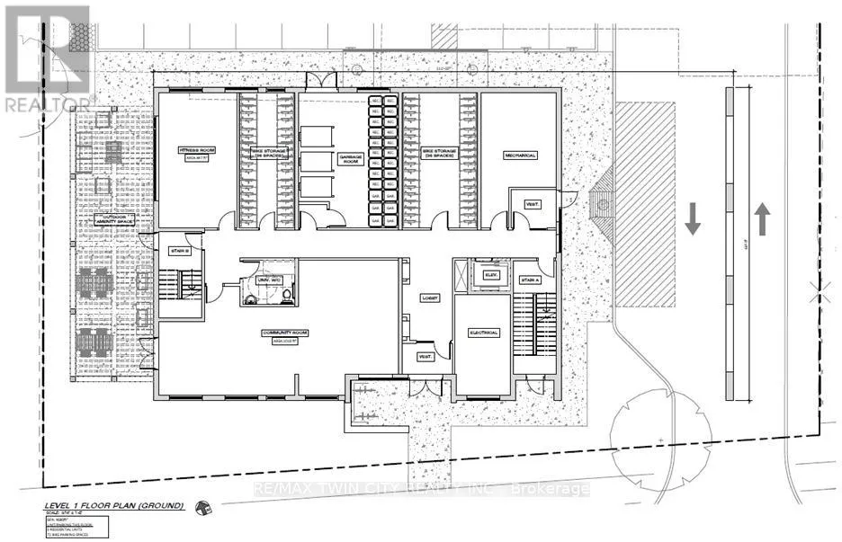
BASELINE ROAD WEST OF WHARNCLIFFE Opportunity knocks. Currently configured as four units converted from a single-family home and zoned R9-7, this property offers exceptional redevelopment and value-add potential. This prime multi-residential development site presents a rare and flexible acquisition opportunity for qualified buyers. The half-acre site is fully rezoned for an 8-storey, 77-unit apartment building, allowing the next owner to proceed directly to the draft Site Plan Approval (SPA) phase, while the existing tenancy provides interim income to help offset holding costs. Ideally located steps from Wortley Village in London, the property benefits from excellent access to transit, shops, restaurants, and green space, making it highly attractive to future renters. Existing zoning permits up to 12 storeys with potential for additional density through underground parking, and there is also the ability to develop 10-plex buildings depending on the buyer's strategy. This property must be sold together with the neighbouring bungalow at 80 Baseline Road, creating a larger development assembly and enhancing overall redevelopment potential, making this a rare near-turnkey opportunity in a high-demand location with multiple exit strategies. (id:27476)

Property Highlights

MLS® Number
X12861716
Type
Multi-family
Community Name
South E
Land Size
75 FT|under 1/2 acre
Parking Space Total
5

Building

Building Type
Fourplex
Storeys
2.00
Square Footage
2500 - 3000 sqft
Bathrooms Total
4
Bedrooms Above Ground
4
Bedrooms Total
4
Amenities
Fireplace(s) Golf Nearby, Hospital
Exterior Finish
Brick
Fireplace Present
No
Basement Type
Partial (Unfinished)
Basement Features
Building Heating Type
Forced air
Heating Fuel
Natural gas
Building Cooling Type
Central air conditioning

Utilities

Water
Municipal water
Utility Sewer
Sanitary sewer

Room Layout

Bedroom
Second level
2.97 m x 3.89 m
Laundry room
Second level
3.17 m x 1.83 m
Living room
Second level
2.87 m x 3.66 m
Kitchen
Second level
3.66 m x 3.66 m
Bedroom
Second level
5.49 m x 2.62 m
Laundry room
Second level
3.17 m x 1.83 m
Kitchen
Second level
3.66 m x 3.89 m
Kitchen
Main level
2.95 m x 3.05 m
Bathroom
Main level
1.83 m x 2.03 m
Primary Bedroom
Main level
3.35 m x 4.27 m
Other
Main level
4.57 m x 3.96 m
Other
Main level
4.57 m x 3.35 m
Sunroom
Main level
4.57 m x 3.17 m
Primary Bedroom
Main level
4.88 m x 4.04 m
Laundry room
Main level
3.58 m x 3.12 m

Location

Learn more about this property
Listing provided by:
RE/MAX TWIN CITY REALTY INC.
MLS® number:
X12861716
Agent:
Adam Patel
*Indicates required field
Name is required
Email is required
Please enter a valid phone number (e.g., 416-111-1111).