4038 Ayrshire Avenue, London South, Ontario N6P 0H7

Listed for:
$1,787,500
6 beds
5 baths
Listed 33 days ago
House for rent: 4038 Ayrshire Avenue, London South, Ontario N6P 0H7

View all 40 photos

About

Cross Streets: CAMPBELL ST - \"HEATHWOODS SUBDIVISION\". ** Directions: Wharncliffe Rd S to Campbell St.; West on Campbell to Heathwoods right on Heathwoods and right again on Ayrshire. "SPECIAL MORTGAGE PROMOTION" - Rates as LOW as 2.89% for a 3 Year Term!! (for qualified buyers Attention Distinguished Buyers - MODEL HOME for Sale known as the (VERONA 11) located in the Prestigious Heathwoods Subdivision in Lovely Lambeth! PREMIUM WALK-OUT Lot backing onto picturesque POND! VERY Private! IMMEDIATE possession available, Exquisite 2 Storey 4 + 2 Bedrooms, 4.5 Baths, Over 4,700 Sq FT (as per blueprint) of Fabulous Quality Finishes / Upgrades Inside & Out! Chefs Delight Kitchen with Custom Upgraded Cabinetry, High-end appliances, Large Island & Wine bar / Prep area on side wall. Doors from dinette area leading out onto an expansive deck overlooking the serene pond! Fabulous for Outdoor Entertaining and scrumptious BBQ's! Oak staircase with decorative wrought iron spindles - 9 ft ceiling on Main Floor - Second Floor has 9 ft ceilings aa well as mixed height - Several Accent Walls throughout - Fully Finished WALK-OUT Lower Level with Separate Entrance - 9 ft ceilings - Kitchen, Living room - 2 bedrooms & 3pc bath. Excellent South / West Location close to several popular amenities, easy access to the 401 & 402! Looking to Build? We have Several other Lots & Floor plans to choose from. Experience the difference & Quality with WILLOW BRIDGE HOMES. (id:27476)

Property Highlights

MLS® Number
X12883574
Type
Single Family
Community Name
South V
Ownership Type
Freehold
Land Size
53.2 x 124.7 FT|under 1/2 acre
Parking Space Total
4

Building

Building Type
House
Storeys
2.00
Square Footage
3000 - 3500 sqft
Bathrooms Total
5
Bedrooms Above Ground
4
Bedrooms Total
6
Amenities
Fireplace(s)
Exterior Finish
Brick, Stone
Fireplace Present
Yes
Basement Type
N/A (Finished), N/A
Basement Features
Walk out, Separate entrance
Building Heating Type
Forced air
Heating Fuel
Natural gas
Building Cooling Type
Central air conditioning

Utilities

Water
Municipal water
Utility Sewer
Sanitary sewer

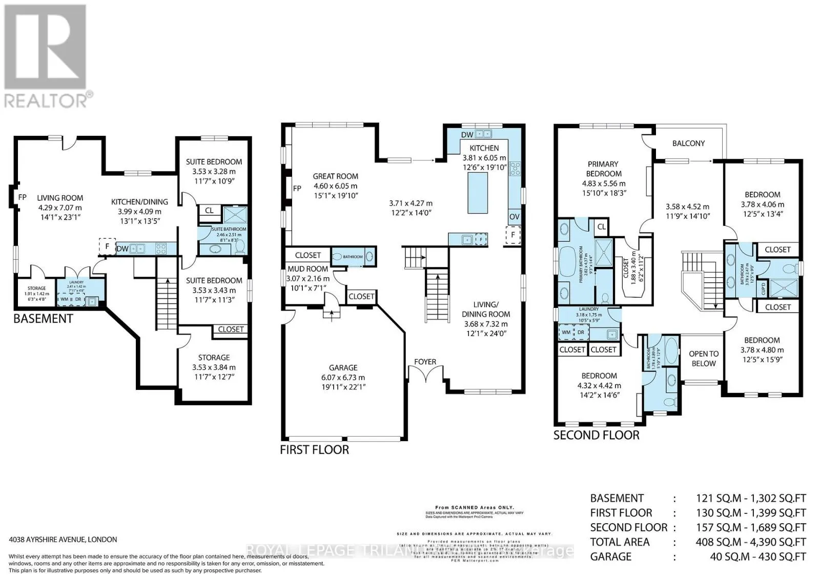
Room Layout

Primary Bedroom
Second level
4.83 m x 5.56 m
Bedroom 2
Second level
4.32 m x 4.42 m
Bedroom 3
Second level
3.78 m x 4.06 m
Bedroom 4
Second level
3.78 m x 4.8 m
Loft
Second level
3.58 m x 4.52 m
Kitchen
Basement
3.99 m x 4.09 m
Bedroom 5
Basement
3.53 m x 3.43 m
Bedroom
Basement
3.53 m x 3.28 m
Living room
Lower level
4.29 m x 7.07 m
Living room
Main level
3.68 m x 7.32 m
Kitchen
Main level
3.81 m x 6.05 m
Eating area
Main level
3.71 m x 4.27 m
Great room
Main level
4.6 m x 6.05 m
Mud room
Main level
3.07 m x 2.16 m

Location

Learn more about this property
Listing provided by:
ROYAL LEPAGE TRILAND REALTY
MLS® number:
X12883574
Agent:
Sharon Allison-prelazzi
*Indicates required field
Name is required
Email is required
Please enter a valid phone number (e.g., 416-111-1111).