34 Princeton Terrace, London South, Ontario N6K 0L5

Listed for:
$1,799,900
5 beds
3 baths
Listed 63 days ago
House for rent: 34 Princeton Terrace, London South, Ontario N6K 0L5

View all 46 photos

About

Cross Streets: Apricot Drive. ** Directions: Boler head east on Manhattan. Turn left on Apricot and right on Princeton Terrace. Executive bungalow on a spectacular 1/3-acre lot backing onto protected forest and pond system in prestigious Boler Heights. Positioned at the top of a quiet cul-de-sac, this residence offers rare privacy and immersive four-season views that feel more Muskoka than city living. The open-concept primary living spaces are anchored by a dramatic vaulted window wall that frames the treed landscape like living art. Designed with intentional sightlines across the wooded setting, the great room, dining area and kitchen flow together in a seamless fusion, bathed in natural light and a kaleidoscope of seasonal colour. Views travel effortlessly from one space to the next, allowing the forest to become part of the interior experience. A contemporary fireplace and striking wood slat illusion feature wall along the staircase add architectural texture and warmth. The chef-inspired kitchen is both refined & inviting, featuring a full-height tile backsplash feature wall, statement island, stainless appliances a walk-in pantry. Designed for effortless entertaining, it opens directly to the late partly covered deck with glass railings -an elevated outdoor living room suspended in the trees. Rich walnut detailing throughout the main level continues into the lower level, creating cohesive design continuity. The main floor primary suite offers private deck access, a spa-inspired ensuite and walk-in closet. A second bedroom, full bath, private office and generous mudroom/laundry enhance comfort and convenience, while the oversized garage, EV charger-ready. The walkout lower level is finished with in-floor radiant heat and features an expansive entertaining area with wet bar, 3 additional bedrooms and a covered patio with hot tub. Large windows draw natural light throughout. A full bath with exterior access supports future pool plans and refined backyard gatherings. An exceptional opportunity for retirees or discerning buyers seeking a luxury cottage-inspired lifestyle within the city. (id:27476)

Property Highlights

MLS® Number
X12883606
Type
Single Family
Community Name
South K
Ownership Type
Freehold
Land Size
65.9 x 153.3 FT
Parking Space Total
6

Building

Building Type
House
Storeys
1.00
Square Footage
2000 - 2500 sqft
Bathrooms Total
3
Bedrooms Above Ground
2
Bedrooms Total
5
Amenities
Fireplace(s)
Exterior Finish
Brick, Steel
Fireplace Present
Yes
Basement Type
N/A (Finished), N/A
Basement Features
Walk out, Separate entrance
Building Heating Type
Forced air, Not known
Heating Fuel
Natural gas
Building Cooling Type
Central air conditioning, Air exchanger

Utilities

Water
Municipal water
Utility Sewer
Sanitary sewer

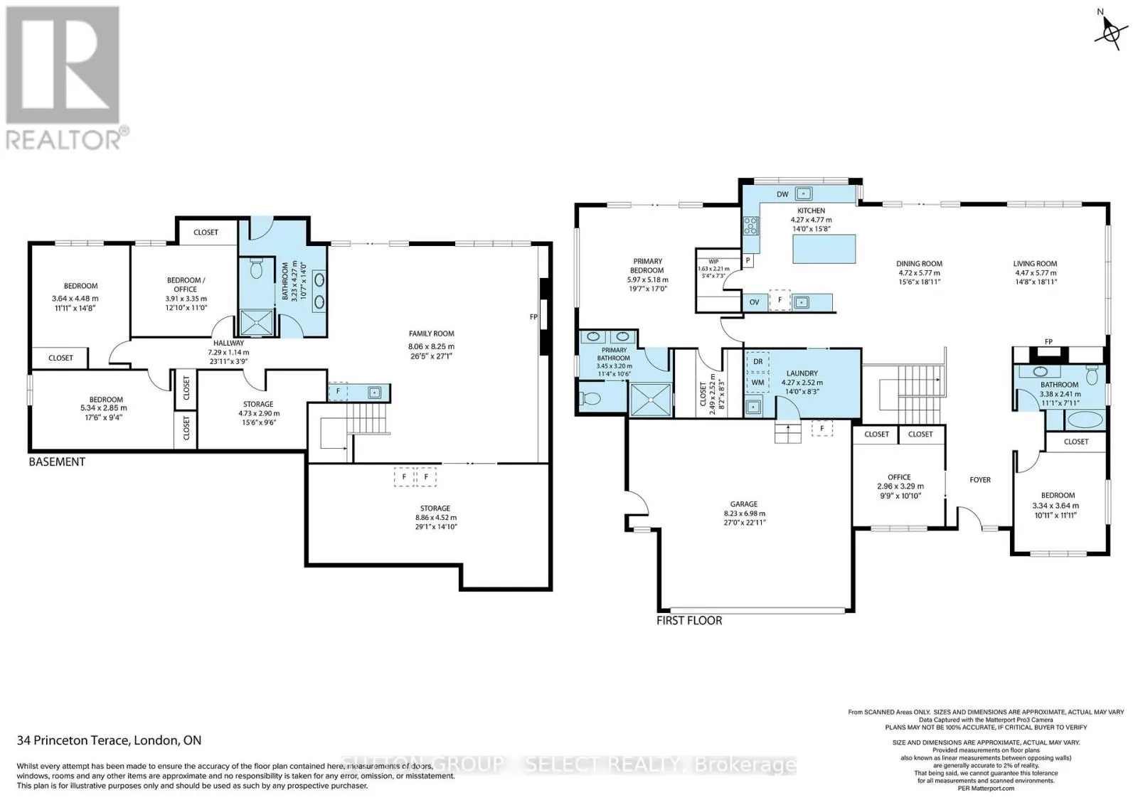
Room Layout

Bedroom 4
Lower level
3.64 m x 4.48 m
Bedroom 5
Lower level
5.34 m x 2.85 m
Other
Lower level
4.73 m x 2.9 m
Family room
Lower level
8.06 m x 8.25 m
Other
Lower level
8.86 m x 4.52 m
Bedroom 3
Lower level
3.91 m x 3.35 m
Bedroom
Main level
3.34 m x 3.64 m
Office
Main level
2.96 m x 3.29 m
Living room
Main level
4.47 m x 5.77 m
Dining room
Main level
4.72 m x 5.77 m
Kitchen
Main level
4.27 m x 4.77 m
Laundry room
Main level
4.27 m x 2.52 m
Primary Bedroom
Main level
5.97 m x 5.18 m

Location

Learn more about this property
Listing provided by:
SUTTON GROUP - SELECT REALTY
MLS® number:
X12883606
Agent:
Kim Mullan
*Indicates required field
Name is required
Email is required
Please enter a valid phone number (e.g., 416-111-1111).