88 - 1328 Commissioners Road W, London South, Ontario N6K 2Y6

Listed for:
$399,900
2 beds
2 baths
Listed 14 days ago
Row / Townhouse for rent: 88 - 1328 Commissioners Road W, London South, Ontario N6K 2Y6

View all 45 photos

About

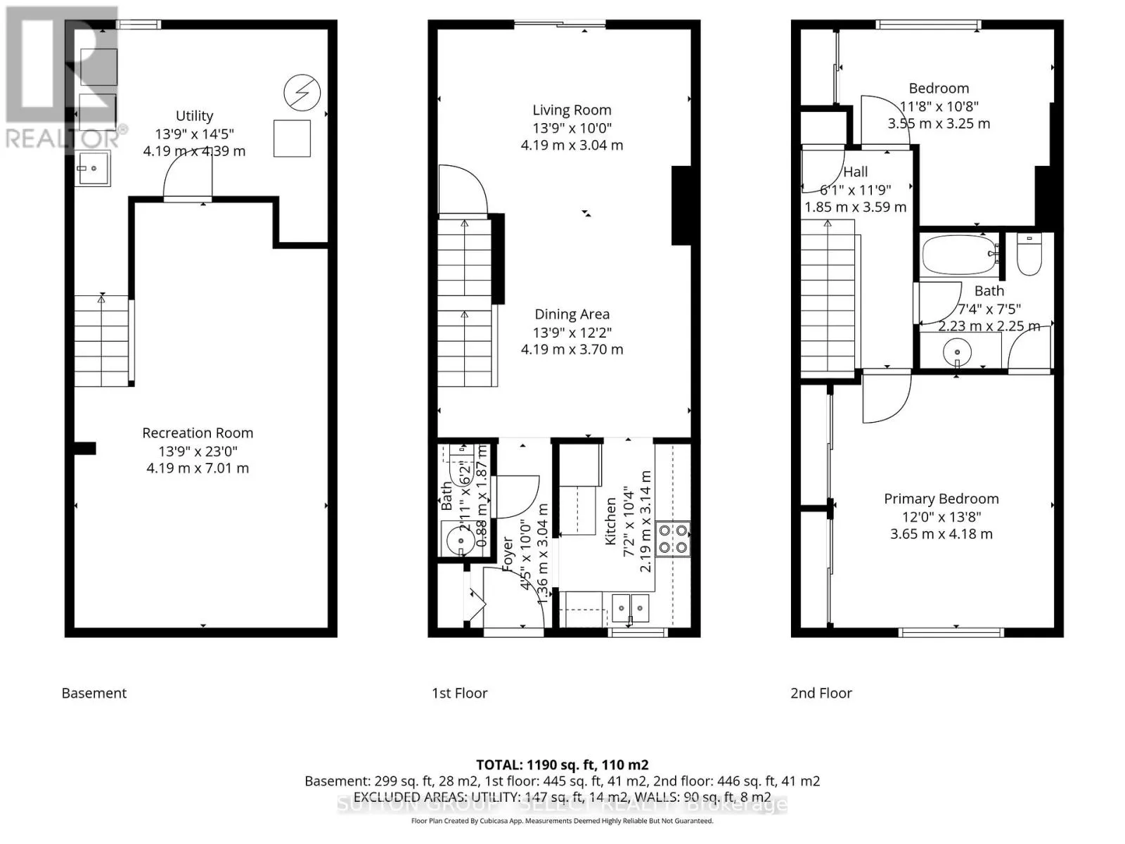
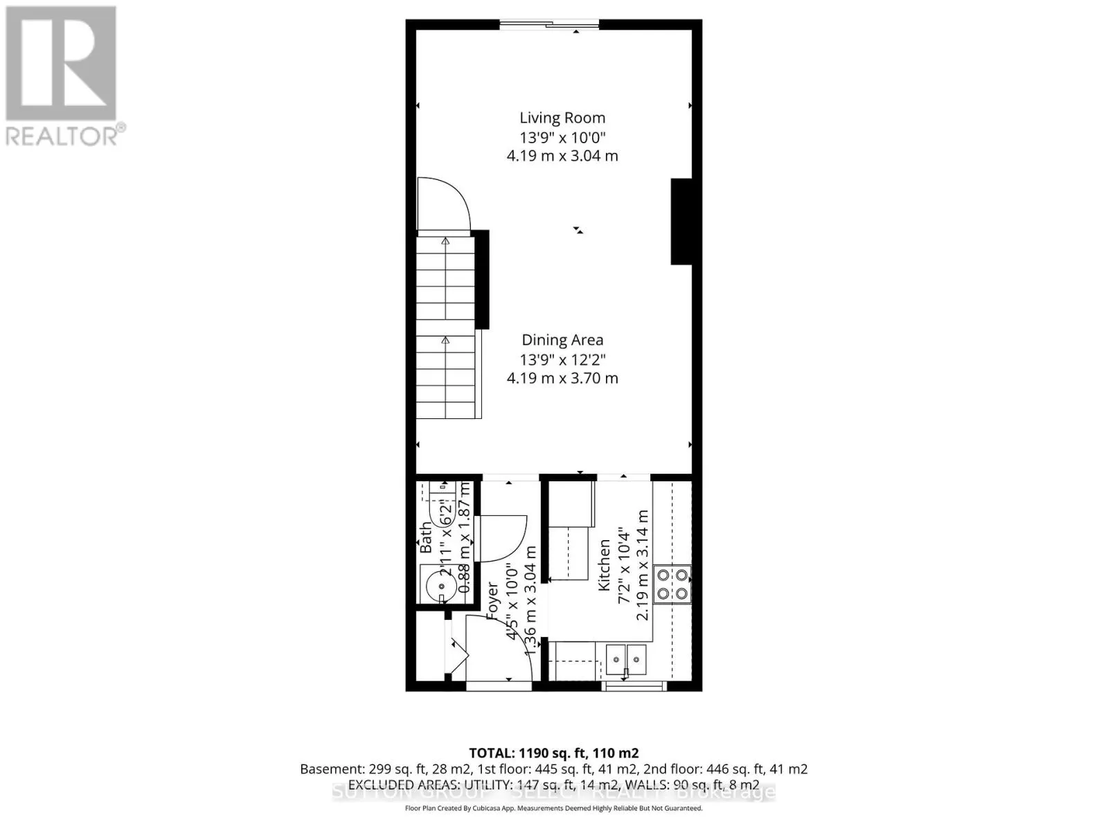
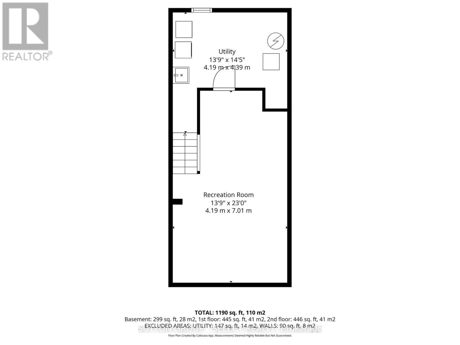
Commissioners and Boler Road LOW CONDO FEES | WELL MAINTAINED UNIT | GREAT OPPORTUNITY FOR FIRST TIME HOME BUYERS, NEW BEGINNING BUYERS, OR INVESTORS LOOKING FOR VALUE IN BYRON. The well-appointed 2 bed, 2 bath condo offers 1,325 sq.ft of total finished living space including the finished basement. Located steps from Northview Public School and a short walk to Springbank Park/Storybook Gardens, you're in a premium location with easy access to the 401/402. As you enter the condo complex, you'll notice mature trees, well-maintained grounds, a large green space, a beautiful in-ground pool and a tennis/pickleball court. Enjoy one dedicated, well lit outdoor parking spot approx. 50ft from your front door (spot #44) and ample first come first serve visitor parking for a second vehicle. This unit is positioned near the back of the complex, benefitting from added privacy and limited traffic. Enter into the main level, featuring newer luxury vinyl plank flooring (2022). Step outside to a private, fully fenced patio with a gate for ease of coming and going to the common areas. Upstairs you'll find two bedrooms, including a spacious primary with an impressive amount of closet storage and a cheater 4-piece ensuite to the main bath. The finished lower-level rec-room stretches 23 feet, creating the perfect entertainment retreat, playroom, or flexible space. Condo fees are very reasonable $325/month and cover building insurance, parking, lawn & common area maintenance, and snow removal. Owners enjoy being close to Byron amenities, Tim Hortons, restaurants, Boler Mountain, golf, and major transportation routes. Built in microwave (2025), Furnace/AC (2016). Pets permitted! Select photos are virtually staged and are not an exact representation. (id:27476)

Property Highlights

MLS® Number
X12904926
Type
Single Family
Community Name
South B
Maintenance Fee
325.00
Ownership Type
Condominium/Strata
Parking Space Total
1

Building

Building Type
Row / Townhouse
Storeys
2.00
Square Footage
1000 - 1199 sqft
Bathrooms Total
2
Bedrooms Above Ground
2
Bedrooms Total
2
Amenities
Visitor Parking, Separate Electricity Meters Golf Nearby, Park, Place of Worship, Schools
Exterior Finish
Brick, Vinyl siding
Fireplace Present
No
Basement Type
Full (Finished)
Basement Features
Building Heating Type
Forced air
Heating Fuel
Natural gas
Building Cooling Type
Central air conditioning

Location

Learn more about this property
Listing provided by:
SUTTON GROUP - SELECT REALTY
MLS® number:
X12904926
Agent:
Vanessa Franjkovic
*Indicates required field
Name is required
Email is required
Please enter a valid phone number (e.g., 416-111-1111).

Street Spotlight - For sale