1185 Honeywood Dr Drive, London South, Ontario N6M 0L6

Listed for:
$818,900
4 beds
3 baths
Listed 2 days ago
House for rent: 1185 Honeywood Dr Drive, London South, Ontario N6M 0L6

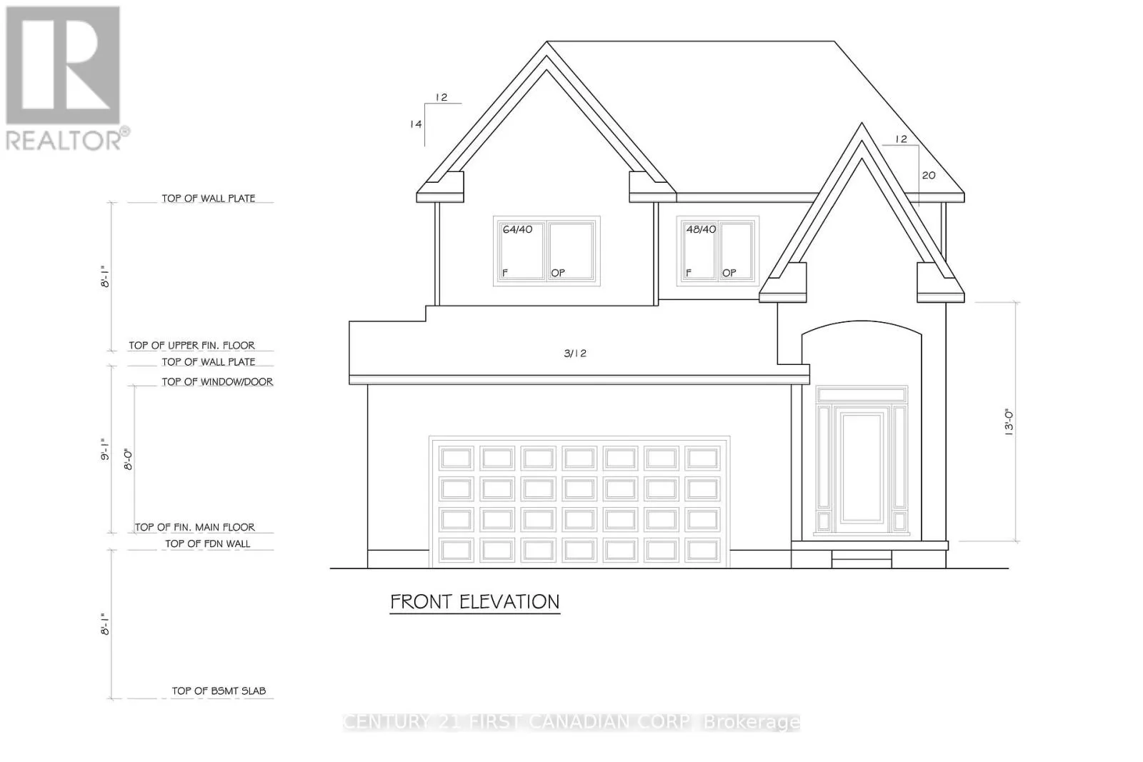
View all 12 photos

About

Cross Streets: Darnley Blvd. ** Directions: Start Commissioners Road, head South on Jackson Road, take 2nd left onto Darnley Blvd (east), take 2nd right onto Honeywood Dr -1185 Honeywood Dr will be on your right (Lot#12) located in jackson Meadows/ Summerside area (Southeast London). Modern Living Backing Onto Nature - The Emerald III Model to be build on a Walk-out Premium Lot. Don't miss this incredible opportunity to own a brand-new, thoughtfully designed home in the desirable Jacksons Meadows community. This Model offers 1,862 sq ft of functional, family-friendly living space with a striking steep front façade and a bright, open-concept layout. Backing onto a scenics trail and forest, this home delivers both privacy and picturesque views right from your backyard.The main floor features elegant hardwood flooring, oak stairs, and expansive windows that flood the space with natural light. The stylish kitchen is designed for both everyday living and entertaining, complete with a large quartz/granite island that flows into the dining area-perfectly positioned to enjoy the tranquil outdoor setting. The living room features an electric fireplace, creating a warm and modern ambiance. Upstairs, you'll find four spacious bedrooms, including a primary retreat with a walk-in closet finished 3-piece ensuite featuring quartz/granite countertops. A second 3-piece bathroom, convenient upper-level laundry, and a linen closet. Built by Vander Wielen Design & Build Inc., this to-be-built home allows buyers to personalize finishes, colours, and upgrades to match their unique style. Located in a rapidly growing neighbourhood, Jacksons Meadows offers exceptional convenience-close to schools, shopping, restaurants, parks, and quick access to Highway 401. A new state-of-the-art public school with childcare facilities is currently under construction nearby.Bonus: For a limited time, the builder is including a $7,500 appliance package. HST Rebate has been adjusted and is reflected in the listed price in accordance with the new temporarily HST Rebate regulations effective April 1, 2026. CONTACT Realtor for more details. Images are for illustration purposes only ; final design, materials, and finishes may vary depending on clients selections. (id:27476)

Property Highlights

MLS® Number
X12945732
Type
Single Family
Community Name
South U
Ownership Type
Freehold
Land Size
36.6 x 106.2 FT
Parking Space Total
4

Building

Building Type
House
Storeys
2.00
Square Footage
1500 - 2000 sqft
Bathrooms Total
3
Bedrooms Above Ground
4
Bedrooms Total
4
Amenities
Fireplace(s) Hospital, Schools, Park
Exterior Finish
Brick, Vinyl siding
Fireplace Present
Yes
Basement Type
N/A (Unfinished)
Basement Features
Building Heating Type
Forced air
Heating Fuel
Electric
Building Cooling Type
Central air conditioning

Utilities

Water
Municipal water
Utility Sewer
Sanitary sewer

Room Layout

Dining room
Lower level
3.04 m x 4.08 m
Mud room
Lower level
1.67 m x 1.46 m
Partial bathroom
Lower level
1.67 m x 1.52 m
Foyer
Lower level
1.61 m x 2.43 m
Living room
Lower level
5.18 m x 4.08 m
Kitchen
Lower level
3.5 m x 4.08 m
Primary Bedroom
Upper Level
4.49 m x 3.2 m
Bathroom
Upper Level
3.35 m x 1.72 m
Bedroom 2
Upper Level
3.35 m x 3.04 m
Bedroom 3
Upper Level
3.04 m x 3.4 m
Bedroom 4
Upper Level
3.04 m x 3.4 m
Bathroom
Upper Level
2.67 m x 1.61 m
Laundry room
Upper Level
1.57 m x 1.82 m

Location

Learn more about this property
Listing provided by:
CENTURY 21 FIRST CANADIAN CORP
MLS® number:
X12945732
Agent:
Katherine Vander Wielen
*Indicates required field
Name is required
Email is required
Please enter a valid phone number (e.g., 416-111-1111).