532 Rosecliffe Terrace, London South, Ontario N6K 4H6

Listed for:
$899,900
6 beds
4 baths
Listed 9 days ago
House for rent: 532 Rosecliffe Terrace, London South, Ontario N6K 4H6

View all 49 photos

About

Cross Streets: QUINELLA DR & ROSECLIFFE TERR. ** Directions: WONDERLAND RD. TO ROSECLIFFE TERRACE. EXTREMELY WELL PRICED - Exceptional Value in Rosecliffe Estates! Welcome to this stunning executive residence in prestigious Rosecliffe Estates, where timeless elegance meets modern comfort. Immaculately maintained and thoughtfully updated, this impressive 4+2 bedroom home offers the perfect blend of sophistication, space, & functionality. Step into the grand foyer, highlighted by a dramatic curved oak staircase that immediately sets the tone for the refined interior. The main floor features a classic, well-designed layout with spacious formal living and dining rooms, a warm and inviting family room, convenient main-floor laundry & a beautifully appointed kitchen with dinette.The recently updated kitchen is truly a chef's dream, featuring a new quartz island countertop, a stylish sink and faucet, abundant cabinetry, expansive counter space & an ideal working triangle for effortless meal preparation and entertaining.Upstairs, retreat to the luxurious primary suite, a private sanctuary boasting generous proportions, a spa-inspired ensuite & an oversized walk-in closet. Three additional bedrooms are all impressively sized, offering comfort and flexibility for family or guests.The freshly updated lower level expands your living space with new paint, a renovated 3-piece bathroom, a large recreation room, two additional bedrooms & a dedicated office, perfect for extended family, guests, or working from home.Extensive upgrades provide peace of mind & efficiency, including: Energy Star-rated windows throughout the first & second floors, recently replaced front doors and foyer window hardwood flooring in the family, dining, & living rooms, updated ceramic tile in the foyer and kitchen, upgraded trim and interior doors, energy-efficient furnace and central air conditioning. This exceptional home offers all the quality finishes and thoughtful details you would expect in a property of this calibre & at an incredible price point. See documents for list of upgrades! (id:27476)

Property Highlights

MLS® Number
X12962572
Type
Single Family
Community Name
South C
Ownership Type
Freehold
Land Size
65.8 x 122.1 FT
Parking Space Total
4

Building

Building Type
House
Storeys
2.00
Square Footage
2500 - 3000 sqft
Bathrooms Total
4
Bedrooms Above Ground
4
Bedrooms Total
6
Amenities
Fireplace(s) Golf Nearby, Hospital, Public Transit
Exterior Finish
Aluminum siding, Brick
Fireplace Present
Yes
Basement Type
Full (Finished)
Basement Features
Building Heating Type
Forced air
Heating Fuel
Natural gas
Building Cooling Type
Central air conditioning

Utilities

Water
Municipal water
Utility Sewer
Sanitary sewer

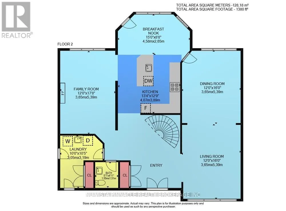
Room Layout

Primary Bedroom
Second level
5.78 m x 5.41 m
Bedroom 2
Second level
4.27 m x 2.97 m
Bedroom 3
Second level
3.96 m x 3.58 m
Bedroom 4
Second level
3.36 m x 3.18 m
Bedroom 5
Basement
3.86 m x 2.98 m
Office
Basement
3.66 m x 2.94 m
Bedroom
Basement
3.86 m x 2.98 m
Utility room
Basement
4.26 m x 2.96 m
Recreational, Games room
Basement
9.12 m x 3.65 m
Kitchen
Main level
4.07 m x 4.39 m
Foyer
Main level
3.3 m x 3.3 m
Eating area
Main level
4.58 m x 2.65 m
Dining room
Main level
5.39 m x 3.65 m
Living room
Main level
5.39 m x 3.65 m
Family room
Main level
5.39 m x 3.65 m
Laundry room
Main level
3.19 m x 3.05 m

Location

Learn more about this property
Listing provided by:
NU-VISTA PINNACLE REALTY BROKERAGE INC
MLS® number:
X12962572
Agent:
Scott Haslett
*Indicates required field
Name is required
Email is required
Please enter a valid phone number (e.g., 416-111-1111).

Community Spotlight: Homes For sale in Your Neighborhood