Lot 38 Fallingbrook Road, London South, Ontario N6P 1H5

Listed for:
$1,217,150
4 beds
4 baths
Listed 10 days ago
House for rent: Lot 38 Fallingbrook Road, London South, Ontario N6P 1H5

View all 25 photos

About

North on Colonel Talbot Rd, right on Heathwoods ave, right on Fallingbrook rd in London What if you could walk through your home before it's built, and change anything you want? That's how Halcyon Homes works.At 4232 Fallingbrook Road in The Heathwoods, Lambeth, this to-be-built 4-bedroom, 3.5-bathroom custom home sits on one of the community's most coveted lots: a premium 50' x 152' parcel backing onto mature trees. Privacy like this doesn't come along often.Every Halcyon home starts with a model concept, in this case the Arvada at approximately 2,800 sq ft, but nothing is locked in. You choose the layout, the finishes, and the flow of every room. Their design-build process is unlike anything you've experienced: transparent pricing, real-time plan modifications in their design studio, and a dedicated team that walks you through every decision without pressure or hidden costs.Pricing shown reflects the Arvada model. These are starting concepts to give you a real sense of what's possible. Reach out for a no-pressure discovery call and you'll learn more about new home construction than you thought possible.The Heathwoods puts you minutes from Lambeth Village's cafés and local shops, with quick access to Hwy 401/402 when you need it. Walk through The Myra Model Home at 4100 Fallingbrook Road to experience Halcyon's quality firsthand. Pricing includes HST rebate. A lot premium of $60,000 plus HST , not included in the price. Ask us about the $100,000 builder incentive. Only a few lots remain. (id:27476)

Property Highlights

MLS® Number
X12972278
Type
Single Family
Community Name
South V
Ownership Type
Freehold
Land Size
50 x 152 FT
Parking Space Total
4

Building

Building Type
House
Storeys
2.00
Square Footage
2500 - 3000 sqft
Bathrooms Total
4
Bedrooms Above Ground
4
Bedrooms Total
4
Amenities
Fireplace(s) Schools
Exterior Finish
Brick, Aluminum siding
Fireplace Present
Yes
Basement Type
N/A (Unfinished)
Basement Features
Building Heating Type
Forced air
Heating Fuel
Electric
Building Cooling Type
Central air conditioning, Air exchanger

Utilities

Water
Municipal water
Utility Sewer
Sanitary sewer

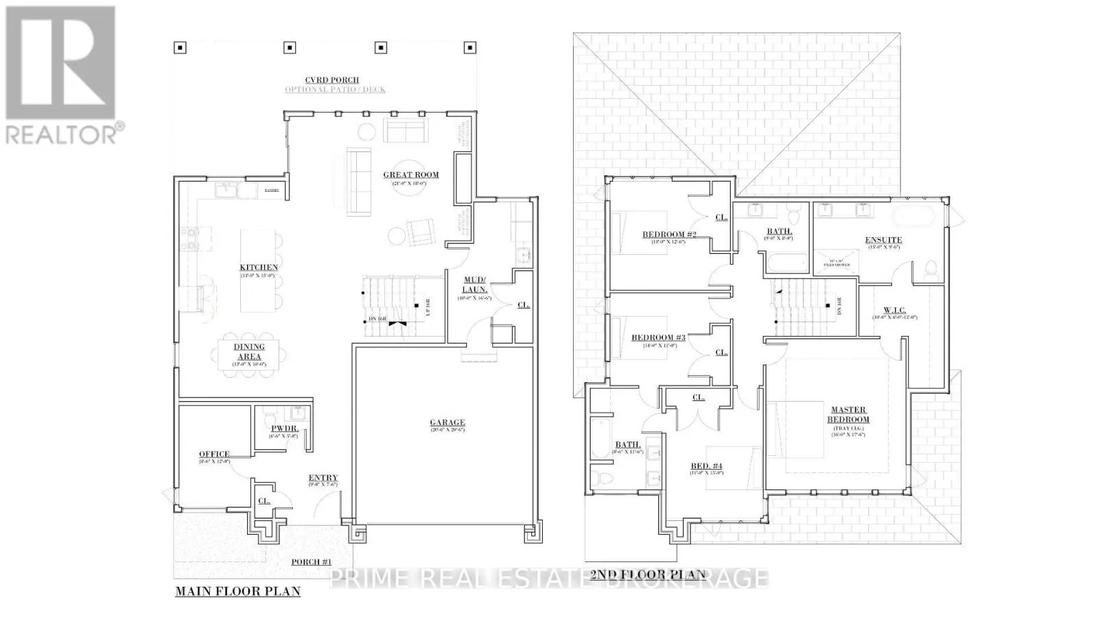
Room Layout

Bathroom
Second level
4.57 m x 2.9 m
Bathroom
Second level
3.05 m x 1.83 m
Bathroom
Second level
2.74 m x 2.44 m
Primary Bedroom
Second level
4.88 m x 5.33 m
Bedroom 2
Second level
4.27 m x 3.81 m
Bedroom 3
Second level
2.74 m x 2.44 m
Bedroom 4
Second level
4.27 m x 3.35 m
Office
Main level
2.59 m x 3.66 m
Dining room
Main level
3.96 m x 4.57 m
Kitchen
Main level
3.96 m x 3.05 m
Great room
Main level
3.35 m x 4.57 m
Laundry room
Main level
1.98 m x 1.52 m

Location

Learn more about this property
Listing provided by:
PRIME REAL ESTATE BROKERAGE
MLS® number:
X12972278
Agent:
Justin Konikow
*Indicates required field
Name is required
Email is required
Please enter a valid phone number (e.g., 416-111-1111).

Street Spotlight - For sale