410 - 931 Wonderland Road S, London South, Ontario N6K 2X6

Listed for:
$299,999
2 beds
1 baths
Listed 8 days ago
Apartment for rent: 410 - 931 Wonderland Road S, London South, Ontario N6K 2X6

View all 31 photos

About

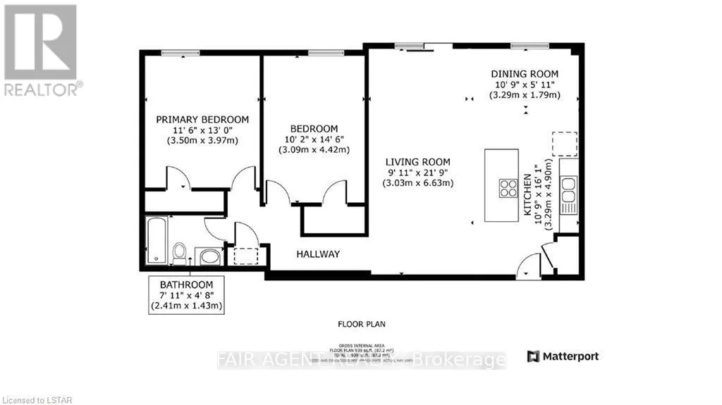
Cross Streets: McMaster Dr / Wonderland Rd. ** Directions: McMaster Dr and Wonderland Rd. AMAZING LOCATION! This exceptional 2-bedroom with covered parking and party-room condo in the sought-after Greater Westmount neighborhood combines modern convenience with serene surroundings. Just minutes from Highway 402, Westmount Mall, Freshco, bus routes, and the Bostwick YMCA, this location offers easy access to everything you need! Plus, condo fee includes Heat, Hydro and Water! Inside, find sleek stainless steel appliances (including a newer stove and all-in-one washer/dryer), a refreshed bathroom vanity, and bright living space with orange peel ceilings. The updated kitchen features resurfaced cupboards, counter-tops and natural stone back-splash. Additional highlights include vinyl flooring, peel wallpaper, some newer lighting, and a wall-mounted electric fireplace decor! Enjoy the oversized glass balcony with peaceful tree views, plus access to resort-style pool, playground and park-like setting behind the building. The secondary bedroom, currently a home office, offers a large storage closet. Included in the sale: Window blinds, desk, futon sofa, printer table, extra laminate flooring, portable air conditioner and oversized hall wall mirror! (id:27476)

Property Highlights

MLS® Number
X12973690
Type
Single Family
Community Name
South M
Maintenance Fee
606.00
Ownership Type
Condominium/Strata
Parking Space Total
1

Building

Building Type
Apartment
Square Footage
900 - 999 sqft
Bathrooms Total
1
Bedrooms Above Ground
2
Bedrooms Total
2
Amenities
Party Room Hospital
Exterior Finish
Brick
Fireplace Present
Yes
Basement Type
None
Basement Features
Building Heating Type
Heating Fuel
Building Cooling Type
None

Location

Learn more about this property
Listing provided by:
FAIR AGENT REALTY
MLS® number:
X12973690
Agent:
Steven Loney
*Indicates required field
Name is required
Email is required
Please enter a valid phone number (e.g., 416-111-1111).

Street Spotlight - For sale