4371 Green Bend Road, London South, Ontario N6P 0K9

Listed for:
$829,900
3 beds
3 baths
Listed 1 day ago
House for rent: 4371 Green Bend Road, London South, Ontario N6P 0K9

View all 3 photos

About

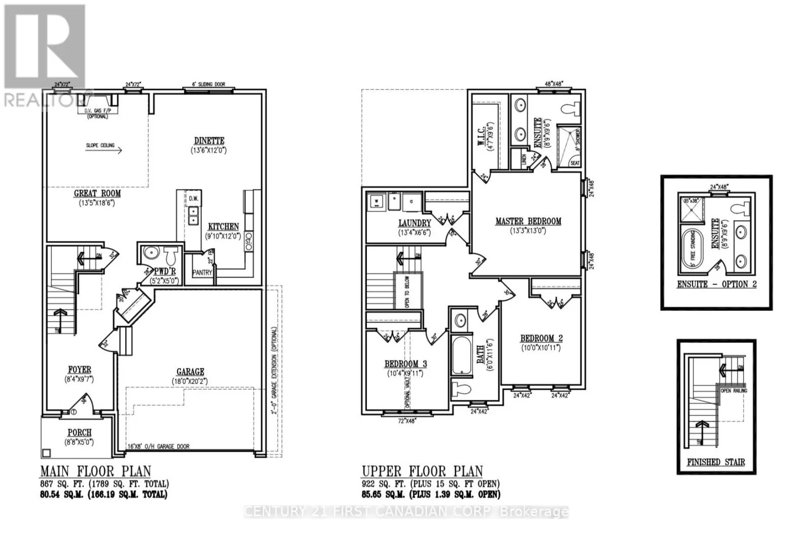
Cross Streets: HAMYLYN ST. ** Directions: From Wonderland Road South, turn West on Hamlyn St then South on Green Bend Road. Welcome to your future home in the highly sought after Liberty Crossing community in Lambeth. This to-be-built two storey home by Castell Homes, The Cole model, offers 3 bedrooms and 2.5 bathrooms on a premium lot backing onto green space. Built with quality craftsmanship and a functional layout, this home is designed for comfortable, modern living. The main floor features a bright, open-concept kitchen, dining area, and great room, ideal for both everyday life and entertaining. The kitchen includes a convenient pantry for added storage. A 2-piece powder room and inside access to the double-car garage complete the main level. Upstairs, the primary bedroom includes a walk-in closet and private 4-piece ensuite, with the option to upgrade to a 5-piece ensuite featuring a soaker tub. Two additional well-sized bedrooms, a full 4-piece bathroom, and a second-floor laundry room add to the home's practical layout. Located in a family friendly neighbourhood, Liberty Crossing offers a quiet suburban setting with easy access to everyday amenities. Close to shopping, schools, parks, and recreational facilities in Lambeth, with convenient connections to Highways 402 and 401 for commuting across London and Southwestern Ontario. Price reflects the proposed 2026 HST rebates. Final rebate amount is subject to the passing of Provincial and Federal legislation and Buyer's eligibility as per government guidelines, including primary residence or qualifying rental. (id:27476)

Property Highlights

MLS® Number
X13001120
Type
Single Family
Community Name
South V
Ownership Type
Freehold
Land Size
42.1 x 107.6 FT
Parking Space Total
4

Building

Building Type
House
Storeys
2.00
Square Footage
1500 - 2000 sqft
Bathrooms Total
3
Bedrooms Above Ground
3
Bedrooms Total
3
Exterior Finish
Stone, Hardboard
Fireplace Present
No
Basement Type
Full (Unfinished)
Basement Features
Building Heating Type
Forced air
Heating Fuel
Natural gas
Building Cooling Type
Central air conditioning

Utilities

Water
Municipal water
Utility Sewer
Sanitary sewer

Room Layout

Primary Bedroom
Second level
4.04 m x 3.96 m
Bedroom
Second level
3.05 m x 3.33 m
Bedroom
Second level
3.15 m x 3.02 m
Laundry room
Second level
4.06 m x 1.98 m
Kitchen
Main level
3 m x 3.66 m
Dining room
Main level
4.11 m x 3.66 m
Great room
Main level
4.09 m x 5.64 m

Location

Learn more about this property
Listing provided by:
CENTURY 21 FIRST CANADIAN CORP
MLS® number:
X13001120
Agent:
Sara Da Silva
*Indicates required field
Name is required
Email is required
Please enter a valid phone number (e.g., 416-111-1111).

Street Spotlight - For sale