80 Base Line Road W, London, Ontario N6J 1V2

Listed for:
$800,000
0 beds
0 baths
Listed 23 days ago
Fourplex for rent: 80 Base Line Road W, London, Ontario N6J 1V2

View all 9 photos

About

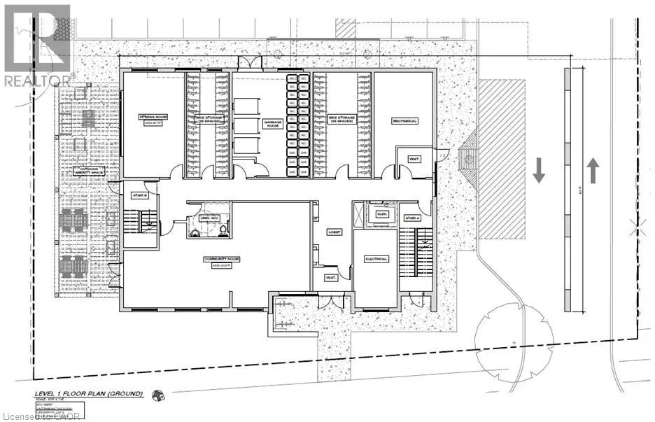
BASELINE ROAD WEST OF WHARNCLIFFE Opportunity knocks. Currently configured as four units converted from a single-family home and zoned R9-7, this property offers exceptional redevelopment and value-add potential. This prime multi-residential development site presents a rare and flexible acquisition opportunity for qualified buyers. The half-acre site is fully rezoned for an 8-storey, 77-unit apartment building, allowing the next owner to proceed directly to the draft Site Plan Approval (SPA) phase, while the existing tenancy provides interim income to help offset holding costs. Ideally located steps from Wortley Village in London, the property benefits from excellent access to transit, shops, restaurants, and green space, making it highly attractive to future renters. Existing zoning permits up to 12 storeys with potential for additional density through underground parking, and there is also the ability to develop 10-plex buildings depending on the buyer’s strategy. This property must be sold together with the neighbouring bungalow at 82 Baseline Road, creating a larger development assembly and enhancing overall redevelopment potential, making this a rare near-turnkey opportunity in a high-demand location with multiple exit strategies. (id:27476)

Property Highlights

MLS® Number
40809312
Type
Multi-family
Ownership Type
Freehold
Land Size
under 1/2 acre
Parking Space Total
5

Building

Building Type
Fourplex
Storeys
2.00
Square Footage
2450 sqft
Amenities
Golf Nearby, Hospital, Park, Place of Worship, Playground, Public Transit, Schools, Shopping
Exterior Finish
Brick
Fireplace Present
No
Basement Type
Partial (Unfinished)
Basement Features
Building Heating Type
Forced air
Heating Fuel
Natural gas
Building Cooling Type
Central air conditioning

Utilities

Water
Municipal water
Utility Sewer
Municipal sewage system

Location

Learn more about this property
Listing provided by:
RE/MAX TWIN CITY REALTY INC.
MLS® number:
40809312
Agent:
Adam Patel
*Indicates required field
Name is required
Email is required
Please enter a valid phone number (e.g., 416-111-1111).