17 Country Club Drive, Loyalist, Ontario K0H 1G0

Listed for:
$619,900
2 beds
3 baths
Listed 70 days ago
House for rent: 17 Country Club Drive, Loyalist, Ontario K0H 1G0

View all 45 photos

Learn more about this property
Listing provided by:
SUTTON GROUP-MASTERS REALTY INC., BROKERAGE
MLS® number:
X12493126
Agent:
Ted Custance
*Indicates required field
Name is required
Email is required
Please enter a valid phone number (e.g., 416-111-1111).

About

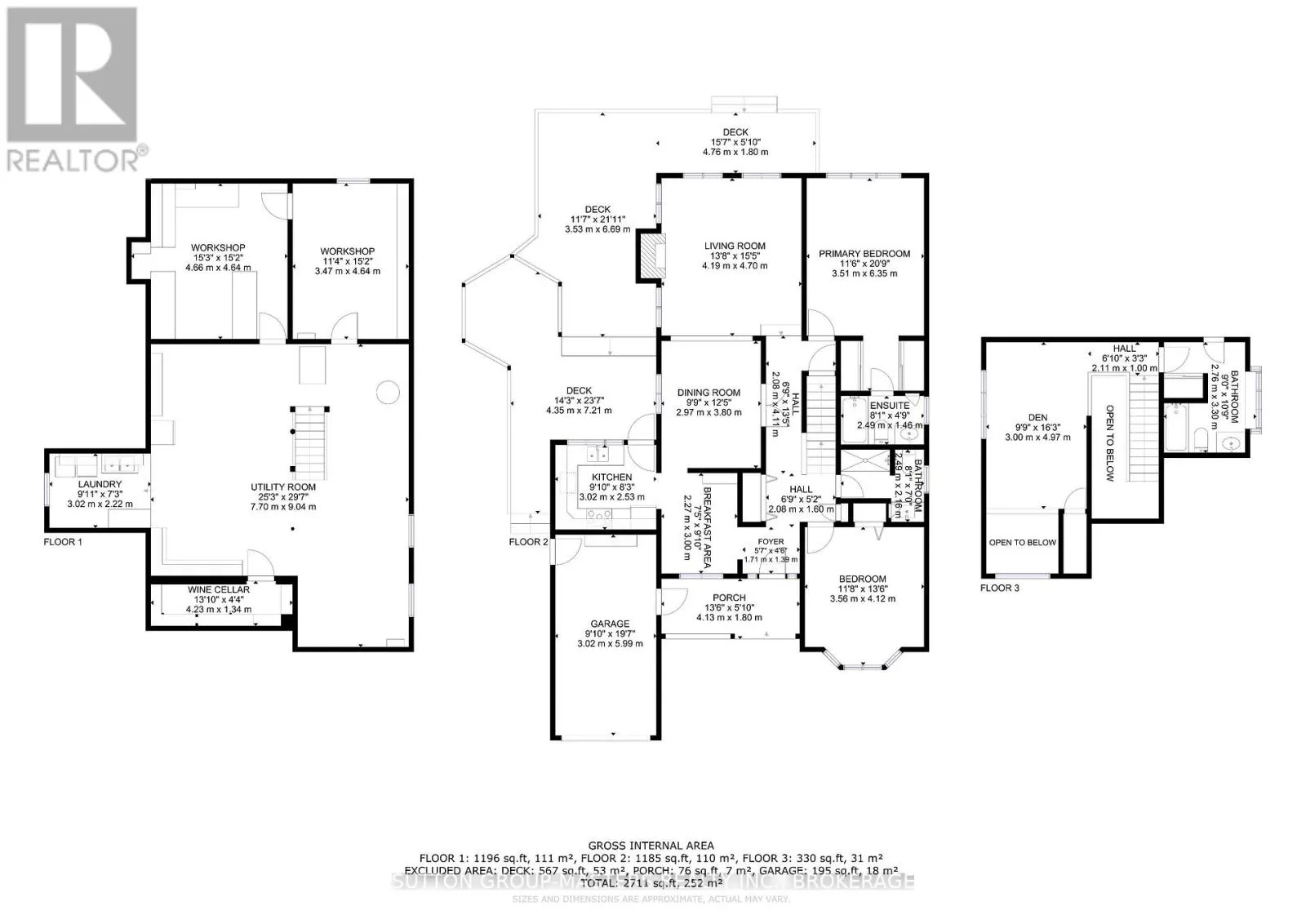
Cross Streets: Hwy 33. ** Directions: Highway 33 to Country Club Dr. This unique bungaloft in Loyalist Lifestyle Community offers a charming, character-filled home nestled on a picturesque Creekside lot in Bath. Built originally by developers for personal use, it combines comfort with distinctive features. Main floor features a functional kitchen with a breakfast room, a formal dining area overlooking a sunken, light-filled living room with a cozy natural gas fireplace, and a spacious primary bedroom with an updated ensuite bath. Additionally, there's a guest bedroom and a main bathroom. Upstairs, the loft and full bathroom can serve as a third bedroom or versatile living space. Enjoy outdoor living on a large deck with a pergola overlooking a beautifully landscaped yard, where the sounds of the creek create a peaceful atmosphere. Residents have access to a full-service marina, championship golf, tennis and pickleball courts, scenic trails, and a charming selection of shops, cafés, and restaurants. Whether retiring, seeking community, or simply relaxing, the Village of Bath offers a wonderful lifestyle. (id:27476)

Property Highlights

MLS® Number
X12493126
Type
Single Family
Community Name
57 - Bath
Ownership Type
Freehold
Land Size
52 x 150 FT
Parking Space Total
3

Building

Building Type
House
Storeys
1.50
Square Footage
1500 - 2000 sqft
Bathrooms Total
3
Bedrooms Above Ground
2
Bedrooms Total
2
Amenities
Fireplace(s) Golf Nearby, Park
Exterior Finish
Vinyl siding
Fireplace Present
Yes
Basement Type
Full
Basement Features
Building Heating Type
Forced air
Heating Fuel
Natural gas
Building Cooling Type
Central air conditioning

Utilities

Water
Municipal water
Utility Sewer
Sanitary sewer

Room Layout

Loft
Second level
4.97 m x 3 m
Bathroom
Second level
3.3 m x 2.76 m
Living room
Ground level
4.7 m x 4.193 m
Dining room
Ground level
3.8 m x 2.97 m
Kitchen
Ground level
3.02 m x 2.53 m
Eating area
Ground level
3 m x 2.27 m
Primary Bedroom
Ground level
6.35 m x 3.51 m
Bedroom 2
Ground level
4.12 m x 3.56 m
Bathroom
Ground level
2.49 m x 1.46 m
Bathroom
Ground level
2.49 m x 2.16 m

Location