163 Watts Drive, Lucan Biddulph, Ontario N0M 2J0

Listed for:
$785,000
4 beds
4 baths
Listed 7 days ago
House for rent: 163 Watts Drive, Lucan Biddulph, Ontario N0M 2J0

View all 4 photos

About

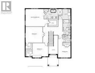
Cross Streets: Saintsbury and Main Street. ** Directions: Heading north on #4 Highway (Richmond/Main Street) turn right (North) on Olde Clover. Turn left onto Spencer and then right on Watts. Go north on Watts around the corner and the property will be on the right (north) side of Watts. TO BE BUILT. Welcome to this stunning 2-storey home in the growing community of Lucan, offering2,600 sq ft above grade with 4 bedrooms and 3.5 bathrooms. Situated on a premium 55' lot backing onto open farmer's fields, this property delivers privacy and peaceful views rarely found in newer subdivisions. The thoughtfully designed main floor features engineered hardwood flooring and a modern kitchen with stone countertops, perfect for both everyday living and entertaining. Upstairs, the spacious primary suite offers a spa-like ensuite complete with glass shower, soaker tub, and walk-in closet. Three additional bedrooms, including a secondary bedroom with its own ensuite, along with well-appointed bathrooms and convenient upper-level laundry, provide exceptional functionality for families. Built by Waverly Homes, this design offers a functional layout with the added benefit of customizable floor plan options to suit your needs. The 55' lot allows for a 2.5 car garage option. Enjoy the perfect balance of small-town charm and convenient access to schools, parks, and everyday amenities. Located just 17 minutes from London (id:27476)

Property Highlights

MLS® Number
X12925490
Type
Single Family
Community Name
Lucan
Ownership Type
Freehold
Land Size
55.9 x 120.8 FT ; 55.9x120.82x55.9x120.83|under 1/2 acre
Parking Space Total
4

Building

Building Type
House
Storeys
2.00
Square Footage
2500 - 3000 sqft
Bathrooms Total
4
Bedrooms Above Ground
4
Bedrooms Total
4
Exterior Finish
Brick, Vinyl siding
Fireplace Present
No
Basement Type
Full (Unfinished)
Basement Features
Building Heating Type
Forced air
Heating Fuel
Natural gas
Building Cooling Type
Central air conditioning

Utilities

Water
Municipal water
Utility Sewer
Sanitary sewer

Room Layout

Primary Bedroom
Second level
4.57 m x 4.39 m
Bedroom 2
Second level
4.27 m x 4.01 m
Bedroom 3
Second level
3.91 m x 3.35 m
Bedroom 4
Second level
3.12 m x 3.02 m
Laundry room
Second level
2.03 m x 2.64 m
Kitchen
Main level
4.65 m x 4.44 m
Great room
Main level
6.4 m x 4.44 m
Dining room
Main level
3.05 m x 3.76 m
Office
Main level
3.05 m x 3.33 m
Mud room
Main level
1.42 m x 2.13 m

Location

Learn more about this property
Listing provided by:
RE/MAX CENTRE CITY REALTY INC.
MLS® number:
X12925490
Agent:
Ron O'brien
*Indicates required field
Name is required
Email is required
Please enter a valid phone number (e.g., 416-111-1111).

Street Spotlight - For sale