51169 Clinton Street, Malahide, Ontario N0L 2J0

Listed for:
$869,900
3 beds
2 baths
Listed 1 day ago
House for rent: 51169 Clinton Street, Malahide, Ontario N0L 2J0

View all 49 photos

About

Cross Streets: Springfield Road. ** Directions: Once in Springfield, South onto Springfield Rd, West onto Clinton St. Property on South side. Lovely 3 bedrm 1.5 bath Ranch with HUGE Bonus/Flex/Family Rm above the oversized 23' X 25' garage AND 24 X 30 workshop on a 0.6 acre lot on a quiet dead end street. Meticulously maintained, upgraded and updated since 2018 by the current owners. Outstanding curb appeal greets you with freshly painted exterior of the house and workshop, stylish and easy to care for landscaping, fencing and driveway enhancements, allowing for RV/truck and trailer parking. Upon entering you'll be delighted with the cozy living rm with WETT Certified wood burning fireplace and large window flooding the rm with natural light. The practical eat in kitchen with solid wood cabinetry, quartz counters and island offers excellent storage space, GE SS appliances including gas stove with convection oven and access to the patio with roll out awning for convenient bbq and entertaining. 3 sizable bedrms, renovated both 4pc bathrm and powder rm/laundry with Whirlpool washer and gas dryer. New luxury vinyl plank flooring completes the main floor. Head up the stairs to your HUGE Bonus/Flex Rm with new windows and new electric fireplace. For the hobbyist, a 24 X 30 X 9'H workshop with two 9' doors with automatic openers, cement floor, hydro and heater. The 0.6 acre lot has been intentionally designed with supreme privacy and leisure in mind, with concrete patio area the length of the back of the house, 7' X 15' Swimspa, fire pit area and a fully fenced in (portable) area to keep your young children and pets safe. A short drive to St Thomas, London, Aylmer and Tillsonburg for numerous amenities and attractions available near by. Updates since 2018 include but not limited to: well pump, pressure tank, roof, furnace, Ac, attic insulation (R-60), both bathrooms renovated, water softener, reverse osmosis system... (complete list available). Workshop improvements include hydro panel, insulation, heater, 2 garage doors & openers, metal siding, soffit and eavestrough. EVERYTHING is done! Just move in and Live! (id:27476)

Property Highlights

MLS® Number
X12939402
Type
Single Family
Community Name
Springfield
Ownership Type
Freehold
Land Size
130.4 x 193.6 FT|1/2 - 1.99 acres
Parking Space Total
12

Building

Building Type
House
Storeys
1.00
Square Footage
1500 - 2000 sqft
Bathrooms Total
2
Bedrooms Above Ground
3
Bedrooms Total
3
Amenities
Fireplace(s) Park, Place of Worship, Schools
Exterior Finish
Brick, Vinyl siding
Fireplace Present
Yes
Basement Type
Partial
Basement Features
Building Heating Type
Forced air
Heating Fuel
Propane
Building Cooling Type
Central air conditioning

Utilities

Water
Drilled Well
Utility Sewer
Sanitary sewer

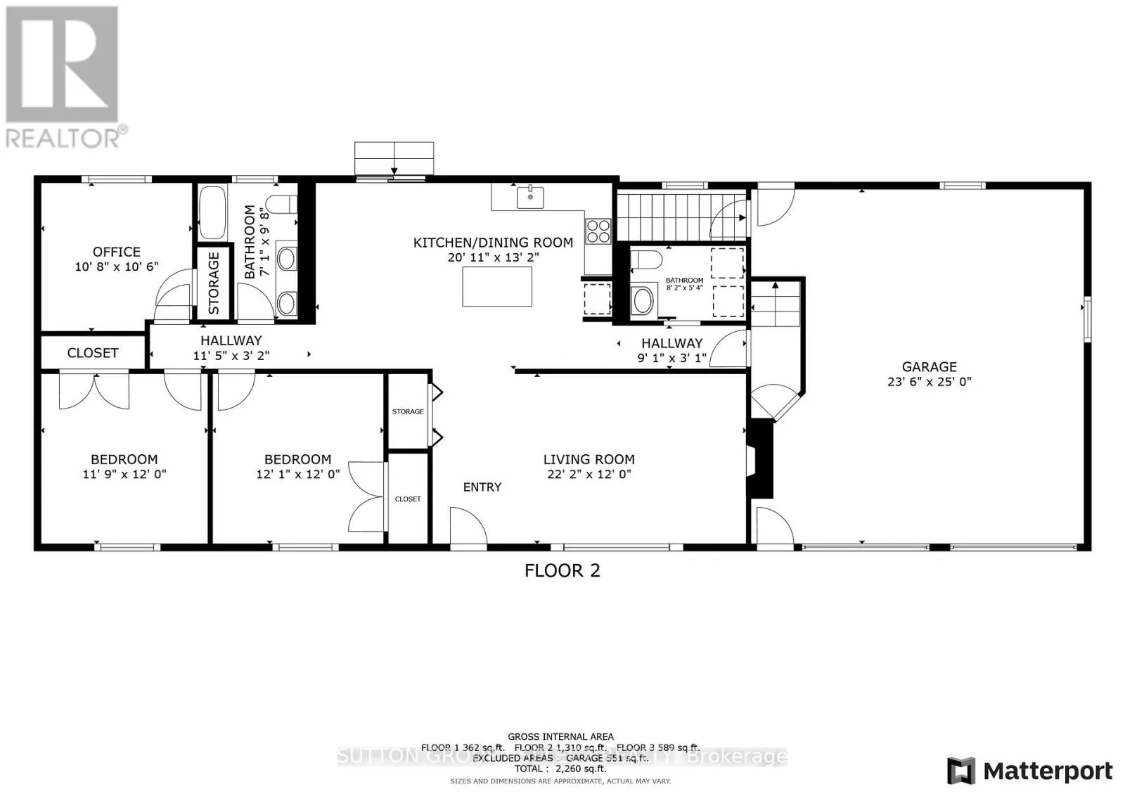
Room Layout

Great room
Second level
7.16 m x 7.62 m
Kitchen
Main level
6.38 m x 4.01 m
Living room
Main level
6.76 m x 3.66 m
Bedroom
Main level
3.68 m x 3.66 m
Bedroom
Main level
3.58 m x 3.66 m
Bedroom
Main level
3.25 m x 3.2 m
Bathroom
Main level
Measurements not available
Bathroom
Main level
Measurements not available

Location

Learn more about this property
Listing provided by:
SUTTON GROUP - SELECT REALTY
MLS® number:
X12939402
Agent:
Hanna Stadler
*Indicates required field
Name is required
Email is required
Please enter a valid phone number (e.g., 416-111-1111).