88 Arthur Street, Manitowaning, Ontario P0P 1N0

Listed for:
$430,000
2 beds
1 baths
Listed 119 days ago
House for rent: 88 Arthur Street, Manitowaning, Ontario P0P 1N0

View all 50 photos

Learn more about this property
Listing provided by:
BOUSQUET REALTY, BROKERAGE
MLS® number:
2123192
Agent:
Christopher Bousquet
*Indicates required field
Name is required
Email is required
Please enter a valid phone number (e.g., 416-111-1111).

About

A fine Manitowaning Bungalow built in 1997 on huge oversized corner town lot (approx 0.6 acres). Offering 2 bedrooms, full bath, large living room and eat-in kitchen all on main level. Full basement offering plenty of storage or room for expansion. Attached 2 car garage with 16' wide door. Walking distance to all town services including marina, park and beach on the Bay. Built with very little maintenance in mind. Ideal for retirees and empty nesters but also a great family home. (id:27476)

Property Highlights

MLS® Number
2123192
Type
Single Family
Ownership Type
Freehold
Land Size
21,780 - 32,669 sqft (1/2 - 3/4 ac)

Building

Building Type
House
Storeys
1.00
Bathrooms Total
1
Bedrooms Total
2
Amenities
Golf Course, Park, Schools, Shopping
Exterior Finish
Vinyl siding
Fireplace Present
No
Basement Type
Full
Basement Features
Building Heating Type
Forced air
Heating Fuel
Building Cooling Type

Utilities

Water
Municipal water
Utility Sewer
Municipal sewage system

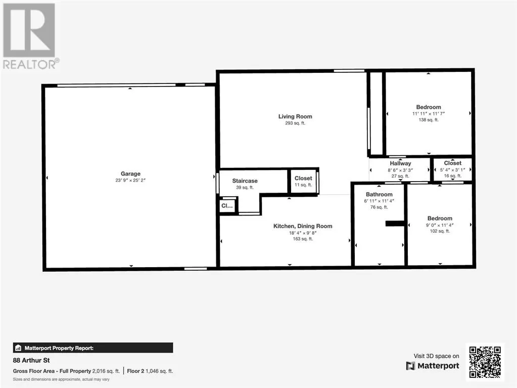
Room Layout

4pc Bathroom
Main level
11'4 x 6'10
Bedroom
Main level
8'11 x 11'3
Bedroom
Main level
11'8 x 11'10
Living room/Dining room
Main level
13'4 x 20'6
Eat in kitchen
Main level
9'7 x 18'2

Location