3 Elora Street N, Mapleton, Ontario N0B 1A0

Listed for:
$585,000
3 beds
1 baths
Listed 12 days ago
House for rent: 3 Elora Street N, Mapleton, Ontario N0B 1A0

View all 48 photos

About

Cross Streets: Peel St E and Elora St N. ** Directions: County Rd 6 to County Rd 17 which turns into Peel St E and then turn onto Elora St N. Opportunity Knocks in the Heart of Alma - Dream It. Build It. Live It. Welcome to a rare and versatile opportunity in the charming Village of Alma. Perfectly positioned on a generous corner lot with C1 zoning, this property offers exceptional flexibility to live, work, invest, or create something entirely new. The solid 3-bedroom home provides a strong foundation, complemented by a detached 18' x 24' garage and parking for up to 12 vehicles - a valuable asset for home-based businesses, clients, or future development. Whether you envision a comfortable residence, a live/work setup, a storefront, professional office, or a strategic land-banking opportunity, the possibilities here are truly endless. Recent upgrades include forced air heating with updated ductwork and furnace, along with a new roof (2018), offering peace of mind and long-term value. Set within a vibrant and supportive small-town community, Alma delivers warmth, convenience, and growth potential. Enjoy an outdoor skating rink just one street over, a nearby community centre and public school, and quick access to Fergus and Elora, with easy commuting to Guelph, Waterloo, Kitchener, and Orangeville. Surrounded by thriving local businesses and positive community energy, this is a location that supports both lifestyle and ambition. Live here. Work here. Invest here. Opportunity is knocking...Alma is calling. Will you answer? (id:27476)

Property Highlights

MLS® Number
X12755108
Type
Single Family
Community Name
Rural Mapleton
Ownership Type
Freehold
Land Size
100 x 132.1 FT|under 1/2 acre
Parking Space Total
13

Building

Building Type
House
Storeys
1.50
Square Footage
700 - 1100 sqft
Bathrooms Total
1
Bedrooms Above Ground
3
Bedrooms Total
3
Amenities
Fireplace(s) Park, Place of Worship, Public Transit, Schools
Exterior Finish
Aluminum siding, Vinyl siding
Fireplace Present
Yes
Basement Type
Full (Unfinished)
Basement Features
Building Heating Type
Forced air
Heating Fuel
Natural gas
Building Cooling Type
Window air conditioner

Utilities

Utility Sewer
Septic System

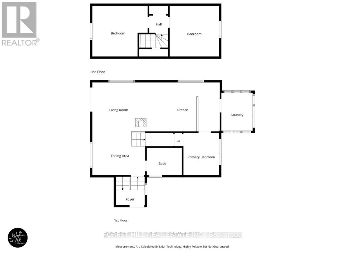
Room Layout

Bedroom
Second level
3.84 m x 3.66 m
Bedroom
Second level
3.66 m x 3.44 m
Foyer
Main level
2.01 m x 1.52 m
Bathroom
Main level
2.41 m x 1.83 m
Living room
Main level
6.49 m x 3.66 m
Kitchen
Main level
5.82 m x 3.44 m
Laundry room
Main level
2.59 m x 2.23 m
Bedroom
Main level
2.9 m x 2.56 m
Other
Main level
2.44 m x 0.79 m

Location

Learn more about this property
Listing provided by:
FOREST HILL REAL ESTATE INC.
MLS® number:
X12755108
Agent:
Danielle May
*Indicates required field
Name is required
Email is required
Please enter a valid phone number (e.g., 416-111-1111).

Community Spotlight: Homes For sale in Your Neighborhood