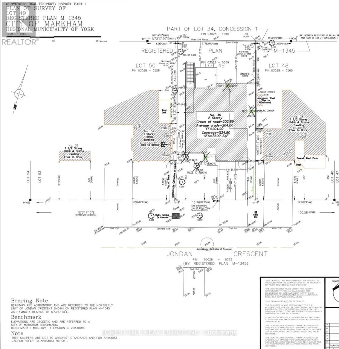
36 Jondan Crescent, Markham, Ontario L3T 3Z5

Listed for:
$1,488,678
4 beds
3 baths
Listed 167 days ago
House for rent: 36 Jondan Crescent, Markham, Ontario L3T 3Z5

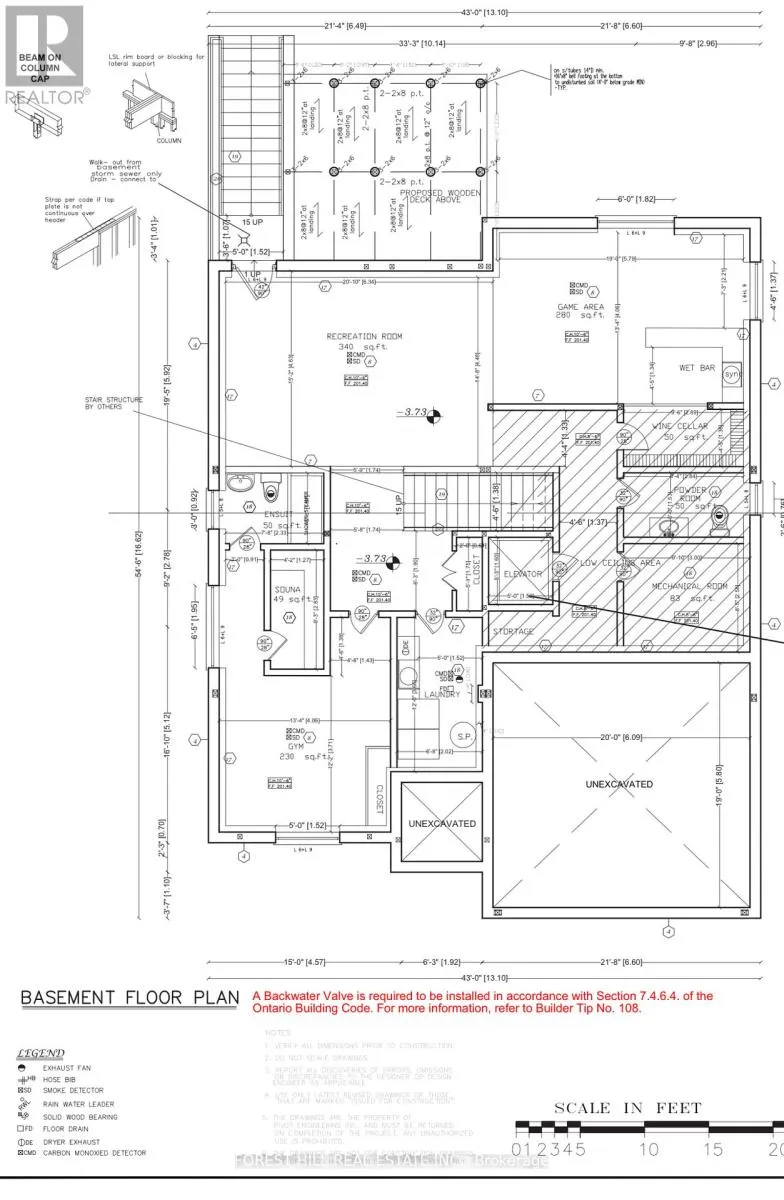
View all 16 photos

About

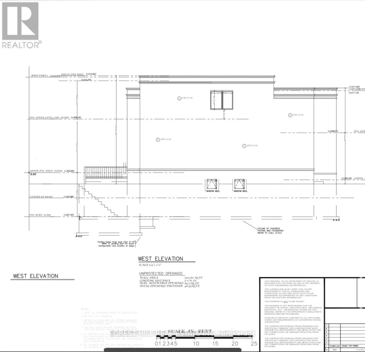
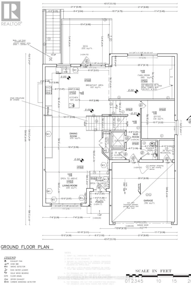
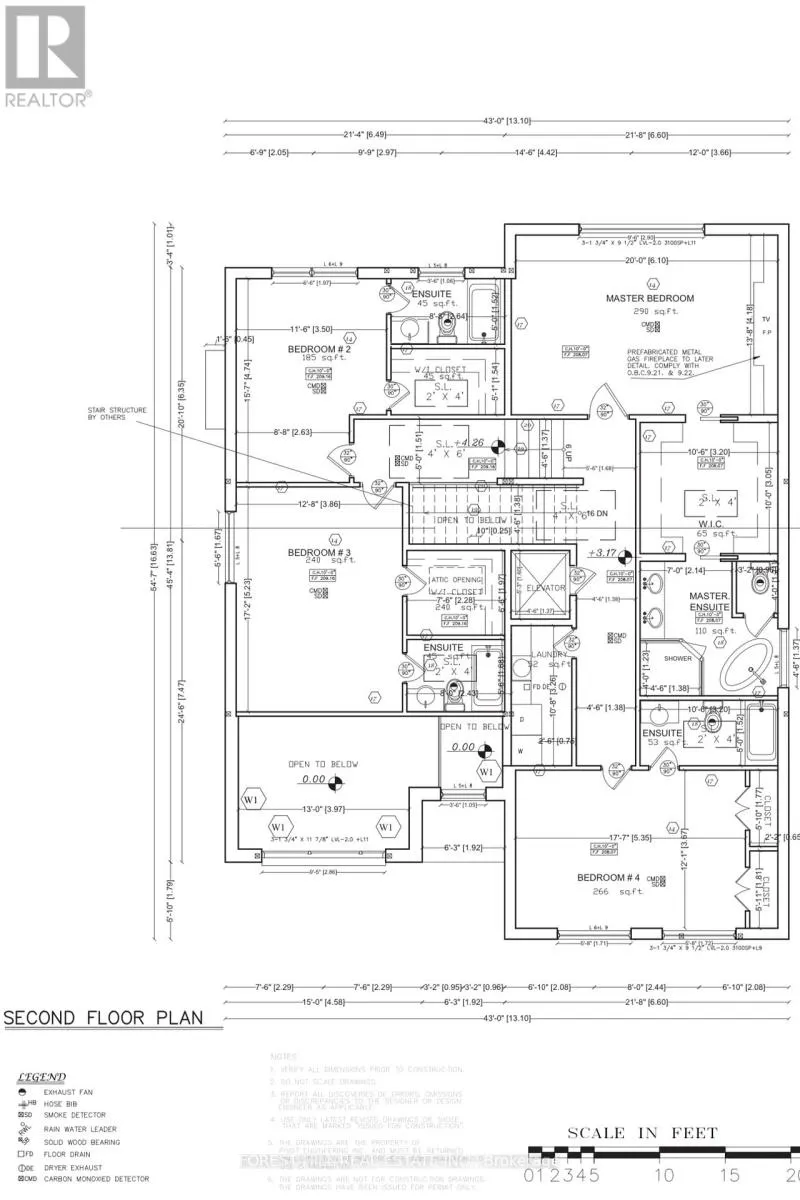
Bayview/ 407 ETR Attention Builders, Developers, and Investors! This property is priced for land value andincludes building permits, with the house being sold as-is. Located on ravine lot, this primepiece of real estate offers an incredible chance to create your dream home in a serene, family-friendly neighbourhood. Enjoy convenient access to Hwy 407, local restaurants, schools, and anupcoming subway line. The current owner has invested significant time and effort working alongwith the designers and architects and the City of Markham to design a stunning 5,000 sq. ft.modern home. This presents a fantastic opportunity for a small builder or developer to capitalizeon building a new house and achieving significant returns. With numerous developments already underway in the area, now is the perfect time to invest! (id:27476)

Property Highlights

MLS® Number
N12406381
Type
Single Family
Community Name
Royal Orchard
Ownership Type
Freehold
Land Size
55 x 110.7 FT
Parking Space Total
6

Building

Building Type
House
Square Footage
2500 - 3000 sqft
Bathrooms Total
3
Bedrooms Above Ground
4
Bedrooms Total
4
Exterior Finish
Brick
Fireplace Present
Yes
Basement Type
N/A (Finished)
Basement Features
Building Heating Type
Forced air
Heating Fuel
Natural gas
Building Cooling Type
Central air conditioning

Utilities

Water
Municipal water
Utility Sewer
Sanitary sewer

Location

Learn more about this property
Listing provided by:
FOREST HILL REAL ESTATE INC.
MLS® number:
N12406381
Agent:
Kristina Sluchak
*Indicates required field
Name is required
Email is required
Please enter a valid phone number (e.g., 416-111-1111).

Community Spotlight: Homes For sale in Your Neighborhood